Blackmore Road, Malvern, WR14

Guide Price
£585,000

4 Bedroom Semi-Detached House for sale in Malvern

2 4 2
  • Striking And Characterful Period Property
  • Four Bedrooms
  • Highly Popular And Desirable Area
  • View To Malvern Hills And Severn Valley
  • Lovely Rear Garden
  • Off Road Parking
  • Within Close Proximity To All Amenities
  • EPC E

Front Page
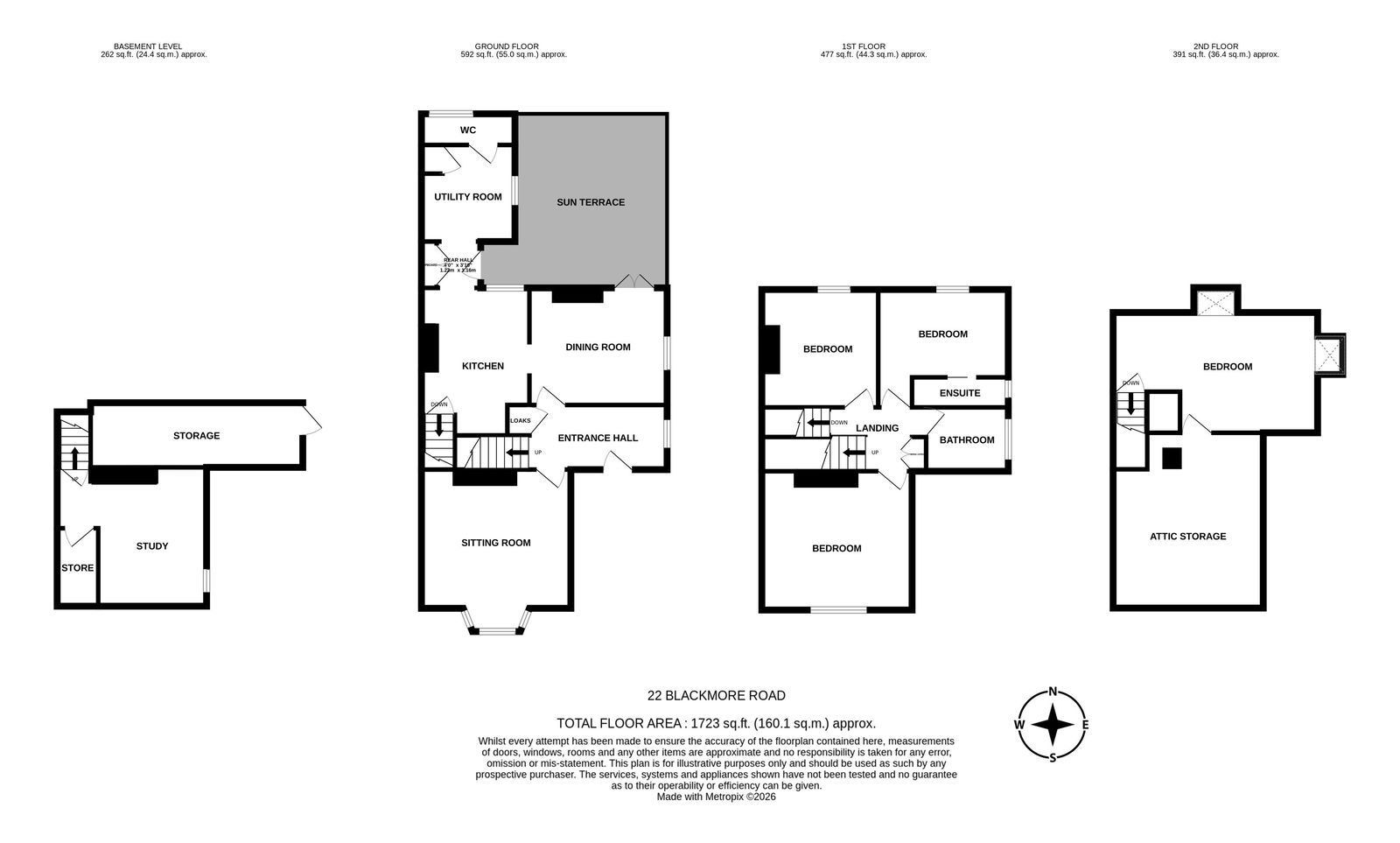
A Striking Four Bedroom Characterful Property With Spacious, Versatile And Beautifully Presented Accommodation Throughout Of Approximately 1723 sq.ft Which Has Been Sympathetically Refurbished Maintaining A Wealth Of Period Charm In A Highly Desirable Residential Area Occupying An Elevated Position With Fine Views Towards North Hill And Over The Severn Valley With A Private Garden And Off Road Parking.  EPC Rating "E"
Location

The property enjoys a convenient location less than a mile from the cultural and historic town of Great Malvern where there is a comprehensive range of amenities including shops and banks, Waitrose supermarket, the renowned theatre and cinema complex and the Splash leisure pool and gymnasium. Even closer at hand, less than five minutes away on foot there are more local amenities including shops, a corner stores and bakery. Transport facilities are excellent. There is a regular local bus service running through the area as well as Malvern Link railway station which is only about fifteen minutes on foot. Junction 7 of the M5 motorway at Worcester is about eight miles.  
 
For those who have a dog or simply enjoy walking Malvern Link common is only ten minutes walk away and the network of paths and bridleways that criss cross the Malvern Hills are a few minutes away.  
 
Educational facilities are extremely well catered for with a number of highly regarded primary and secondary schools in both the state and private sectors.  

Description
22 Blackmore Road is a wonderfully located characterful four bedroom family home which has been sympathetically modernised throughout providing light filled, spacious and beautifully presented accommodation in excess of 1723 sq.ft set over three floors, plus cellar, whilst providing the opportunity for further extension/development to the rear, subject to the relevant planning permissions being sought.  From the front aspect there are beautiful views up to North Hill and whilst the property occupies an elevated position also over towards the Severn Valley and Worcestershire.  The garden is lovely and private with a mature and peaceful aspect. 
 
The property is set back from the road behind a driveway with Malvern stone wall and a gravelled foregarden.  The driveway leads to a secure gate to the garden, undercroft storage, and steps which lead up to the wooden front door with stained glass opening to the  
Entrance Hall
A spacious and welcoming entrance with wooden flooring, stairs to first floor, understairs storage cupboard, doors to the dining room, sitting room, sash window to the side, radiator, ceiling light fitting.  
Sitting Room - 3.99m x 3.68m (13'1" x 12'1")(max point into bay window)
Continued wooden flooring and large double glazed window to the front with beautiful fireplace, storage to alcove, radiator, ceiling light fitting.  
Dining Room - 3.63m x 3.58m (11'11" x 11'9")
Continued wooden flooring with a beautiful fireplace and double doors opening to the decking.  Sash window to the side, radiator, ceiling light fitting and archway opening to the 
Kitchen
With a range of base and eye level units with worktop over and stainless steel sink and drainer, partially tiled walls, space for dishwasher and undercounter fridge.  Brick fireplace inset for range cooker, radiator, ceiling light fitting, sash window to the side, doors to the rear hallway and 
Cellar
Which has been previously been tanked benefitting from power and electricity and a separate storage room.  There is potential to convert to further accommodation if required.  
Rear Hall
Built in cupboard, ceiling light fitting loft access point, door to outside and the 
Utility Room
Quarry tiled flooring, base level units with ceramic sink and space for washing machine and separate storage cupboard.  Space for further white goods.  Sash window, ceiling light fitting and door to the downstairs 
WC
Close coupled WC, Worcester Bosch boiler, glazed window to the rear, wall mounted sink and ceiling light fitting. 
First Floor
A beautiful original staircase leading to the 
First Floor Landing
With doors to three bedrooms, airing cupboard, family bathroom and ceiling light fitting.  Stairs to the second floor.  
Bedroom - 3.94m x 3.63m (12'11" x 11'11")
Wood effect flooring, lovely fireplace feature, radiator, ceiling light fitting, sash glazed window with a view towards to North Hill.  
Bedroom - 3.15m x 2.77m (10'4" x 9'1")
Wood effect flooring, sash window with view over Severn Valley.  Fireplace, ceiling light fitting, radiator and door to 
Ensuite
Wood effect flooring, close coupled WC, wall mounted sink, obscured glazed window, shower cubicle, mains shower, ceiling light fitting. 
Bedroom - 3.63m x 3.12m (11'11" x 10'3")(max point)
Wood effect flooring, sash window with views over the Severn Valley.  Ceiling light fitting, radiator.  
Bathroom
Vinyl flooring and panelled walls.  Obscured sashed window, close coupled WC, pedestal wash hand basin, chrome heated towel rail, panelled bath with Triton shower and a circular obscured glazed featured window.  
Stairs to Second Floor
With skylight and opening to the 
Bedroom/Loft Room - 5.36m x 3.76m (17'7" x 12'4")(max point into eaves with restricted head height)
Two skylights with lovely elevated views over the Severn Valley over Worcestershire.  Eaves and loft storage area, vanity wash hand basin and Triton hot tap, radiator, ceiling light fitting.  
Outside
The garden can be accessed via the secure gate from the side and doors from the rear hall and dining room which open onto a raised decked area with beautiful views over the Severn Valley, skirted by a well established Wisteria.   Steps lead down to a landscaped patio area with a private aspect which is ideal for alfresco dining, with double power socket and the remainder of the garden is laid to lawn with a circular paved central feature.  The garden has a lovely mature and peaceful aspect with curved planted borders providing colour throughout the year and benefitting from fruit trees. 
 
To the rear of the garden is a summerhouse hardstanding and a barked area ideal to enjoy the secluded setting.  From here there are glimpses towards North Hill.  To the side of the property is further hardstand and potential to create additional parking if required.  There is an undercroft storeroom accessed from the driveway with power.   External lighting and water tap.  
Directions
From the agent's office in Great Malvern proceed north along the A449 Worcester Road towards Malvern Link. After about quarter of a mile, at Link Top, turn left at a set of traffic lights (signed Leigh Sinton). The road forks in three directions. Take the middle fork along Hornyold Road following this route uphill where it bears to the right. Ignore the first turn to the right (Hornyold Avenue) and instead continue uphill where, as the road bears to the left, turn right into St Peters Road. After 100 yards bear sharp right into Blackmore Road where the property will be seen on the left hand side.
Services
We have been advised that mains services are connected to the property. This information has not been checked with the respective service providers and interested parties may wish to make their own enquiries with the relevant local authority. No statement relating to services or appliances should be taken to imply that such items are in satisfactory working order and intending occupiers are advised to satisfy themselves where necessary.
Tenure
We are advised (subject to legal confirmation) that the property is freehold.
Viewing
By appointment to be made through the Agent's Malvern Office, Tel: 01684 892809
Council Tax
COUNCIL TAX BAND ''C''
This information may have been obtained from the local council website only and applicants are advised to consider obtaining written confirmation.
EPC
The EPC rating for this property is E (52).
General

Intending purchasers will be required to produce identification documentation and proof of funding in order to comply with The Money Laundering, Terrorist Financing and Transfer of Funds Regulations 2017. More information can be made available upon request. 

John Goodwin FRICS has made every effort to ensure that measurements and particulars are accurate however prospective purchasers/tenants must satisfy themselves by inspection or otherwise as to the accuracy of the information provided. No information with regard to planning use, structural integrity, tenure, availability/operation, business rates, services or appliances has been formally verified and therefore prospective purchasers/tenants are requested to seek validation of all such matters prior to submitting a formal or informal intention to purchase/lease the property or enter into any contract.

Important Information

  • This is a Freehold property.
  • This Council Tax band for this property is: C

Property Ref: 1416725

Share:

Similar Properties

Roberts End, Hanley Swan, Malvern. WR8

4 Bedroom Bungalow | Guide Price £575,000

An Excellently Positioned Detached Bungalow Of Substantial Proportions In Excess Of 3,000 Square Foot Occupying A Single...

West Malvern Road, Malvern, Worcestershire, WR14

5 Bedroom Detached House | Guide Price £575,000

A Home Of Exceptional Views, Space And Versatility, Set Across Three Well Planned Levels, This Impressive Property Combi...

Hook Common, Hanley Castle, Worcester, Worcestershire, WR8

3 Bedroom Semi-Detached House | Guide Price £550,000

A Wonderfully Situated And Thoughtfully Extended Three Bedroom Period Semi Detached Home, Offering Beautifully Presented...

Hall Green, Malvern, Worcestershire, WR14

4 Bedroom Bungalow | Guide Price £595,000

Front Page A Highly Individual Extended And Detached Four Bedroomed Bungalow Occupying A Good Size Plot With Complete Wr...

Leigh Sinton Road, Malvern, WR14

4 Bedroom Detached House | Guide Price £600,000

A Spacious, Versatile And Individual Detached Family Home Set Over Three Floors With Beautifully Presented Modern Accomm...

Albert Park Road, Malvern, Worcestershire, WR14

Plot | Guide Price £600,000

An All Too Rare Opportunity To Purchase A Pair Of Residential Building Plots With Full Planning Consent For The Construc...

John Goodwin (Malvern)

Malvern, Worcestershire, WR14 4QY

01684 892809

How much is your home worth?

Use our short form to request a valuation of your property.

Request a Valuation

Mortgage Calculator

Amount Borrowed: £
Total Amount Repayable: £
Total Monthly Payment: £
©2026 The Guild of Property Professionals. All rights reserved. Terms and Conditions | Privacy Policy | Cookie Policy | Complaints Policy | Members Login
The Guild of Property Professionals Trading Address: 121 Park Lane, London W1K 7AG. GPEA Limited. Registered in England & Wales.  Company No: 02819824.  Registered Office Address: 2 St. Stephen's Court, St. Stephen's Road, Bournemouth, Dorset, England, BH2 6LA.  VAT Registration No: 576 8795 61
Book a Property Valuation Update Cookies Preferences