Three bedroomed semi-detached house

Guide Price
£350,000
SSTC
This property listing is now SSTC

3 Bedroom Semi-Detached House for sale in Manningtree

2 3 1
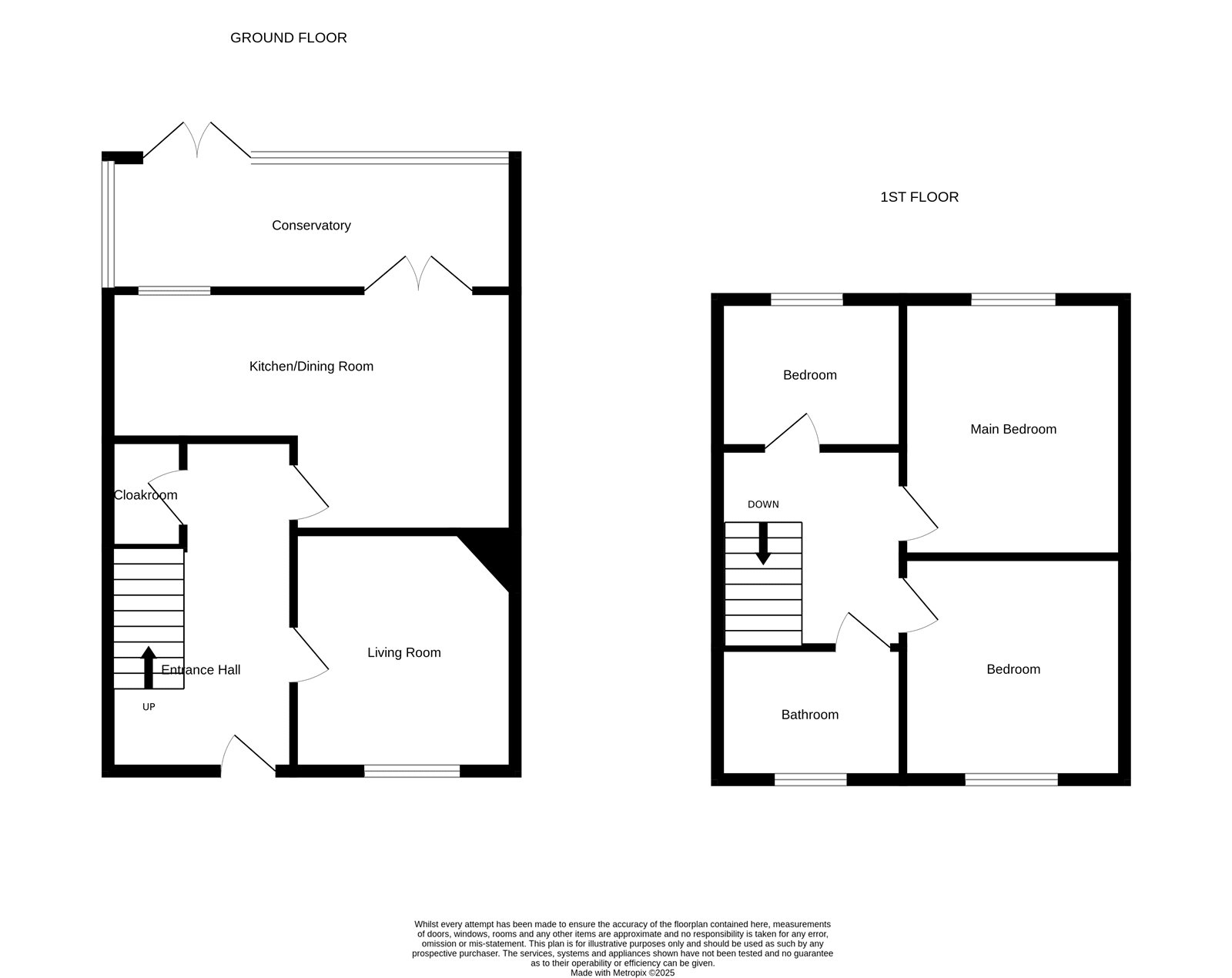
  • Central Lawford location Excellent access to local amenities Two reception rooms Conservatory Cloakroom Three bedrooms Garden with outside kitchen No onward chain

The property opens into a bright entrance hall, providing access to well-proportioned ground floor accommodation. To the front, the living room offers a calm and comfortable retreat, featuring a central fireplace and a wide window that draws in natural light. A cloakroom is conveniently located on this level, adding practicality for everyday living.

To the rear, the open-plan kitchen and dining area form the heart of the home, with a clean, modern design and integrated appliances. The layout flows effortlessly into a spacious conservatory, offering direct access to the garden and an ideal space for relaxing or entertaining.

The first floor provides three bedrooms arranged around a central landing. All bedrooms are well-sized and served by a contemporary bathroom, fully tiled and fitted with a modern suite.

The rear garden, extending to approximately 80 feet in length, offers a superb outdoor living and entertaining space that truly sets this home apart. Designed with both relaxation and hosting in mind, the garden features a beautifully crafted bespoke seating area, perfect for alfresco dining, summer barbecues or evening drinks with friends and family.

The lawned area provides plenty of room for children to play or for garden enthusiasts to personalise with planting, while the mature trees and fencing offer a sense of privacy and seclusion. A large timber outbuilding adds further versatility, ideal as a workshop, studio or secure storage.

To the front, the property benefits from ample off-road parking, neatly laid out to accommodate multiple vehicles with ease.

Important Information

  • This is a Freehold property.
  • This Council Tax band for this property is: C
  • EPC Rating is D

Property Ref: DDH250294

Share:

Similar Properties

Three bedroom detached bungalow

3 Bedroom Detached Bungalow | Guide Price £350,000

This detached bungalow, located on Fox Street, Ardleigh, offers spacious single-storey accommodation in a pleasant setti...

Three bedroomed detcahed house

3 Bedroom Detached House | Guide Price £350,000

Situated on the outskirts of Ardleigh along the popular Fox Street, this detached chalet bungalow presents an exciting o...

Three bedroomed family home

3 Bedroom Detached House | Guide Price £350,000

Situated in a well-established residential area to the east of Colchester, this three-bedroom home on Booth Avenue offer...

Three bedroom link-detached house

3 Bedroom Link Detached House | Offers Over £375,000

Situated in a sought-after residential area of West Bergholt, this well-presented link-detached home offers thoughtfully...

Plot of land with permission

Land | Guide Price £375,000

Rural plot of approximately 1.55 acres (subject to survey) with FULL planning approval for a single, single storey, two...

Three bedroom semi-detached house

3 Bedroom Semi-Detached House | Guide Price £375,000

Situated within walking distance of the village centre and open playing fields, this semi-detached home offers well-prop...

Kingsleigh Estate Agents (Dedham)

Dedham, Essex, CO7 6DE

01206 940123

How much is your home worth?

Use our short form to request a valuation of your property.

Request a Valuation

Mortgage Calculator

Amount Borrowed: £
Total Amount Repayable: £
Total Monthly Payment: £
©2026 The Guild of Property Professionals. All rights reserved. Terms and Conditions | Privacy Policy | Cookie Policy | Complaints Policy | Members Login
The Guild of Property Professionals Trading Address: 121 Park Lane, London W1K 7AG. GPEA Limited. Registered in England & Wales.  Company No: 02819824.  Registered Office Address: 2 St. Stephen's Court, St. Stephen's Road, Bournemouth, Dorset, England, BH2 6LA.  VAT Registration No: 576 8795 61
Book a Property Valuation Update Cookies Preferences