Plot of 0.6 acres (STS)

Guide Price
£500,000

Land for sale in Manningtree

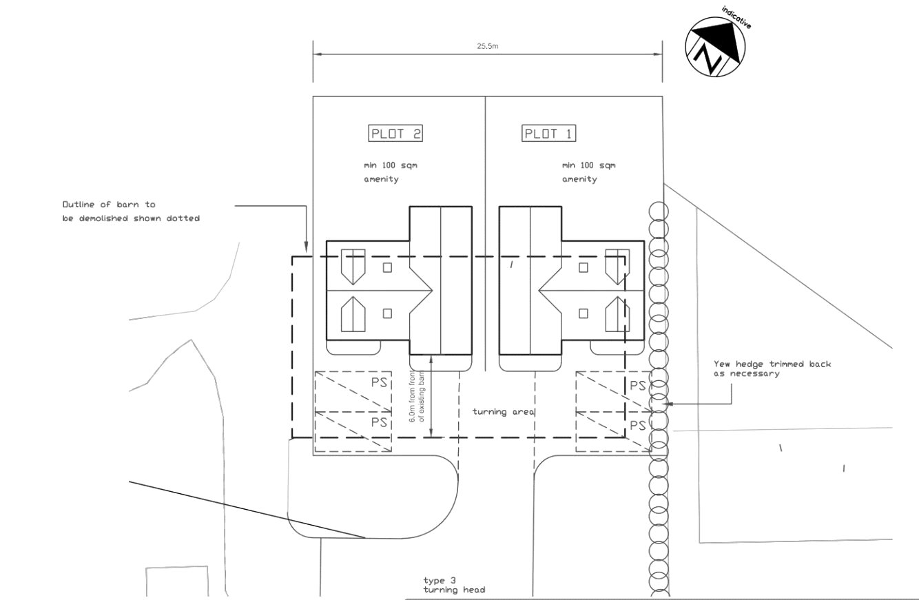
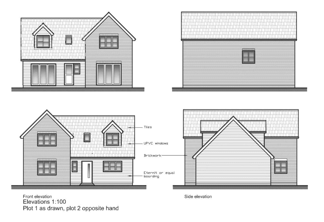
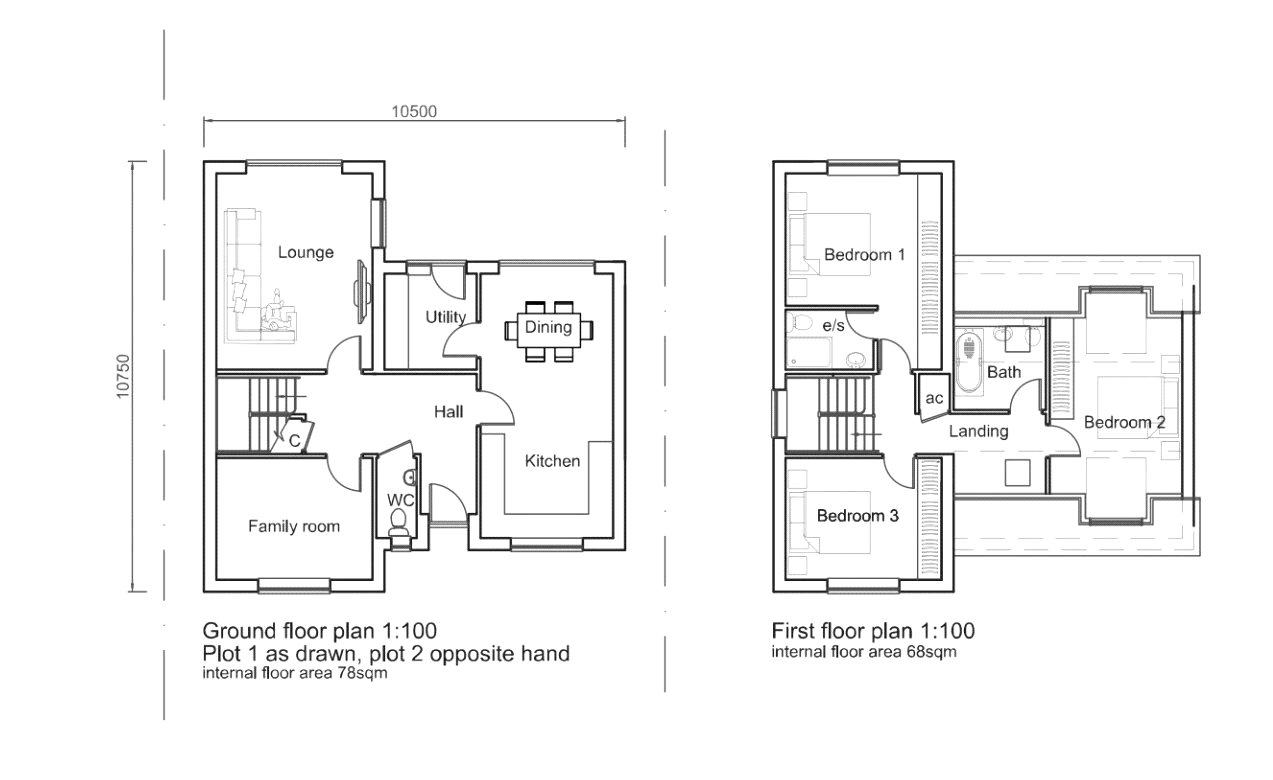
  • Outstanding rural position Plot of approximately 0.6 acres (STS) Full planning for two, three bedroom dwellings Under Tendring reference 22/01423/FUL

Set on Hungerdown Lane, Lawford, this attractive parcel of land extends to approximately 0.6 acres (STS) and offers an exceptional opportunity for development. Benefiting from planning permission for two thoughtfully designed three-bedroom detached dwellings, the plot combines a peaceful, semi-rural setting with convenient access to local amenities and transport links. The site presents an ideal prospect for those seeking to create high-quality homes in a well-regarded Essex location.

Important Information

  • This is a Freehold property.

Property Ref: DDH260237

Share:

Similar Properties

Two-bedroomed detached cottage

2 Bedroom Detached House | Guide Price £500,000

Idyllically situated in the picturesque hamlet of Thorington Street, within the sought-after parish of Stoke by Nayland,...

Four-bedroomed detached house

4 Bedroom Detached House | Offers in excess of £500,000

Set within a popular modern development, this well-proportioned detached family home offers comfortable and versatile ac...

Two bedroomed semi-detached cottage

2 Bedroom Semi-Detached House | Offers in excess of £500,000

Set on Crown Street in the heart of Dedham, this semi-detached cottage offers an outstanding village setting with open m...

Four-bedroomed detached house

4 Bedroom Detached House | Guide Price £525,000

Beautifully presented detached family home in the heart of Ardleigh, with accommodation comprising living room, study, k...

Three-bedroomed detached house

3 Bedroom Detached House | Guide Price £530,000

Situated in the sought-after village of Capel St Mary, this well-proportioned detached home offers versatile accommodati...

Four bedroomed link-detached house

4 Bedroom Detached House | Guide Price £570,000

Set within open countryside on the edge of the well-regarded village of Holton St Mary, this attractive link-detached ho...

Kingsleigh Estate Agents (Dedham)

Dedham, Essex, CO7 6DE

01206 940123

How much is your home worth?

Use our short form to request a valuation of your property.

Request a Valuation

Mortgage Calculator

Amount Borrowed: £
Total Amount Repayable: £
Total Monthly Payment: £
©2026 The Guild of Property Professionals. All rights reserved. Terms and Conditions | Privacy Policy | Cookie Policy | Complaints Policy | Members Login
The Guild of Property Professionals Trading Address: 121 Park Lane, London W1K 7AG. GPEA Limited. Registered in England & Wales.  Company No: 02819824.  Registered Office Address: 2 St. Stephen's Court, St. Stephen's Road, Bournemouth, Dorset, England, BH2 6LA.  VAT Registration No: 576 8795 61
Book a Property Valuation Update Cookies Preferences