Three bedroomed semi detached house

Offers in excess of
£375,000
SSTC
This property listing is now SSTC

3 Bedroom Link Detached House for sale in Manningtree

1 3 2
  • Located on River Reach Mistley development Semi-detached house Living room Kitchen / dining room Cloakroom Main bedroom with ensuite Two further bedrooms Outside studio/office and storage Off road...

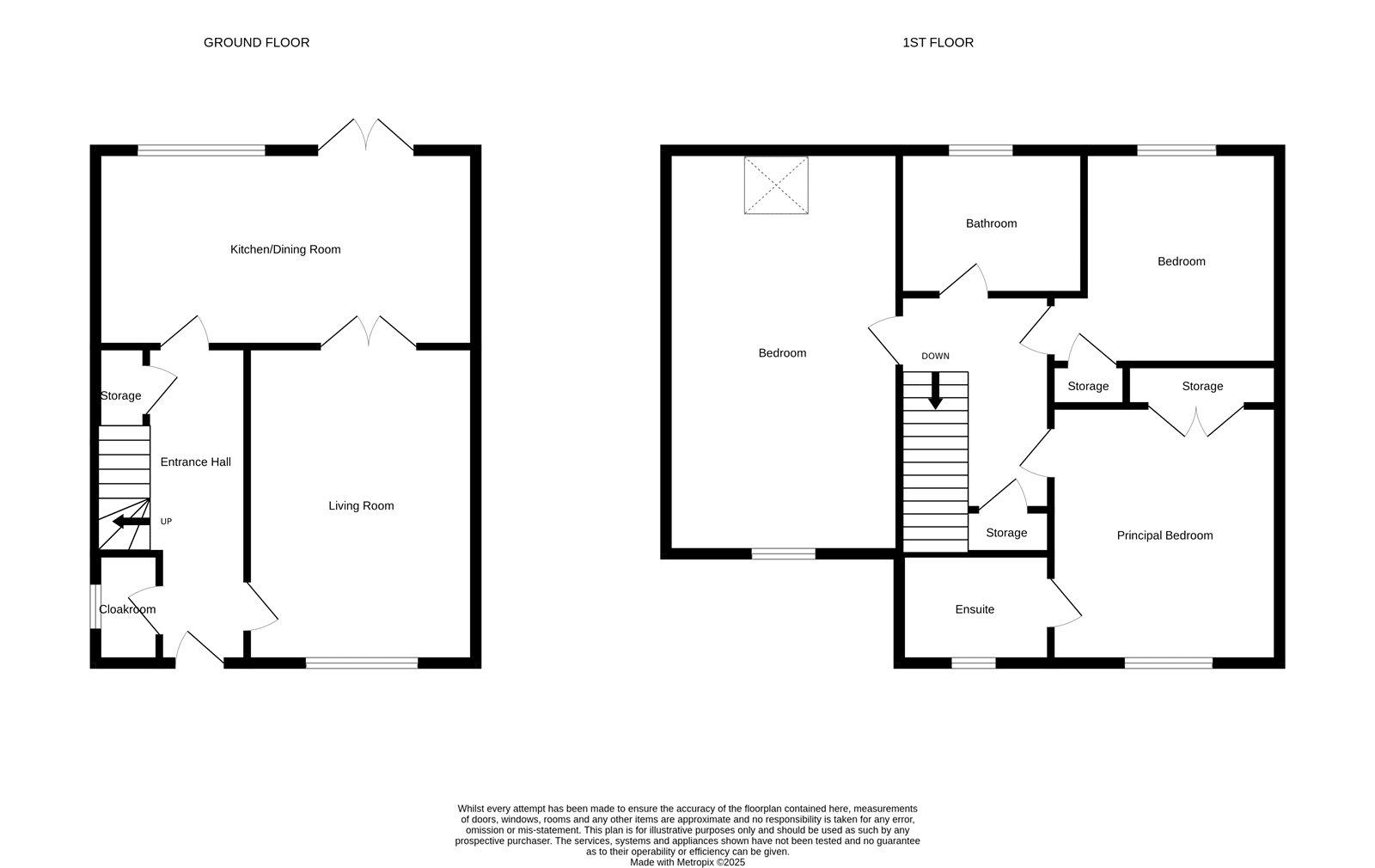
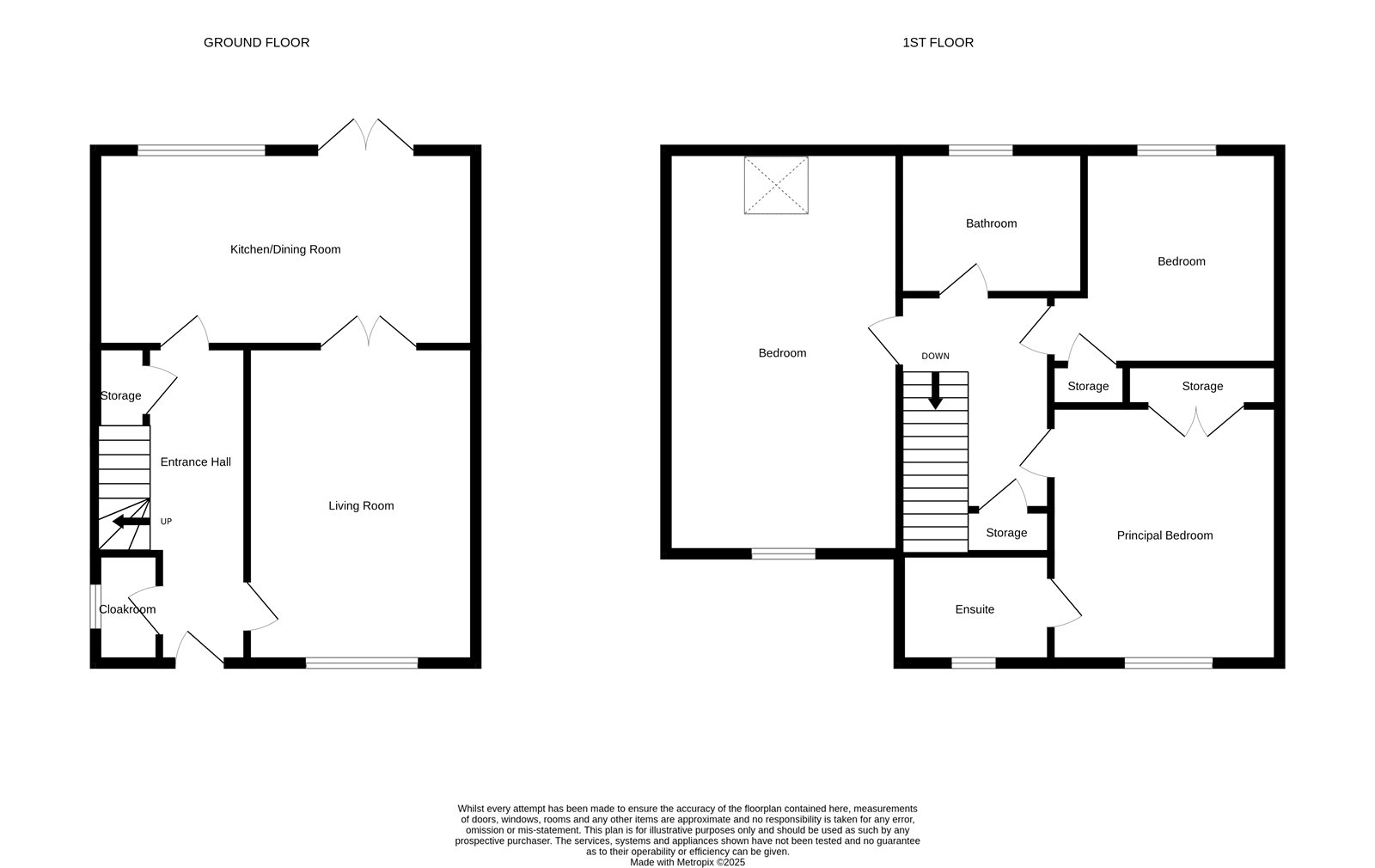
The ground floor opens into a central hallway, offering access to a spacious living room at the front of the property. This bright and comfortable space offers a pleasant outlook and connects seamlessly to the rear of the home. At the heart of the ground floor lies the kitchen and dining area - a smart, practical layout with integrated cooking space, generous worktops, and direct access to the rear garden through French doors. A separate cloakroom completes the downstairs accommodation, offering added convenience for day-to-day living.

Upstairs, the main bedroom is generously proportioned and features its own ensuite shower room, offering a private and well-appointed space. Two further bedrooms provide flexible accommodation, well-suited for family use or home working. The first floor also includes a modern family bathroom with a clean, neutral finish, and a central landing that links the space together effectively.

To the rear, the garden offers a generous and enclosed outdoor space with a paved patio and lawn, creating a versatile area for relaxation or recreation. A separate outbuilding has been converted to provide a fully enclosed studio or office with power and lighting, ideal for working from home or as a creative space. Adjacent to the studio is a useful storage room with secure access. At the front, the property benefits from private off-road parking beneath a covered carport, complete with an EV charging point, enhancing convenience and sustainability.

With its well-planned layout, modern finish and adaptable outdoor space, this home is equally suited to everyday living and entertaining. Positioned close to local amenities and the beautiful River Stour tidal estuary, Forrester Road offers easy access to local walks, scenic views and the charm of Mistley village - making it an ideal setting for both relaxation and connection.

Important Information

  • This is a Freehold property.
  • This Council Tax band for this property is: D
  • EPC Rating is B

Property Ref: DDH250467

Share:

Similar Properties

Plot of land with permission

Land | Guide Price £375,000

Rural plot of approximately 1.55 acres (subject to survey) with FULL planning approval for a single, single storey, two...

Three bedroom link-detached house

3 Bedroom Link Detached House | Offers Over £375,000

Situated in a sought-after residential area of West Bergholt, this well-presented link-detached home offers thoughtfully...

Three bedroom semi-detached house

3 Bedroom Semi-Detached House | Guide Price £375,000

Situated within walking distance of the village centre and open playing fields, this semi-detached home offers well-prop...

Three bedroom detached house

3 Bedroom Detached House | Guide Price £380,000

Situated on Chaplin Road in the sought-after village of East Bergholt, this detached home offers a comfortable and easy...

Two bedroomed terraced villa

2 Bedroom Terraced House | Guide Price £380,000

This attractive Victorian mid-terraced villa occupies a desirable position on The Park, combining period character with...

Four bedroomed detached house

4 Bedroom Detached House | Guide Price £400,000

Situated in the heart of Ardleigh and within walking distance of the primary school, this four-bedroomed detached family...

Kingsleigh Estate Agents (Dedham)

Dedham, Essex, CO7 6DE

01206 940123

How much is your home worth?

Use our short form to request a valuation of your property.

Request a Valuation

Mortgage Calculator

Amount Borrowed: £
Total Amount Repayable: £
Total Monthly Payment: £
©2026 The Guild of Property Professionals. All rights reserved. Terms and Conditions | Privacy Policy | Cookie Policy | Complaints Policy | Members Login
The Guild of Property Professionals Trading Address: 121 Park Lane, London W1K 7AG. GPEA Limited. Registered in England & Wales.  Company No: 02819824.  Registered Office Address: 2 St. Stephen's Court, St. Stephen's Road, Bournemouth, Dorset, England, BH2 6LA.  VAT Registration No: 576 8795 61
Book a Property Valuation Update Cookies Preferences