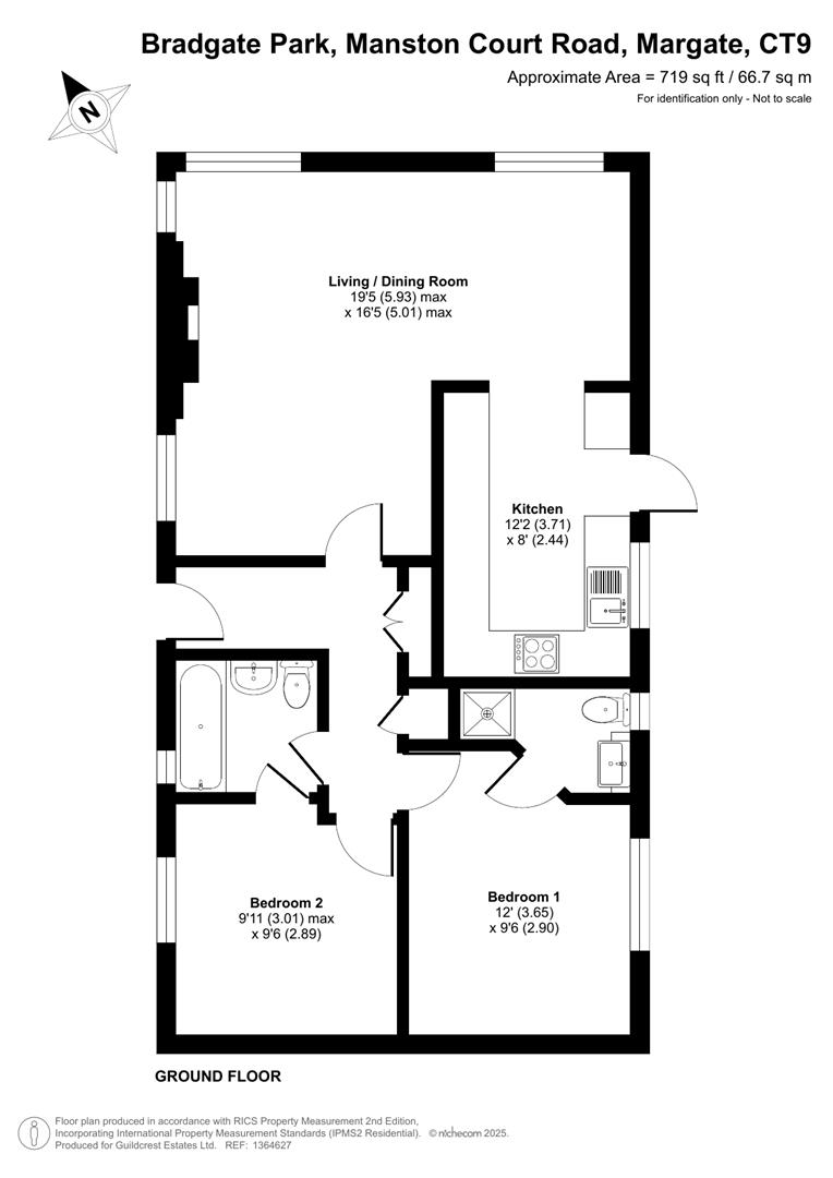
Bradgate Caravan Park, Manston Court Road, Margate

£59,995

2 Bedroom Park Home for sale in Margate

1 2 1
  • 2 bedrooms
  • Good size Lounge/Dining Room
  • Modern kitchen
  • Off road parking
  • Wrap around garden
  • 12 month residency
  • Peaceful location
  • Clubhouse, gym and indoor swimming pool onsite
  • Close to Westwood Cross Shopping center

Situated within the tranquil confines of Bradgate Caravan Park on Manston Court Road, Margate, this lovely two-bedroom park home offers a delightful retreat for those seeking a peaceful lifestyle. The property features a spacious lounge/dining area, perfect for entertaining guests or enjoying quiet evenings at home. The modern kitchen is well-equipped, making meal preparation a pleasure.

With two comfortable bedrooms and a well-appointed bathroom, this home is ideal for small families or couples looking to downsize. The property also benefits from parking for one vehicle, ensuring convenience for residents.

One of the standout features of this park home is the 12-month residency, allowing you to enjoy the beauty of Margate throughout the year. The park offers a range of leisure facilities, including a lounge and bar, as well as an indoor swimming pool, providing ample opportunities for relaxation and socialising with fellow residents.

Additionally, the property is conveniently located near Westwood Cross shopping centre, where you can find a variety of shops and amenities to cater to your everyday needs.

This park home is available for cash buyers only, making it a unique opportunity for those looking to invest in a serene lifestyle in a sought-after location. If you are searching for a peaceful retreat with modern comforts and excellent amenities, this property is certainly worth considering.

Service Charge is approx £6367 PA
Freehold
Water, sewer, electricity and gas with gas central heating
Fixed wireless broadband

Property Ref: 236985_34234202

Share:

Similar Properties

Maple Leaf Business Park, Manston, Ramsgate

Light Industrial | £1,950pcm

Fantastic Light Industrial unit located in the Maple Leaf Business Park, Manston, Ramsgate. This unit boasts ample parki...

Plot 64, The Lomond, 32 St Stephens Park Road, Ramsgate, Manston, Kent, CT12 5NE

3 Bedroom Detached House | £1,850pcm

THE LOMONDDiscover the perfect blend of style and functionality in this stunning 3 bedroom DETACHED property, With a lig...

Merlin Business Park, Manston, Ramsgate

Light Industrial | £1,850pcm

A fantastic opportunity for any businesses looking to expand in a ready to go, converted unit. This light industrial uni...

Harold Road, Margate

1 Bedroom Flat | £80,000

If retiring by the sea is your dream, this could be the ideal opportunity to make that a reality. Guildcrest Estates are...

Monkton Street, Monkton, Ramsgate

2 Bedroom Bungalow | £99,995

Nestled in the beautiful area of Monkton Street, Ramsgate, this delightful holiday complex offers a perfect retreat for...

Upper Dane Road, Margate

1 Bedroom Flat | £145,000

Welcome to this modern flat located on Upper Dane Road in the delightful seaside town of Margate. This property offers a...

Guildcrest Estates (Manston)

Manston Business Park, Manston, Kent, CT12 5NQ

01843 272200

How much is your home worth?

Use our short form to request a valuation of your property.

Request a Valuation

Mortgage Calculator

Amount Borrowed: £
Total Amount Repayable: £
Total Monthly Payment: £
©2025 The Guild of Property Professionals. All rights reserved. Terms and Conditions | Privacy Policy | Cookie Policy | Complaints Policy | Members Login
The Guild of Property Professionals Trading Address: 121 Park Lane, London W1K 7AG. GPEA Limited. Registered in England & Wales.  Company No: 02819824.  Registered Office Address: 2 St. Stephen's Court, St. Stephen's Road, Bournemouth, Dorset, England, BH2 6LA.  VAT Registration No: 576 8795 61
Book a Property Valuation Update Cookies Preferences