Royal Esplanade, Westbrook, Margate

Guide Price
£1,000,000

4 Bedroom Detached House for sale in Margate

4 2
  • Substantial Seafront Residence
  • Spectacular 180 Degree Sea Views
  • Four Large Double Bedrooms (Master En-Suite)
  • Master Suite With Dressing Room & Balcony
  • Heated Indoor Swimming Pool
  • South Facing Rear Garden With Excellent Privacy
  • Views Towards St.Mildreds Bay & Margate Main Sands
  • Brand New Kitchen/Diner
  • Huge Utility Room & Two Downstairs WC's
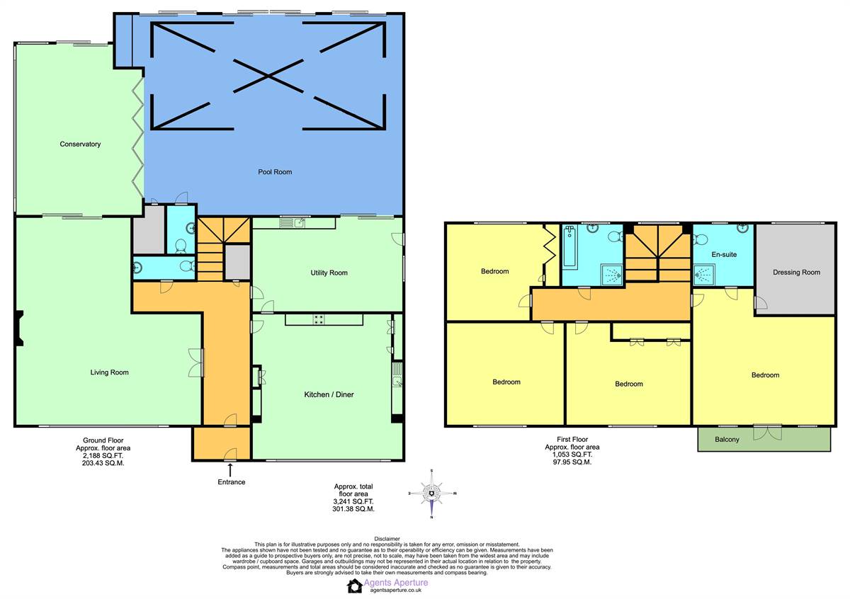
  • Covering An Impressive 3,241 Sq Ft (301.3 Sq M)

Guide Price: £1,000,000 - £1,100,000?
Enviable seafront location for this substantial home with indoor swimming pool, positioned on the exclusive 'Royal Esplanade' with panoramic sea views.
Whatever the weather, the view each day is as captivating as the last. Unrivalled sunsets, dramatic storms - you will see it all from here.
Built in the 1980's, the property covers an impressive sq ft 3,241 sq f (301.3 sq m) with rooms palatial in size and huge windows which take full advantage of the spectacular sea views. The property is presented in impeccable order and has been renovated inside and out during the owners 12 year tenure, making this the perfect opportunity for those looking for that dream home by the sea.
The ground floor presents a large 'L' shape lounge with direct sea views which then opens to the conservatory. This impressive space has bi-folding glazed doors which lead to the pool room with its heated swimming pool and separate WC set beneath a large atrium and three sets of patio doors opening to the garden. The kitchen/diner sits to the front of the house with views of the sea and features a brand new contemporary kitchen with quartz work surfaces. A huge utility room and cloakroom completes the vast ground floor.
Moving upstairs and the first floor provides four exceptional size double bedrooms. The principal suite has its very own sea facing balcony; the perfect vantage point to watch both sunrise and sunset over Margate main sands in one direction and St. Mildreds Bay in Westgate-on-Sea in the other. Here you also have an en-suite and dressing room. A modern family bathroom concludes this incredibly spacious home.
Externally, beautifully landscaped gardens are found to front and rear. The rear garden has a southerly aspect, enjoying sunshine throughout the day with an excellent degree of privacy.
All in all, a very special home in an equally special location. Call the sole agents, Kent Estate Agencies to arrange your viewing appointment.

Location:
Westbrook is ideally situated between the à la mode town of Margate and the quaint Victorian town of Westgate-on-Sea.
This particular property is on the border of Westgate-on-Sea, once coined as 'Mayfair by the sea' when aristocratic Londoners visited during summer. Westgate is a highly regarded coastal town, predominately of period architecture with its Victorian canopied shops offering a range of independent boutiques, mainstream supermarket cafe's, restaurants and bars. Westgate is also home to a magnificent 18-hole golf club, the grade II listed Carlton Cinema and a selection of both primary and secondary schools.
Westgate train station is close by and provides a frequent service for commuters straight through to London Victoria. Margate mainline station is 1.5 miles distant and provides direct links to London Victoria as well as the high speed Javelin service to London St. Pancras.
Westbrook is popular with commuters, families wanting to be in the catchment area for the well regarded local schools and couples looking to retire by the sea.
The promenade along Wesbrook Bay provides a stunning walk into Margate and its vibrant 'Old Town' in one direction and Westgate-on-Sea with the stunning beaches of St. Mildreds and West Bay.

Approved Property Details   


Porch   
Double glazed composite front entrance door to enclosed porch.

Entrance Hall   
Under stairs storage cupboard. Power points. Phone point. Burglar alarm. Stairs leading to first floor.

Kitchen/Diner   17' 0 x 15' 7 (5.19m x 4.75m)
The kitchen is planned with a matching range of wall and base units arranged on three walls with inset sink unit. Quartz work surfaces. Rangemaster range cooker with 5 ring gas hob. Integrated dishwasher. Window to front overlooking the front garden and sea views. Power points. Radiator.

Lounge   23' 6 x 20' 9 (7.17m x 6.33m)
L-shape room with window to front overlooking the front garden and sea views. Mock log burner (remote controlled gas fire.) Two radiators. TV point. Power points. French doors to conservatory and pool room beyond.

Conservatory   19' 9 x 14' 4 (6.02m x 4.37m)
Windows to side and rear overlooking the rear garden. Power points. Floor to ceiling glass doors to pool room. Tiled flooring.

Pool Room   33' 7 x 24' 7 (10.24m x 7.5m)
Impressive space with a heated swimming pool with a large atrium and windows to rear overlooking the rear garden. Three sets of patio doors to rear garden. Tiled flooring. Separate WC. Power points.

Cloakroom   7' 3 x 2' 7 (2.21m x 0.79m)
Suite comprising wash hand basin set into vanity unit and close coupled WC. Radiator. Extractor fan. Tiled flooring.

Utility Room   16' 10 x 10' 9 (5.14m x 3.28m)
Range of matching base units. Work surfaces. Power points. Windows to side. Plumbing for washing machine. Patio doors to pool room. Door to side.

Landing   
Window to rear. Radiator.

Master Bedroom   16' 11 x 15' 7 shortening to 12' 4 (5.16m x 4.75m)
Windows to front overlooking sea views. Radiator. Power points. Doors to dressing room and en suite. French doors to balcony.

Dressing Room   10' 10 x 9' 1 (3.31m x 2.77m)
Window to rear overlooking the rear garden. Radiator. Power points.

En-Suite   7' 6 x 7' 3 (2.29m x 2.21m)
Suite in white comprising double fully tiled shower cubicle, wall hung wash hand basin, and close coupled WC. Radiator. Tiled walls. Tiled flooring.

Bedroom Two   13' 11 x 12' 2 (4.25m x 3.71m)
Window to front overlooking sea views. Radiator. Power points.

Bedroom Three   12' 5 x 9' 9 (3.79m x 2.98m)
Window to front overlooking sea views. Built in double wardrobe cupboards. Radiator. Power points.

Bedroom Four   10' 10 x 10' 9 (3.31m x 3.28m)
Window to rear. Built in double wardrobe cupboards. Radiator. Power points.

Bathroom   7' 5 x 6' 10 (2.27m x 2.09m)
Suite in white comprising panelled bath, fully tiled double shower cubicle, pedestal wash hand basin, and close coupled WC. Chrome heated towel rail. Tiled walls. Extractor fan.

Rear Garden   56' 9 At maximum points x 42' 7 (17.3m x 12.98m)
The rear garden faces south and is mainly laid to lawn with with flower beds, bushes and shrubs. Paved patio. Side access.

Front Garden & Driveway   55' 7 x 39' 6 (16.95m x 12.03m)
Border wall to front. Formal lawn with flower bed borders. Driveway providing ample off-road parking.

Main Services
The following mains services are connected to the property electricity, water, gas, drainage and a telephone line. All services will be subject to the appropriate companies transfer conditions.

Heating
Central heating is provided by a gas fired boiler and hot water radiators as indicated in these particulars.

Windows
The windows are generally of double glazed sealed units.

Tenure
The property is to be sold Freehold with vacant possession.

Council Tax
We are advised by the Valuation Office that the property is currently within Council Tax Band G. The amount payable under tax band G for the year 2025/2026 is £3,908.75.

Viewing
Please ring us to make an appointment. We are open from 9am to 6pm Monday to Friday, 9am to 5pm Saturdays and by appointment only on Sundays.

Agent Notes
Kent Estate Agencies gives notice for themselves and for the sellers of the property, whose agents they are that any floor plans, plans or mapping and measurements are approximate quoted in metric with imperial equivalents. All are for general guidance only and whilst every attempt has been made to ensure accuracy, they must not be relied on. The measurements are provided in accordance with the R.I.C.S. Code of Measuring Practice 6th edition.
We have not carried out a structural survey and the services, appliances and specific fittings have not been tested and therefore no guarantee can be given that they are in working order. Photographs are reproduced for general information and it must not be inferred that any item shown is included with the property. Prospective purchasers or lessees should seek their own professional advice. Kent Estate Agencies retain the copyright in all advertising material used to market this property.
No person in the employment of Kent Estate Agencies has any authority to make any representation or warranty whatever in relation to this property. Purchase prices, rents or other prices quoted are correct at the date of publication and, unless otherwise stated, exclusive of VAT.
For a free valuation of your property contact the number on this brochure.

Important Information

  • This is a Freehold property.

Property Ref: 57843_EA5E23

Share:

Similar Properties

Westbrook Avenue, Westbrook, Margate

4 Bedroom Detached House | Offers in excess of £900,000

Bridge Green House is a beautiful 1920's residence occupying a 0.25 acre corner plot on the coveted Westbrook Avenue wit...

Wotton Court, St. Nicholas At Wade, Birchington

5 Bedroom Detached House | £875,000

A home of exceptional quality, occupying a 0.23 acre plot and tucked away at the end of a private drive of just 3 presti...

The Street, St. Nicholas-at-Wade, Birchington

5 Bedroom Detached House | £795,000

The Oak Bakery is a substantial period home covering 3279 sq ft (304.6 sq m) on a very wide plot with a beautiful walled...

Winterstoke Crescent, Ramsgate

7 Bedroom Detached House | £1,100,000

CHAIN FREE - Sea views and a prestigious location on Ramsgate's East-Cliff benefit this substantial residence, offering...

Canterbury Road, Westgate-on-Sea

7 Bedroom Detached House | £1,195,000

Questeds is an utterly beautiful Grade II listed period home set right back from the road on a very secluded plot of jus...

Sea Road, Westgate-on-Sea

4 Bedroom Detached House | Offers in excess of £1,200,000

This striking contemporary residence forms part of a premier row along the prestigious Sea Road with breathtaking sea vi...

Kent Estate Agencies (Westgate-On-Sea)

Thanet, Westgate-On-Sea, Kent, CT7 0PG

01843 242126

How much is your home worth?

Use our short form to request a valuation of your property.

Request a Valuation

Mortgage Calculator

Amount Borrowed: £
Total Amount Repayable: £
Total Monthly Payment: £
©2026 The Guild of Property Professionals. All rights reserved. Terms and Conditions | Privacy Policy | Cookie Policy | Complaints Policy | Members Login
The Guild of Property Professionals Trading Address: 121 Park Lane, London W1K 7AG. GPEA Limited. Registered in England & Wales.  Company No: 02819824.  Registered Office Address: 2 St. Stephen's Court, St. Stephen's Road, Bournemouth, Dorset, England, BH2 6LA.  VAT Registration No: 576 8795 61
Book a Property Valuation Update Cookies Preferences