50 Hawley Square, Margate

£264,000
SSTC
This property listing is now SSTC

2 Bedroom Flat for sale in Margate

1 2 1
  • Nine luxury apartments
  • One & two bedrooms
  • Council tax band: c
  • Energy efficient
  • High specification throughout
  • Balconies & courtyards
  • Life service & no chain
  • Sought after location
  • Available to reserve today
  • Epc rating: b

*****************LAST ONE REMAINING**************

Cooke & Co are proud to offer this purpose-built block of bespoke apartments, offering just 9 exquisite 1, 2 & 3 bedroom homes including a truly unique penthouse which must be viewed to be appreciated. The design has been sympathetically, cleverly and lovingly constructed within an existing Georgian Building. Stunning is just one word to describe this block, with its fully restored original facade. The building has been brought back to its original glory with no expense spared and attention to details throughout. This wonderful building overlooks the tree lined and lawned Hawley Square, Margate.

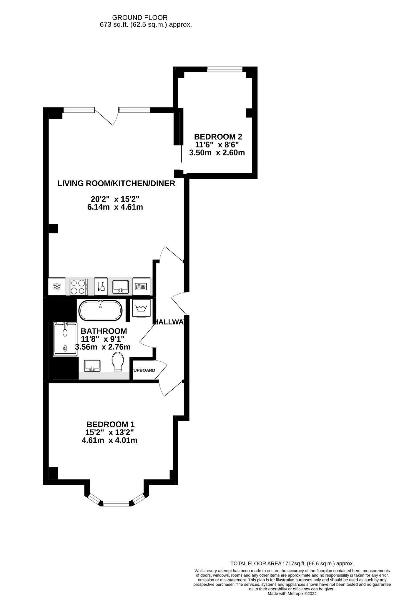
This beautifully designed two-bedroom apartment has been thoughtfully and carefully designed with quality and attention to detail in mind. The calibre of specification is just one factor that sets these homes apart from the average. The accommodation can be reached by stairs or by lift and comprises of a communal entrance then once in the apartment itself you will find a beautiful open plan lounge/kitchen/diner, two double bedrooms, as well as a bespoke bathroom.

Hawley Square is located on the outer edge of Margate Old town and is the first Georgian square in Margate to include an enclosed pleasure ground. It owes its name and origins to Sir Henry Hawley (1745-1826) who was created the 1st baronet of Leybourne Grange, near Maidstone, in 1795 (The Peerage) and who owned the field on which the square was built.
With leafy avenues and sheltered green squares, a bustling High Street with a mix of shops and services, relaxed cafes, pubs and restaurants and of course not forgetting its proximity to the main Margate Sands with miles of blue flag winning beaches a short walk away. The Turner Contemporary Art Gallery has placed Margate on the Map culturally and with many new galleries including the newly opened Carl Friedman Gallery a short walk away. It's also an effortless commute into London via St Pancras using the H..

Important Information

  • This is a Leasehold property.

Property Ref: 202202_COOKEANDCO_5783

Share:

Similar Properties

Hinchliffe Way, Margate

4 Bedroom Terraced House | £260,000

Spacious & Versatile 3/4 Bedroom Terrace Home in a Cul-De-Sac! Nestled in a quiet cul-de-sac, this well-presented three/...

Newington Road, Ramsgate

3 Bedroom Detached House | £260,000

Guide Price: £240,000 - £260,000 (+ Fees) For Sale by Public Auction on Wednesday 30th October (Lot 43842) Cooke & Co ar...

Norfolk Road, Margate

2 Bedroom Flat | £260,000

Norfolk House - A Stunning Coastal Development! Discover a collection of meticulously designed apartments, ideally locat...

Upper Dumpton Park Road, Ramsgate

3 Bedroom End of Terrace House | £269,995

Cooke & Co are delighted to present this charming Grade II listed, three-bedroom, end-of-terrace home, dating back to 18...

Church Road, Ramsgate

2 Bedroom End of Terrace House | Offers Over £270,000

Cooke & Co are delighted to bring to the market this newly refurbished two-bedroom end-of-terrace home, ideally position...

Newington Road, Ramsgate

3 Bedroom Semi-Detached House | £275,000

Cooke & Co are delighted to bring to the market this wonderful three-bedroom semi-detached home in the popular Newington...

Cooke & Co Estate and Letting Agents (Cliftonville)

Cliftonville, Kent, CT9 2QY

01843 231833

How much is your home worth?

Use our short form to request a valuation of your property.

Request a Valuation

Mortgage Calculator

Amount Borrowed: £
Total Amount Repayable: £
Total Monthly Payment: £
©2025 The Guild of Property Professionals. All rights reserved. Terms and Conditions | Privacy Policy | Cookie Policy | Complaints Policy | Members Login
The Guild of Property Professionals Trading Address: 121 Park Lane, London W1K 7AG. GPEA Limited. Registered in England & Wales.  Company No: 02819824.  Registered Office Address: 2 St. Stephen's Court, St. Stephen's Road, Bournemouth, Dorset, England, BH2 6LA.  VAT Registration No: 576 8795 61
Book a Property Valuation Update Cookies Preferences