Fen Road, Owmby-by-spital

£220,000
SSTC
This property listing is now SSTC

3 Bedroom Semi-Detached House for sale in Market Rasen

3 2
  • Beautiful 1800s Converted Barn
  • Rural Village Location
  • Lounge & Kitchen Diner
  • Bathroom & En-Suite
  • Bedroom 3 / Dressing Room
  • Extensive Works Carried out to a High Standard
  • NO CHAIN
  • Council Tax Band - C (West Lindsey District Council)
  • EPC Energy Rating - C

A beautiful 1800s 2/3 bedroom converted barn, over a thousand square feet, which has been lovingly refurbished by the current owners. The property is situated within the rural village of Owmby by Spital and close to the Cathedral City of Lincoln and the Market Town of Market Rasen. The accommodation comprises of Entrance Hall, Lounge, Kitchen Diner, two Double Bedrooms, an En-Suite Bathroom, Family Bathroom and a third Bedroom/Dressing Room/Office. The property retains many original character features including original exposed beams, quarry tile flooring, stone brick walls, deep set windowsills and heightened ceilings. The roof of the kitchen wing has recently been fully refurbished, a modern oil tank has been fitted, and the property has also recently undergone significant electrical modernisation. Outside there is a south-facing enclosed courtyard providing off-street parking with stone walls and fencing for privacy. The property further benefits from No Onward Chain and viewing is essential. 

LOCATION Owmby-by-spital is a village and civil parish in the West Lindsey district of Lincolnshire. It is situated approx. 2 miles east of the A15, 11 miles north of Lincoln and 8 miles west of Market Rasen. There is a local primary school situated in the neighbouring village of Normanby by Spital and is within the catchment area of local secondary schools.


SERVICES
Mains electricity, water and drainage.
Oil-fired central heating (The oil tank was fitted last year).

 

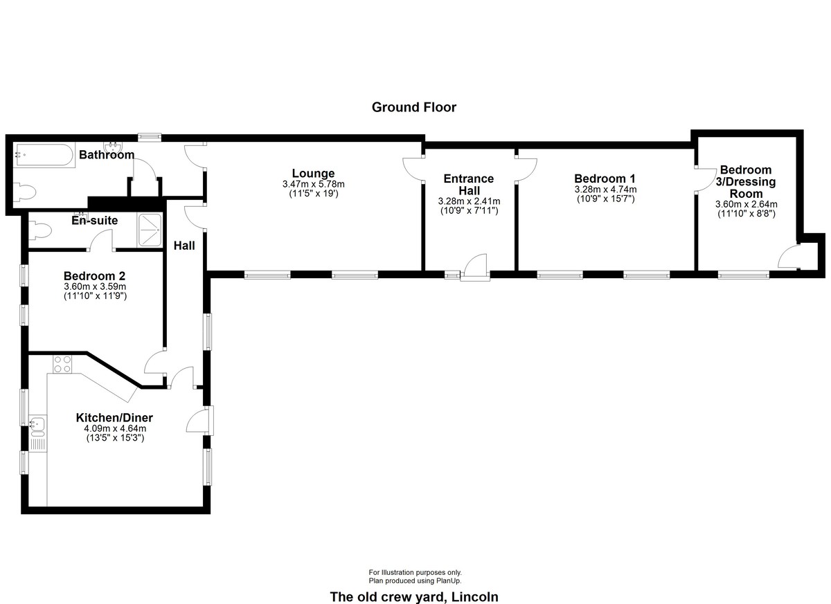
ENTRANCE HALL With composite main entrance door, quarry tiled flooring, radiator and loft access point. 

LOUNGE 18' 11" x 11' 4" (5.78m x 3.47m) , with two UPVC triple glazed windows to the front aspect, engineered oak flooring, three glass pendant lights and two radiators. 

KITCHEN DINER 15' 2" x 13' 5" (4.64m x 4.09m) , fitted with a range of stylish base units with wooden work surfaces over, ceramic 1 1/2 bowl sink with side drainer and mixer tap over, electric oven and hob with extractor fan, washing machine, slimline dishwasher, fridge freezer with water dispenser and ice maker, freestanding larder, spotlights, radiator and three UPVC triple glazed windows to the side aspect. 

HALL With UPVC triple glazed window to the side aspect.  

BEDROOM 2 11' 9" x 11' 9" (3.60m x 3.59m) , with two UPVC triple glazed windows to the side aspect and two radiators. 

EN-SUITE SHOWER ROOM Fitted with a three piece suite comprising of shower cubicle with electric shower, wash hand basin in a vanity unit and close coupled WC and chrome towel radiator. 

BEDROOM 1 15' 6" x 10' 9" (4.74m x 3.28m) , with two UPVC triple glazed windows to the front aspect, engineered oak flooring and radiator. 

BEDROOM 3/DRESSING ROOM 11' 9" x 8' 7" (3.60m x 2.64m) , with UPVC triple glazed window to the front aspect, storage cupboard, engineered oak flooring and radiator. 

BATHROOM Fitted with a three piece suite comprising of panelled bath, close coupled WC and pedestal wash hand basin, tiled splashbacks, radiator, airing cupboard, oil-fired central heating boiler and double glazed window to the rear aspect. 

OUTSIDE To the front of the property there is an enclosed south facing courtyard providing off-street parking and accessed via double gates. 

Property Ref: 735095_102125027376

Share:

Similar Properties

Syfer Close, Caistor

4 Bedroom Townhouse | £220,000

A beautifully presented and deceptively spacious Four Bedroom End Townhouse, offering modern and immaculate living accom...

Old Barn Court, Ludford, Market Rasen

3 Bedroom Detached House | £215,000

Situated in the charming rural village of Ludford, within the picturesque Lincolnshire Wolds, this modern Three Bedroom...

Haydock Way, Market Rasen

3 Bedroom Semi-Detached House | £210,000

Located on Haydock Way in Market Rasen, this well-presented property is set in a quiet cul-de-sac and positioned back fr...

De Aston Fields, Willingham Road, Market Rasen

3 Bedroom Semi-Detached Bungalow | £225,000

A beautiful three bedroom semi-detached home set on a generous, landscaped plot close to the heart of Market Rasen. Inte...

Kirkby-cum-osgodby, Market Rasen

3 Bedroom Semi-Detached House | £230,000

A spacious three bedroomed semi-detached house situated in this popular rural and quite location within the village of K...

Caistor Road, Market Rasen

2 Bedroom Detached Bungalow | Offers Over £235,000

A non-estate two double bedroom detached bungalow set on a generous sized plot within the centre of the popular town of...

Mundys Market Rasen (Market Rasen)

22 Queen Street, Market Rasen, Lincolnshire, LN8 3EH

01673 847487

How much is your home worth?

Use our short form to request a valuation of your property.

Request a Valuation

Mortgage Calculator

Amount Borrowed: £
Total Amount Repayable: £
Total Monthly Payment: £
©2025 The Guild of Property Professionals. All rights reserved. Terms and Conditions | Privacy Policy | Cookie Policy | Complaints Policy | Members Login
The Guild of Property Professionals Trading Address: 121 Park Lane, London W1K 7AG. GPEA Limited. Registered in England & Wales.  Company No: 02819824.  Registered Office Address: 2 St. Stephen's Court, St. Stephen's Road, Bournemouth, Dorset, England, BH2 6LA.  VAT Registration No: 576 8795 61
Book a Property Valuation Update Cookies Preferences