Thorpe Lane, Tealby, Market Rasen

£1,400,000

5 Bedroom Detached House for sale in Market Rasen

5 2
  • Stunning detached Grade II Listed farmhous
  • Beautifully restored with original features throughout
  • Converted crew yard with exceptional courtyard and outdoor kitchen
  • Approx. 7.88 acres of formal gardens, paddocks and woodland
  • Attached barn with potential for further conversion (STPP)
  • Previously approved planning for a second home in the woodland (STPP)
  • Equestrian potential with established paddock land
  • Walkable to Tealby village centre and popular local pub

A truly one-of-a-kind country home. Thorpe Farm is a beautifully restored Grade II Listed farmhouse with a stunning converted crew yard, set within approx. 7.88 acres of grounds on the edge of Tealby, one of Lincolnshire's most sought-after villages. Carefully renovated by the current owners, the property blends original period features with thoughtful modern upgrades, creating a spacious and character-filled home in a breathtaking countryside setting.
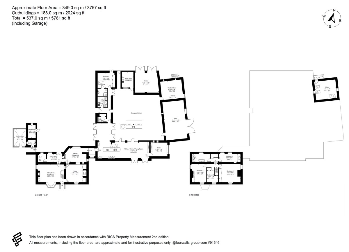
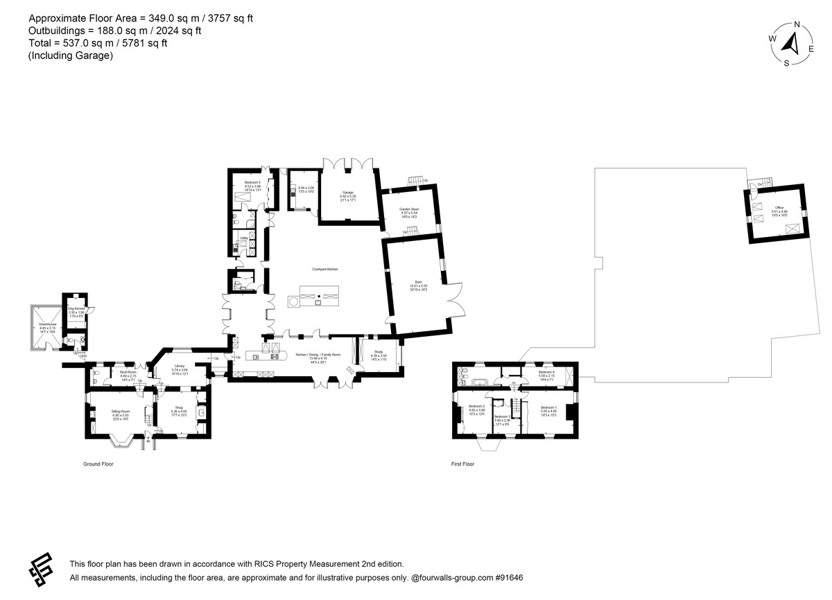
The accommodation wraps around a spectacular central courtyard, offering a superb outdoor entertaining space with a fitted courtyard kitchen, accessible from the main living areas through multiple sets of French doors. Inside, the standout open-plan kitchen / dining / family room boasts vaulted ceilings, a high-spec kitchen and seamless flow into the courtyard and gardens, while elsewhere, there are multiple reception spaces including a snug, formal lounge, library and a hidden study.
The house sits in a peaceful, private position within its own land, which includes formal gardens, paddocks ideal for equestrian use, woodland and a double garden with garden store. An attached barn offers excellent potential for further conversion, whether as an extension of the main home, an annexe or a holiday cottage (STPP). Planning permission was previously granted for a 'Grand Designs'-style home within the woodland (now lapsed), showing exciting potential for further development within the grounds.
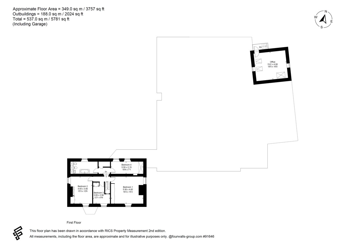
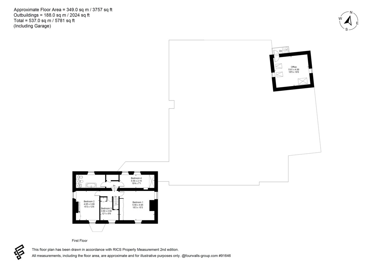
Externally, an external staircase leads up to a separate office/store, providing a perfect spot for home working with views across the garden. There is also ample off-road parking within the grounds.
The location is just as impressive, quietly tucked away yet walkable into the village centre and its highly regarded pub, with excellent access to Lincoln, Louth, Grimsby and Newark. Commuters will appreciate the convenient road connections and fast train services into London via Lincoln and Newark North Gate.
 

LOCATION Thorpe Farm enjoys a peaceful countryside setting just outside the picturesque village of Tealby – often regarded as one of Lincolnshire's finest. With its character cottages, welcoming pub, village shop and well-regarded primary school, Tealby offers a classic village lifestyle with a strong sense of community. The property is perfectly placed for access to Lincoln, Louth, Grimsby and Newark, with regular rail connections to London from both Lincoln and Newark North Gate.  

Services & Information • Grade II Listed
• Oil-fired central heating with underfloor heating in parts
• Mains water and electricity
• Private drainage (septic tank)
• Council Tax: Band F (West Lindsey District Council)
• Tenure: Freehold  

ENTRANCE HALL Bespoke handmade timber double doors, timber window with original shutters, stone flooring, spotlighting, radiator and storage cupboard.  

LOUNGE Feature bay sash window overlooking gardens and Wolds views, fireplace with log burner, fitted shelving unit, staircase to first floor, two radiators and additional timber window and door to garden.  

UTILITY ROOM Velux ceiling window, tiled flooring, base units with worktops, stainless steel sink drainer, plumbing and spaces for washing machine and tumble dryer and fitted shelving.  

KITCHEN / DINING / FAMILY ROOM 44' 3" x 30' 1" (13.49m x 9.17m) Multiple sets of timber double doors leading to both the central courtyard and formal gardens. High-spec kitchen with wall, drawer and base units, Corian worktops, sunken sink drainer, instant hot water tap, two ovens, microwave, induction hob with extractor, integrated dishwasher, pantry cupboard and a full-height fridge and freezer. Vaulted ceiling with beams, underfloor heating and tiled flooring throughout. Sitting area with bespoke fitted cupboards and shelving and a hidden door to the study.  

STUDY 14' 5" x 11' 9" (4.39m x 3.58m) Solid wood flooring, two timber windows, raised external door with side windows, fitted bookshelves, vaulted and beamed ceiling and underfloor heating.  

LIBRARY 18' 10" x 12' 1" (5.74m x 3.68m) Timber sliding windows and sash window, stone flooring, spotlighting and radiator.  

SNUG 17' 7" x 15' 3" (5.36m x 4.65m)  

SITTING ROOM 22' 6" x 19' 5" (6.86m x 5.92m) Timber window, original fitted cupboards, stone feature fireplace with bespoke wood burner, original beam ceilings and two radiators.  

BOOT ROOM 14' 5" x 7' 1" (4.39m x 2.16m)  

WC Stone flooring, timber sliding window, low-level WC, wash hand basin, spotlighting and radiator.  

BEDROOM 5 14' 10" x 13' 1" (4.52m x 3.99m) Vaulted ceiling with Velux window, timber double doors, fitted wardrobes and underfloor heating.  

EN-SUITE Vinyl flooring, low-level WC, wash hand basin with tiled splashback, shower cubicle with tile surround, heated towel rail, spotlighting, extractor fan, underfloor heating and fitted shelving.  

FIRST FLOOR LANDING Split level with spotlighting, radiator and storage cupboard. 

BEDROOM 1 18' 3" x 15' 3" (5.56m x 4.65m) Dual aspect timber windows with views over gardens and courtyard, fitted wardrobes, spotlighting and a radiator.  

BEDROOM 2 15' 3" x 12' 6" (4.65m x 3.81m) Sash windows, fitted wardrobes and radiator.  

BEDROOM 3 12' 1" x 9' 9" (3.68m x 2.97m) Timber sash window, built-in wardrobe and radiator.  

BEDROOM 4 18' 4" x 7' 1" (5.59m x 2.16m) Two timber windows, fitted cupboard, shelving and radiator.  

BATHROOM Timber window, tiled flooring, part-tiled walls, low-level WC, bidet, bath with shower attachment, two radiators, fitted cupboards and shelving, mirror with spotlighting, shaver point and ceiling spotlights.  

OUTSIDE • Approx. 7.88 acres including formal gardens, paddocks and private woodland
• Central courtyard with outdoor kitchen – perfect for entertaining
• Ample off-road parking
• Double garden with garden store
• Equestrian potential with enclosed paddocks
• Attached barn offering conversion potential (STPP)
• Previous planning approval for a contemporary home within the woodland (now lapsed – STPP)
• External staircase to upper-level store / office with garden views
 

OFFICE 18' 5" x 16' 0" (5.61m x 4.88m)  

GARAGE 21' 1" x 17' 1" (6.43m x 5.21m)  

GARDEN STORE 18' 2" x 16' 0" (5.54m x 4.88m)  

BARN 32' 10" x 18' 3" (10.01m x 5.56m)  

DOG KENNEL 11' 0" x 6' 5" (3.35m x 1.96m)  

WC  

GREENHOUSE 14' 7" x 10' 4" (4.44m x 3.15m)  

Property Ref: 102125033858

Share:

Similar Properties

Usselby, Market Rasen

5 Bedroom Detached House | Offers Over £800,000

IDEAL EQUESTRIAN PROPERTY WITH 6 ACRES (STS) - NO ONWARD - Situated at the end of a sweeping gravelled reception drivewa...

Skinners Lane, Middle Rasen

4 Bedroom Detached House | £800,000

Situated in a semi-rural location with stunning lakeside views, Lake View is a delightful four bedroom detached family h...

Kelsey Road, Moortown, Market Rasen

5 Bedroom Detached House | £800,000

Acorn House is a substantial and individually designed detached family residence offering approximately 307 sq.m (3,305...

Mundys Market Rasen (Market Rasen)

22 Queen Street, Market Rasen, Lincolnshire, LN8 3EH

01673 847487

How much is your home worth?

Use our short form to request a valuation of your property.

Request a Valuation

Mortgage Calculator

Amount Borrowed: £
Total Amount Repayable: £
Total Monthly Payment: £
©2026 The Guild of Property Professionals. All rights reserved. Terms and Conditions | Privacy Policy | Cookie Policy | Complaints Policy | Members Login
The Guild of Property Professionals Trading Address: 121 Park Lane, London W1K 7AG. GPEA Limited. Registered in England & Wales.  Company No: 02819824.  Registered Office Address: 2 St. Stephen's Court, St. Stephen's Road, Bournemouth, Dorset, England, BH2 6LA.  VAT Registration No: 576 8795 61
Book a Property Valuation Update Cookies Preferences