Weavers Road, Darley Dale, DE4 2FU

£440,000

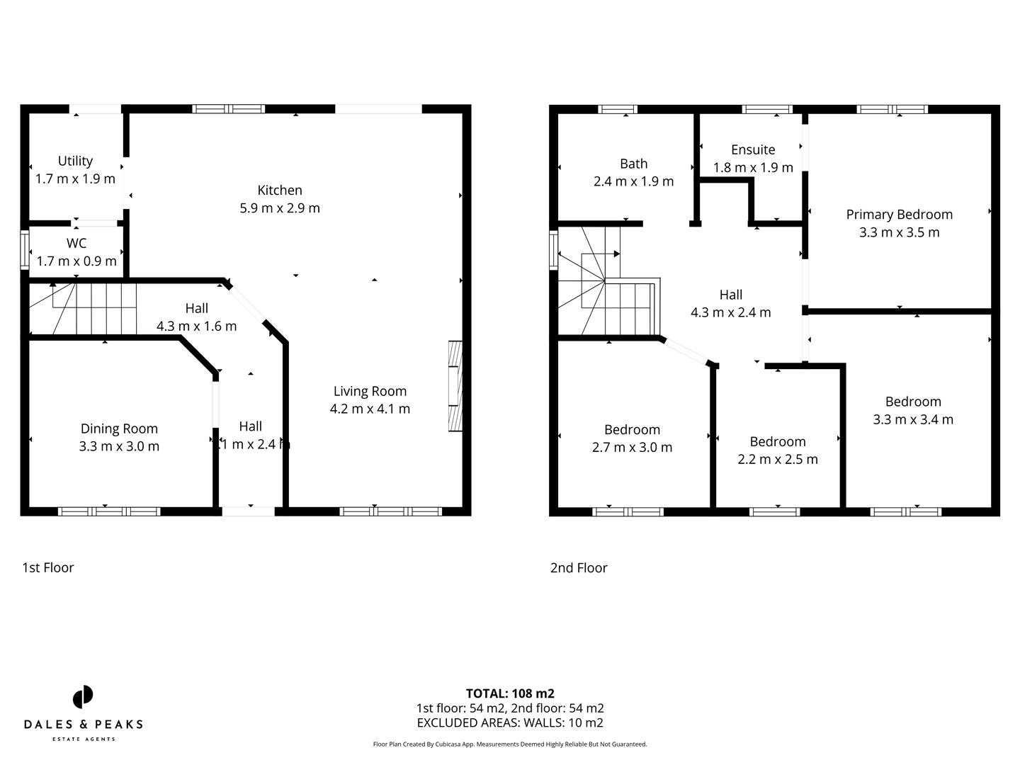
4 Bedroom Detached House for sale in Matlock

2 4 3
  • 4 bedroom detached family home
  • 1162 sqft of living accommodation
  • Downstairs WC and utility room
  • Beautifully presented rear gardens
  • Off street parking and single garage
  • Within close proximity of local amenities
  • Good road communications
  • EV charging point
  • Council tax band E, EPC rating B
  • Tenure - Freehold

Situated in the convenient location of Darley Dale, is this generously proportioned 4 bedroom detached property. Boasting 1162 sqft of bright and spacious living accommodation, the property features a beautifully presented rear garden, off street parking and a single garage.

The ground floor comprises; Entrance hallway, formal dining room/snug, open plan living space featuring a living area with media wall and electric fire, dining island kitchen with granite worktops, integrated appliances and access onto the rear garden. Separate utility room and downstairs WC.

The first floor comprises; Spacious landing space, Master bedroom with ensuite shower room, 2 further double bedrooms, main family bathroom and a single bedroom.

Property Ref: 34553172

Share:

Similar Properties

Cressbrook, Buxton, SK17 8SY

4 Bedroom Terraced House | £425,000

A charming 4 bedroom, 4 storey, Grade II mid terrace cottage, tucked away in the Peak District village of Cressbrook. Oc...

Starkholmes Road, Matlock, DE4 5JA

2 Bedroom Semi-Detached House | Offers in region of £425,000

Situated in the highly desirable and picturesque village of Starkholmes, close to local village amenities is this quaint...

Acorn Ridge, Matlock, DE4 3TT

5 Bedroom Detached House | Offers in region of £425,000

A substantial 5 bedroom detached property, enjoying panoramic views towards Riber Castle and the surrounding countryside...

East Bank, Winster, DE4 2DT

3 Bedroom Semi-Detached House | Offers in region of £450,000

Located in the heart of the village of Winster and offering 1184 sqft of living accommodation, is this Grade II Listed 3...

Building Plot with planning for 1 detached dwelling, Highcroft Cottage, Parkhead, Crich, Matlock, DE4 5GY

Plot | £450,000

A truly unique opportunity to build your dream home in this stunning rural location. With planning consent granted for t...

Hackney Grange, Matlock, DE4 2QP

4 Bedroom Detached House | £450,000

A well presented and maintained 4 bedroom detached property, situated in a highly desirable location, within close proxi...

Dales and Peaks (Chesterfield)

Brampton, Chesterfield, S40 2AP

01246 567540

How much is your home worth?

Use our short form to request a valuation of your property.

Request a Valuation

Mortgage Calculator

Amount Borrowed: £
Total Amount Repayable: £
Total Monthly Payment: £
©2026 The Guild of Property Professionals. All rights reserved. Terms and Conditions | Privacy Policy | Cookie Policy | Complaints Policy | Members Login
The Guild of Property Professionals Trading Address: 121 Park Lane, London W1K 7AG. GPEA Limited. Registered in England & Wales.  Company No: 02819824.  Registered Office Address: 2 St. Stephen's Court, St. Stephen's Road, Bournemouth, Dorset, England, BH2 6LA.  VAT Registration No: 576 8795 61
Book a Property Valuation Update Cookies Preferences