Masson Road, Matlock Bath, Matlock

£800,000

6 Bedroom Detached House for sale in Matlock

3 6 3
  • 6 bedroom detached family home
  • 2938 sqft of living accommodation
  • Open plan dining kitchen with a granite island and integrated appliances
  • Unique and historic features
  • Internal self contained annex
  • Ample off street parking
  • Panoramic views of the surrounding area
  • EPC rating D
  • Council tax band E
  • Tenure - Freehold

£800,000 - £850,000 (Guide price) Built with elegant Georgian style and proportion, this five bedroom property has been recently modernised throughout and boasts a wealth of period features, including large sash windows which flood the property with natural light. Featuring off street parking for multiple cars, a tiered garden to the rear with a home bar and views across the surrounding countryside, Danbury Lodge also presents an excellent business opportunity, with an internal but separate one bedroom annex, currently used as a successful holiday let.

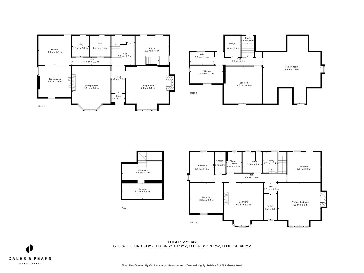
The lower ground floor comprises: Large cellar and storage space.

The ground floor comprises: Entrance porch and hallway with under the stairs storage, two front aspect south facing reception rooms, dining kitchen with integrated appliances and granite Island, separate utility room and downstairs WC.

The first floor comprises: Three south facing double bedrooms with feature fireplaces; two of the bedrooms also showcase bay windows. A walk in closet off the main bedroom, bathroom with freestanding bath and stained glass window, a separate shower room and two further double bedrooms to the rear, one of which benefitting from access onto the rear decking.

The annex comprises: Open plan living space with velux windows, fitted kitchen with integrated appliances, a double bedroom and bathroom.

Dales And Peaks Forwardmove - Please Read - Dales & Peaks is marketing this Property with the benefit of ForwardMove. Dales & Peaks has introduced ForwardMove to help speed up the sales process, minimise sale fall-throughs and give more certainty to both the Seller and the Buyer.

Purchasers will benefit from the Buyer Information Pack (BIP), which we have created with our legal partners, to give buyers more information before they agree to purchase.

The pack includes:

Property information form (TA6)
Fixtures and contents form (TA10)
Official Copy of the Register (OC1)
Title Plan (OC2)
Local Search*
Water and Drainage Search*
Coal and Mining Search*
Homescreen / Environmental Search*

(Dales & Peaks has ordered the local, drainage, coal and homescreen / environmental searches; we will add these to the BIP as they become available)


ForwardMove allows the sale process to be completed significantly quicker than a 'normal sale'. This is because the legal work, usually done in the first four to eight weeks after the sale is agreed, has already been completed. The searches, which can take up to five weeks, are ordered on the day the listing goes live and are transferable to the successful Buyer as part of their legal due diligence.

Additionally, and on behalf of the Seller, Dales & Peaks requests that the successful Buyer enters into a Reservation Agreement and pays the Reservation Agreement Fee of £595 (including VAT). This includes payment for the Buyer Information Pack and all the searches (which a buyer typically purchases separately after the sale is agreed).

Upon receipt of the signed Reservation Agreement, payment of the Reservation Agreement Fee, completion of ID and AML checks and the issuing of the Memorandum of Sale, the Seller will agree to take the Property off the market and market it as Sold Subject To Contract (SSTC).

During the Reservation Agreement period, the Seller will reject all offers and not enter into another agreement with any other buyer. The reservation period is agreed upon at the time of sale but is usually between 60 and 120 days.

The Reservation Fee is non-refundable except where the Seller withdraws from the sale. A copy of the Reservation Agreement is available on request, and Dales & Peaks advises potential buyers to seek legal advice before entering into the Reservation Agreement.

If you have any questions about the process or want to know how selling or buying with Dales & Peaks ForwardMove could benefit you, please speak to a member of the Dales & Peaks team.

Property Ref: 7689458_34359261

Share:

Similar Properties

Avonlea, Somersall Lane, Chesterfield, S40 3LA

5 Bedroom Detached House | Guide Price £800,000

£800,000 - £840,000 (Guide price) Located in unarguably one of the most desirable postcodes in Chesterfield, situated on...

The Hollies, Middle Road, Hardwick Wood, Wingerworth, Chesterfield, S42 6RH

5 Bedroom Detached Bungalow | £799,950

Situated in the exceptionally special Hardwick Wood, an area situated on the outskirts of Wingerworth and just minutes f...

The Jetty, Plot 3, Ogston View, Woolley Moor, Derbyshire, DE55 6FG

4 Bedroom House | £765,000

Welcome to Ogston View, a distinctively unique development of 4 luxury contemporary barn style new build homes, built by...

Apt 2, Riber Castle, Riber, Matlock, Derbyshire, DE4 5JU

2 Bedroom Apartment | £825,000

For over 160 years Riber Castle has dominated the landscape above Matlock, today 26 lucky buyers will be able to call it...

Handley House, Handley Lane, Handley, Derbyshire, S45 9AT

7 Bedroom Detached House | £850,000

Welcome to Handley House - A Rare Countryside Residence with Heritage, Heart and Unrivalled Views.Set in the peaceful ha...

Wash Green, Wirksworth, DE4 4FD

5 Bedroom Detached House | £895,000

Nestled in the charming area of Wash Green, Wirksworth, this deceptively spacious 4/5 bedroom detached home offers an im...

Dales and Peaks (Chesterfield)

Brampton, Chesterfield, S40 2AP

01246 567540

How much is your home worth?

Use our short form to request a valuation of your property.

Request a Valuation

Mortgage Calculator

Amount Borrowed: £
Total Amount Repayable: £
Total Monthly Payment: £
©2025 The Guild of Property Professionals. All rights reserved. Terms and Conditions | Privacy Policy | Cookie Policy | Complaints Policy | Members Login
The Guild of Property Professionals Trading Address: 121 Park Lane, London W1K 7AG. GPEA Limited. Registered in England & Wales.  Company No: 02819824.  Registered Office Address: 2 St. Stephen's Court, St. Stephen's Road, Bournemouth, Dorset, England, BH2 6LA.  VAT Registration No: 576 8795 61
Book a Property Valuation Update Cookies Preferences