Derbyshire Country House, Nr Matlock

£2,500,000

16 Bedroom Country House for sale in Matlock

5 16 15
  • Grade II* Historic country house with a date stone of 1661.
  • Superb rural location yet within easy reach of amenities.
  • Leaded and mullioned windows, beamed ceilings and fine fire places.
  • The house offers three large reception rooms including generous modern dining kitchen.
  • 6 bedrooms to the main house. 10 En-suite bedrooms in the converted former stables.
  • Separate private gardens to the house and stables.
  • 3.5 acres of grounds and gardens with woodland, paddock, tennis court and ample parking.
  • 11,129 sq ft.
  • Opportunity to occupy the main house and run the stables as a business.
  • The site offers further development opportunities subject to planning permission and consents.

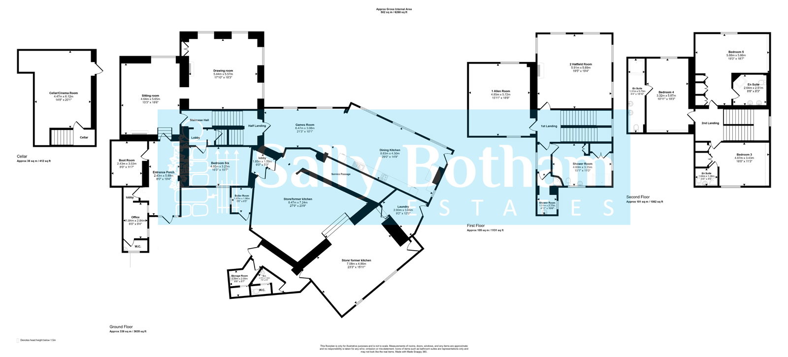
A splendid Grade II* listed, 16th-century, country house in a superb rural location, set in 3.5 acres of gardens and grounds. Offering 16 bedrooms, 10 of which are located in the converted former stables and 6 in the main house. Large sitting room, generous drawing room and extensive dining kitchen plus cinema cellar, boot room, office and former commercial kitchens to the main house. Sitting room, dining kitchen, conservatory, and store rooms to the stable annexe.

A magnificent Grade II* Listed, 16th-century country house located in the rural hamlet of Riber on the outskirts of the town of Matlock, surrounded by delightful open countryside and standing in 3.5 acres of gardens and grounds. This splendid property is full of character and original features, with leaded mullion windows, beamed ceilings, fine feature fire openings, and an original elegant staircase. 

The main house is set over four floors and has: six bedrooms, three with en suite facilities; two family shower rooms; characterful sitting room; extensive drawing room; exceptionally large dining kitchen; office; boot room; games room; and cellars, currently used as a cinema room. Together with the stone-built stable block, housing: 10 en-suite bedrooms; sitting room; conservatory; and dining kitchen.

From the 1960s, the property was used as a country house hotel. The former hotel kitchens and pantry have been repurposed as storage rooms and a laundry facility. There are extensive grounds (3.5 acres) with ample parking, delightful gardens, tennis courts, woodland and paddock. The property is built in local stone with coped gables and string course mouldings forming window hoods. Originally one very large property, the house was divided in the eighteenth century to form two dwellings, the larger of which is Riber Hall.

Riber is a small hamlet of historic stone-built houses located in an idyllic rural setting to the south of Matlock, on the outskirts of the town, where there are excellent amenities. As well as this 16th-century hall, other notable properties include The Manor House and Riber Castle, which was built c.1860 by the industrialist John Smedley – one of the figures responsible for the hydropathic movement in the UK, which brought wealth and rapid expansion to Matlock. Riber is conveniently situated for the Peak District National Park and the towns of Matlock and Alfreton. Sheffield, Nottingham and Derby are within commuting distance. 

Matlock is a picturesque spa town in the heart of Derbyshire surrounded by beautiful open countryside. The town has a wealth of historic buildings as well as excellent local amenities and good primary and secondary schools. At the centre of the town is Hall Leys Park with sports facilities, a children’s play area, formal gardens, and a riverside walk. There is a branch line train station with a regular service to Derby and Nottingham, from where there are direct trains to London St Pancras.

Entering the property via a half-glazed hardwood door with leaded sidelight windows, which opens to:

PORCH
With stone flags to the floor and a polycarbonate roof. Doors open to a BOOT ROOM and an OFFICE with a WC.

Leading off the porch, a half-glazed leaded panel door opens to:

SITTING ROOM
Originally the reception hallway, having a closed-off original entrance door, opening onto the courtyard to the front of the property. There is a front-aspect leaded, mullions and transomed window, overlooking the courtyard and enjoying views over the open countryside. The room has original beams to the ceiling with a heavy central beam, and an original feature fire opening with a dressed stone surround and heavy stone lintel, creating a display niche. The room has a central heating radiator with thermostatic valve, ceiling-mounted electric panel heater, wall lamp points, and an arched opening leading to:

DRAWING ROOM
A delightfully light and spacious room with mullioned and transomed windows to two aspects, with fitted window seats and modern shutters. The room has plaster-covered cruciform beams with decorative moulding. There is a fine feature fireplace with a Victorian Derbyshire fossil marble surround, and a period cast iron insert with an open grate. The room has a central heating radiator with thermostatic valve, and a closed-off door leading to the staircase hall. 

From the sitting room, a half-glazed panelled door opens to:

STAIRCASE HALLWAY
Having a broad original staircase – with turned spindles and newel posts with acorn finials – rising to the upper-floor accommodation. From the hallway, a door opens to:

INNER LOBBY
Having a batten door with thumb latch opening to:

GROUND FLOOR BEDROOM
With rear-aspect leaded mullioned windows overlooking the rear courtyard. There are original beams to the ceiling and a display niche. The room has a wall-mounted electric panel heater.

From the inner lobby, a panelled door opens to a stone staircase, which descends to:

CELLAR / CINEMA ROOM
With original stone thrawls, salting bench, and wine storage bins. An early batten entrance door with glazed panel opens onto an external stone staircase leading to the rear of the property.

 From the staircase hallway, stairs rise to:

HALF-LANDING
With an early-18th century dog gate, and a half-glazed panelled door opening to:

DINING KITCHEN and GAMES ROOM
The kitchen is housed in an extension to the property built in 1994, and has front-aspect mullioned and transomed windows with leaded panes, flooding the room with natural light. The kitchen area of the room has polished grey marble tiled flooring, cornice to the ceiling, and an exceptionally good range of shaker-style kitchen units, with cupboards set beneath a granite-effect worksurface. Set within the worksurface is a one-and-a-half-bowl porcelain sink, and a four-ring ceramic hob, over which is an extractor canopy. There are wall-mounted storage cupboards, and twin Zanussi eye-level electric ovens. There is space for a fridge-freezer, and beneath the worksurface is space for two 12-places-setting dishwashers. The room has central heating radiators and a half-glazed entrance door opening onto the gardens.

From the half-landing, the staircase rises to:

FIRST-FLOOR LANDING 
Where panelled doors open to:

BEDROOM ONE – ‘The Allen Room’
With dual-aspect mullioned and transomed windows with leaded panes, the front window enjoying views over the open countryside, and the rear window overlooking the rear courtyard. The room has exposed beams to the ceiling with a heavy central beam. There is a central heating radiator with thermostatic valve.

BEDROOM TWO – ‘The Hatfield Room’
A delightfully light and spacious room with dual-aspect mullioned and transomed windows with leaded inserts, the side windows overlooking the garden and the front windows overlooking the fields and open countryside beyond. There are plaster-covered cruciform beams with decorative cornice. The room has a feature fireplace with a decorative, ornately carved marble surround, with a cast iron insert, housing an open grate. The room has a central heating radiator with thermostatic valve.

From the landing, a panelled door opens to:

LOBBY
With a side-aspect mullioned and transomed window. Panelled doors open to:

SHOWER ROOM ONE
With dual-aspect windows with fitted modesty glazing. Suite with: shower cubicle with mixer shower, having overhead and handheld shower spray, and body jets; pedestal wash hand basin; and close-coupled WC. The room has built-in linen cupboards and a dual-fuel ladder-style towel radiator.

 SHOWER ROOM TWO
Having a suite with: quadrant shower cubicle with Mira Go shower; dual-flush close-coupled WC; and pedestal wash hand basin. There is an electric towel radiator.

 From the first-floor landing, a staircase rises via a half-landing with a mullioned and transomed leaded window, one of the panes having coloured glass, depicting a bishop’s mitre. The staircase rises to:

SECOND-FLOOR LANDING
Open to the apex of the roof, with exposed rafters and heavy roof purlins. A panelled door with stone surround opens to:

BEDROOM THREE – ‘The Boswell Room’
Built into the shape of the roof, and having front-aspect mullioned dormer windows with superb far-reaching views over the open countryside. The room has a central heating radiator with thermostatic valve, and a panelled door opening to:

EN SUITE SHOWER ROOM
Having a suite with: shower cubicle with wet-wall-style boarding, and a Mira Vigour shower unit; twin pedestal wash hand basins; and close-coupled WC. The room has wet-wall panelling to dado height, shaver point, extractor fan, and chrome-finished electric towel radiator.

BEDROOM FOUR
A light and spacious room with a front-aspect mullioned and transomed window with a leaded casement, enjoying the fine views afforded by the property. The room has a central heating radiator, and a range of built-in wardrobes providing hanging space and shelving. A panelled door opens to:

EN SUITE SHOWER ROOM
Having a suite with: circular shower cubicle with Mira Vigour shower unit; twin pedestal wash hand basins; and close-coupled WC. There is an electric chrome-finished towel radiator, shaver point, and extractor fan.

BEDROOM FIVE
Having a rear-aspect mullioned window with fitted secondary glazing, overlooking the courtyard to the rear of the property, and enjoying a deep polished oak window sill. The room has built-in wardrobes with hanging rail and shelf. There is a central heating radiator with thermostatic valve. A panelled door opens to:

EN SUITE SHOWER ROOM
Having a suite with: quadrant shower cubicle with mixer shower; wash hand basin with pillar tap; and concealed-cistern dual-flush WC. There is a gold-finished electric towel radiator, and an extractor fan.

OUTSIDE
To the front of the property is an enclosed flagged courtyard, giving access to the original entrance door, enclosed by stone walls with stone balustrade tops, and having a pair of decorative ball-finial gate piers, with a pair of gates leading onto the lane, the wall and gate piers have a separate Grade II listing. An arch-topped wrought iron gate leads to an area of garden enclosed by stone walls and enjoying the southerly aspect. 

There is a large flagged terrace, where the door opens from the dining kitchen. From the terrace, stone steps descend to the cellar entrance door. To the side of the terrace is a gravelled border, interspersed with ball-shaped box plants. 

Beyond the terrace is an area of garden laid to lawn, surrounded by borders, stocked with mature ornamental trees. Beyond the lawn is a wildlife garden. From the terrace, a stepped pathway with stone balustrade rises to a gateway leading to a further terrace.

 There is outside lighting on PIR sensors, an outside water supply, and outside power supplies.

 To the rear of the property is an enclosed courtyard, bounded on two sides by the stable block, and providing parking for several vehicles. A pair of gates lead to a walled garden area, currently used as a garden dirty space. Within the courtyard, there is an electric vehicle charging point. From the courtyard, steps lead to a flagged terrace, having a raised border with a fine mature climbing hydrangea and a mature camelia giving access to the Main house entrance door. 

From the terrace, doors open to:

BOILER HOUSE
Housing the Worcester gas-fired boiler, which provides hot water and central heating to the main property.

From the courtyard, a louvered door opens to:

FORMER STAFF TOILETS
Now in a partially-derelict state, with ladies' and gents' toilets, and a door opening to:

FORMER HOTEL KITCHENS
An exceptionally spacious split-level room with quarry tiles to the floor. The kitchen area of the room has rooflight windows and tiling to the walls. There are in-and-out ‘pass’ doors, which lead to a closed-off lobby, which once led to bedroom six. From the kitchen is a further set of in-and-out ‘pass’ doors opening to a former servery area, which once serviced the hotel dining room, which is now the dining kitchen.

Leading off the kitchen is:

UTILITY ROOM 
With plumbing for washing machines, and having a glazed entrance door opening onto the side of the property.

THE STABLES
An L-shaped former stable building, enclosing two sides of the courtyard. The stable is constructed in stone under a traditional roof, with access doors leading from both sides of the building. The stables house: ten en-suite bedrooms with kitchenette units incorporating a stainless sink, shelving, drawers, microwave and toaster/kettle; storage rooms; sitting room; dining kitchen; and conservatory.

STORE ROOM
Accessed from the courtyard, having original stone flags to the floor, and with the original feed troughs still in place. The room houses the twin gas-fired boilers, which provides hot water and central heating to the building. There is a hot water cylinder and storage shelving.

From the courtyard, a panelled door with glazed pane opens to:

LOBBY
With a kitchenette unit, central heating radiator with thermostatic valve, built-in storage cupboard with hanging rail and shelf, and a door opening leading to:

SITTING ROOM
With dual-aspect windows, central heating radiator with thermostatic valve, wall lamp points, and a wall-mounted cinema screen style TV. A batten door with thumb latch opens to:

POT WASH LOBBY
With twin stainless sinks with mixer tap, with fitted storage shelving over, and space and connection for a dishwasher beneath. An oak panelled door with thumb latch opens to a WC With a central heating radiator with thermostatic valve, illuminated mirror, and suite with toilet incorporating a cistern wash hand basin.

From the wash up lobby, steps rise to:

ANTEROOM
With a polycarbonate roof, stone-flagged floor, and window overlooking the gardens. An early batten door leads to:

CONSERVATORY
Having a butterfly polycarbonate roof, double-glazed panels set upon a dwarf wall, and a glazed entrance door opening onto the stable gardens. The conservatory has exposed stone walls, stone flags to the floor, wall lamp points, and a central heating radiator. A door opening with a dressed stone surround leads to:

DINING KITCHEN
A former carriage house – having a carriage opening – now with floor-length windows with obscured glass, which once led to the courtyard. The room has original stone flags to the floor, and two large granite-topped dining tables with bench seating. Over each of the dining tables is a decorative light fitting. To one wall is an early mirror with a decorative gesso frame, depicting sphinxes. The room has a range of storage cupboards, and worksurface with a stainless sink. There is a central heating radiator with thermostatic valve, and a Belling range-style cooker with a five-ring ceramic hob, double oven, and grill, over which is an extractor canopy.

 From the courtyard, a broad entrance door opens to:

HALLWAY
A split-level hallway with a glazed entrance door leading to the stable gardens. There is a central heating radiator, wall lamp points, and a door leading to: 

CORRIDOR
With a window with obscured glass, central heating radiator, and doors leading to bedrooms nine and ten.

BEDROOM NINE
With rear-aspect UPVC double-glazed windows overlooking the gardens. The room has exposed roof beams, central heating radiator, wall lamp points, and kitchenette unit. A door opens to:

EN SUITE SHOWER ROOM
With a UPVC double-glazed and leaded window overlooking the gardens. There are further exposed roof timbers, and suite with: shower cubicle with a mixer shower; pedestal wash hand basin; and dual-flush close-coupled WC. There is an electric towel radiator, central heating radiator with thermostatic valve, and fitted hair dryer.

BEDROOM TEN
Having an entrance lobby with an exposed-stone wall and a window overlooking the courtyard. There is a central heating radiator and a kitchenette unit. A door leads to a spacious bedroom with a gable-end mullioned and transomed window enjoying views towards Crich Stand. There is a further window overlooking the gardens. A glazed entrance door opens to an external stone staircase, which leads to the garden. The room has a feature fire opening with a dressed stone surround, housing an early cast iron grate. There is a central heating radiator. A door leads to:

EN SUITE BATHROOM
Having UPVC double-glazed windows overlooking the gardens. Suite with: spa bath with mixer taps, handheld shower spray, and spa jets; twin pedestal wash hand basins with illuminated mirror over; and close-couple WC. There is a chrome-finished towel radiator, central heating radiator with thermostatic valve, and wardrobe space with hanging rail.

 From the hallway, a fifteen-pane glazed door opens to:

INNER HALL
With a UPVC double-glazed and leaded window overlooking the gardens. A staircase rises to bedrooms five to eight. The hall has a central heating radiator, and wall lamp points. A door leads to:

CORRIDOR
Giving access to bedrooms one to four. The corridor has windows overlooking the driveway. A glazed entrance door gives access to the driveway which leads to the car park, the woodlands, and the tennis courts. Doors open to:

BEDROOM ONE
With a UPVC double-glazed and leaded window overlooking the courtyard and the main hall. The room has a central heating radiator with thermostatic valve, kitchenette unit, and built-in wardrobe with hanging rail and shelf. There is a central heating radiator with thermostatic valve, and a point for a wall-mounted TV. A door opens to:

EN SUITE SHOWER ROOM
With a side-aspect window looking over the courtyard. The room is lined with wet-wall-style boarding and has a suite with: double-width shower cubicle with mixer shower; wash hand basin with storage cupboards beneath and illuminated mirror over; and a dual-flush close-coupled WC. There is a chrome-finished ladder-style towel radiator. 

BEDROOM TWO
Having double-glazed and leaded windows overlooking the courtyard and the hall. The room has a kitchenette unit, wardrobe with hanging rail and shelf, central heating radiator, and a point for a wall-mounted TV. A door opens to:
EN SUITE SHOWER ROOM
Having a UPVC double-glazed and leaded window with obscured glass. The walls are boarded with a wet-wall-style boarding and has a suite with: his-and-hers wash hand basin with illuminated mirror over and storage cupboards beneath; shower cubicle with mixer shower; and dual-flush close-coupled WC. There is a chrome-finished ladder-style towel radiator.

BEDROOM THREE
Having two UPVC double-glazed and leaded windows overlooking the courtyard. The room has a kitchenette unit, a built-in wardrobe and central heating radiator. A door opens to:

EN SUITE SHOWER ROOM
Having a UPVC double-glazed and leaded window with obscured glass. Wet-wall-style boarding and suite with: his-and-hers wash hand basin with illuminated mirror over and storage cupboards beneath; shower cubicle with mixer shower; and dual-flush close-coupled WC. There is a chrome-finished ladder-style towel radiator.

BEDROOM FOUR
A spacious room with UPVC double-glazed and leaded windows overlooking the courtyard. There are feature exposed-stone walls, and a former ventilation arrow slit with decorative coloured and leaded glass pane. The room has a kitchenette unit, central heating radiators with thermostatic valves, television aerial point, and wall lamp points. A door opens to:

EN SUITE SHOWER ROOM
With a side-aspect window, wet-wall-style boarding, and suite with: his-and-hers wash hand basin with illuminated mirror over and storage cupboards beneath; shower cubicle with mixer shower; and dual-flush close-coupled WC. There is a chrome-finished ladder-style towel radiator.

 From the hallway, a quarter-turn staircase rises to:

FIRST-FLOOR CORRIDOR
Having windows overlooking the driveway and woodland. There are two former ventilation windows with stained glass panes. An entrance door opens onto an external stone staircase, leading to the driveway. Doors open to:

BEDROOM FIVE
Having a front-aspect UPVC double-glazed and leaded window overlooking the courtyard, and with views over the hall to the open countryside beyond. The room has exposed king post trusses and roof purlins. There is a kitchenette unit, built-in wardrobe, central heating radiator with thermostatic valve, and television aerial point. A door opens to:

EN SUITE SHOWER ROOM
Having a suite with: double-width shower cubicle with mixer shower; wash hand basin with pillar tap, and storage cupboards beneath; and dual-flush close-coupled WC. There is an illuminated mirror, chrome-finished ladder-style towel radiator, and extractor fan.

BEDROOM SIX
Having double-glazed windows overlooking the courtyard, set within an exposed stone surrounds. The room has a king post truss, exposed roof purlins, kitchenette unit, and a built-in wardrobe. There is a central heating radiator, and a television aerial point. A door opens to:

EN SUITE SHOWER ROOM
Having a UPVC double-glazed and leaded window with obscured glass. There is wet-wall-style boarding to the walls, and suite with: his-and-hers wash hand basin with illuminated mirror over and storage cupboards beneath; shower cubicle with mixer shower; and dual-flush close-coupled WC. There is a chrome-finished ladder-style towel radiator.

BEDROOM SEVEN
Having double-glazed windows overlooking the courtyard, set within an exposed stone surround. The room has a king post truss, exposed roof purlins, kitchenette unit, and a built-in wardrobe. There is a central heating radiator, and a television aerial point. A door opens to:

EN SUITE SHOWER ROOM
Having wet-wall-style boarding to the walls, and suite with: his-and-hers wash hand basin with illuminated mirror over and storage cupboards beneath; shower cubicle with mixer shower; and dual-flush close-coupled WC. There is a chrome-finished ladder-style towel radiator.

BEDROOM EIGHT
A spacious room with a pair of king post trusses. There are two double-glazed windows overlooking the courtyard and the hall to the open countryside beyond. The room has feature exposed-stone walls, kitchenette unit, built-in wardrobe, central heating radiators with thermostatic valves, and television aerial point. A door opens to:

EN SUITE SHOWER ROOM
Having a window with obscured glass, wet-wall-style boarding, and suite with: his-and-hers wash hand basins with the illuminated mirror over and storage cupboards beneath; dual-flush close-coupled WC; shower. There is a chrome-finished ladder-style towel radiator, and an extractor fan.

STABLE GARDENS
Lying to the rear of the stable block is a delightful area of south-facing garden, enclosed by stone walls, with a large central lawn with borders stocked with mature ornamental shrubs and trees. A delightfully private garden space, with a flagged seating area, having bench seating and a fire pit.

OUTSIDE (continued)
The property is approached via a pair of ball-finialed gate piers leading to a driveway, the first part of which the neighbouring properties have vehicular access over. Leading off the tarmac driveway is a long cobbled driveway, flanked by stone walls. Beyond the cobbled driveway are the stable gardens to the right, and an area of wildlife woodland to the left. 

To the right of the driveway lies the stable block, to the end of which is a vehicular-access drive to the courtyard. To the entrance to the courtyard drive is a set of horse-mount stone blocks. To the end of the driveway is a large parking area for several vehicles, beyond which is an area of woodland with a track leading to a second vehicular access from the road. 

Beyond the wooded area is an area of paddock with a hard surface tennis court, which would benefit from restoration.

SERVICES AND GENERAL INFORMATION
All mains services are connected to the property.

For Broadband speed, please go to checker.ofcom.org.uk/en-gb/broadband-coverage
For Mobile Phone coverage, please go to checker.ofcom.org.uk/en-gb/mobile-coverage

TENURE Freehold

COUNCIL TAX BAND (Correct at time of publication) ‘currently not banded’

DIRECTIONS
Leaving Matlock Crown Square along the A615 towards Alfreton: after 1.6 miles, turn right immediately after the former filling station into Alders Lane. Follow the lane for 1.2 miles. At the T-junction, take the drive directly in front of you, then the cobbled drive off to the left.

ANTI-MONEY LAUNDERING 
We are required by law to conduct anti-money laundering checks on all those selling or buying a property. Whilst we retain responsibility for ensuring checks and any ongoing monitoring are carried out correctly, the initial checks are carried out on our behalf by Lifetime Legal who will contact you once you have agreed to instruct us in your sale or had an offer accepted on a property you wish to buy. The cost of these checks is £48 (incl. VAT), which covers the cost of obtaining relevant data and any manual checks and monitoring which might be required. This fee will need to be paid by you in advance of us publishing your property (in the case of a vendor) or issuing a memorandum of sale (in the case of a buyer), directly to Lifetime Legal, and is non-refundable.

Disclaimer
All measurements in these details are approximate.  None of the fixed appliances or services have been tested and no warranty can be given to their condition. The deeds have not been inspected by the writers of these details. These particulars are produced in good faith with the approval of the vendor but they should not be relied upon as statements or representations of fact and they do not constitute any part of an offer or contract.    

Important Information

  • This is a Freehold property.

Property Ref: 1140650

Share:

Similar Properties

Coombs Road, Bakewell, DE45 1AQ

4 Bedroom Detached House | £1,350,000

Superbly appointed spacious period home, close to town centre, set in 0.6 ACRE private walled garden. Dining kitchen 4 d...

Holymoor Road, Holymoorside. S42 7DU

4 Bedroom Detached House | Offers in region of £950,000

A superbly presented, stone built, elegant & spacious family home in a popular village location. 4 beds, 3 baths, large...

Knowleston Place, Matlock, DE4 3BU

8 Bedroom Villa | £875,000

A splendid, elegantly proportioned period home, on a quiet cul-de-sac just off the town centre. With with a wealth of op...

Sally Botham Estates (Matlock)

27 Bank Road, Matlock, Derbyshire, DE4 3NF

01629 760899

How much is your home worth?

Use our short form to request a valuation of your property.

Request a Valuation

Mortgage Calculator

Amount Borrowed: £
Total Amount Repayable: £
Total Monthly Payment: £
©2026 The Guild of Property Professionals. All rights reserved. Terms and Conditions | Privacy Policy | Cookie Policy | Complaints Policy | Members Login
The Guild of Property Professionals Trading Address: 121 Park Lane, London W1K 7AG. GPEA Limited. Registered in England & Wales.  Company No: 02819824.  Registered Office Address: 2 St. Stephen's Court, St. Stephen's Road, Bournemouth, Dorset, England, BH2 6LA.  VAT Registration No: 576 8795 61
Book a Property Valuation Update Cookies Preferences