Matlock. C/O Sally Botham Estates, Bank Road.

£875,000

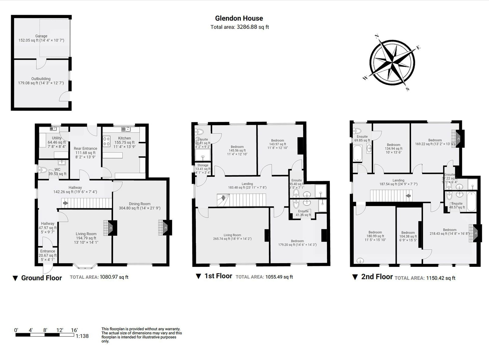
8 Bedroom Guest House for sale in Matlock

3 8 6
  • Currently ran as a successful Guest House.
  • Imposing early grand Victorian villa 1857. Grade II Listed.
  • 8 bedrooms, 6 en-suites including family bathroom.
  • Elegant first floor drawing room.
  • Spacious dining room and opulent sitting room.
  • Cloak room and storage cellars.
  • Breakfast kitchen and utility room.
  • Stone out building and garage.
  • Generous parking with EV chager, courtyard and front gardens.
  • Level walking of town centre amenities and train station.

A splendid, elegantly proportioned Guest House, on a quiet cul-de-sac near to the town centre. With with a wealth of opulent original features. Set over 3 floors with 8 bedrooms, 6 bathrooms, first floor drawing room, ground floor siting room, dining room, breakfast kitchen and utility room. Cloak room and storage cellars. Generous off road parking for several vehicles, rear courtyard garden with stone out building. Well stocked garden to the front.

Knowleston Place, Matlock

A splendid and superbly appointed, Grade II Listed, early Victorian period villa-style property, ideally located on a quiet cul-de-sac, close to the park, within easy walking distance of the town centre and train station. This immaculately presented and exceptionally spacious home dates back to 1857, with accommodation set over three floors, offering: eight bedrooms; six en-suites; family bathroom; elegant and spacious first-floor drawing room; handsome ground-floor dining room; sitting room; reception hallway; kitchen; cloak room; and utility room. The property has a generous amount of off-road parking, a garden to the front, and a courtyard to the rear. The property is currently used as a successful bed and breakfast business.

Matlock is a picturesque spa town in the heart of Derbyshire close to the Peak District National Park, surrounded by beautiful open countryside. The town has a wealth of historic buildings as well as excellent local amenities and good primary and secondary schools. At the centre of the town is Hall Leys Park with sports facilities, children’s play area, formal gardens, and a riverside walk. Situated on the A6 trunk road, there is easy access to Manchester, Derby, and Nottingham, and the nearby towns of Chesterfield (9 miles), Wirksworth (4.5 miles), and Bakewell (8 miles). There is a branch line train station with a regular service to Derby and Nottingham, and on to London St Pancras.

Entering the property via a panelled entrance door, with over-door light, which opens to:

ENTRANCE VESTIBULE
With original cornice to the ceiling and a half-glazed door with decorative gothic arched glazing bars and an arched over-door light, opening to:

RECEPTION HALLWAY 
A spacious L-shaped hallway having a fine original staircase rising to the upper floor. There is a side-aspect etched-glass window with a swan motif. The hallway has deep original skirting boards, elegant cornice to the ceiling, and parquet block flooring. Original panelled doors open to:

SITTING ROOM 
A delightfully light and spacious room with a front-aspect original sliding sash bay window with gothic arch glazing bars, panelled reveal, and original shutters. The room has fine original cornice to the ceiling with an accompanying centre rose, fitted picture rail, and dado rail. There is a fine feature fireplace with a polished dark marble surround, housing a log-burning stove. The room has central heating radiators with thermostatic valves, fibre broadband connection point, and deep original skirtings.

GROUND-FLOOR WC
With a side-aspect window with obscured glass, and ceramic tiles to the floor. Suite with a close-coupled WC, and pedestal wash hand basin. There is panelling to dado height, and a central heating radiator with thermostatic valve.

DINING ROOM 
An exceptionally spacious room with front-aspect original sliding sash windows and original wooden shutters, enjoying fine views over the park to the church. The room has a feature fireplace with a tile insert, housing an open grate. There is decorative plaster relief frieze surmounted by an elegant cornice to the ceiling. The room has an original ceiling rose with French-style chandelier, fitted picture rail, and cast iron column central heating radiators with thermostatic valves.

 From the hallway, a half-glazed door with gothic arch glazing bars and decorative etched glass panels opens to:

REAR ENTRANCE LOBBY
Having an entrance door set within a panelled reveal, with an original over-door light. The door opens to the courtyard garden to the rear of the property. The lobby has a cast iron column central heating radiator, parquet block flooring – following through from the reception hallway – with a large inset mat well. A panelled door leads to:

BREAKFAST KITCHEN
Having rear-aspect casement windows, set within a panelled reveal, overlooking the courtyard garden. The room has a good range of units in a light wood-effect finish with cupboards set beneath a granite-effect worksurface with a tile splashback. The worksurface returns to form a peninsula room divide and breakfast bar. There are wall-mounted storage cupboards. Fitted within the kitchen is a Rangemaster Nexus range-style cooker with a five ring gas hob, electric hot plate, double oven, and grill. Beneath the worksurface, there is space and connection for a 12-place-setting dishwasher. The room is illuminated by downlight spotlights and there is a central heating radiator with thermostatic valve.

From the rear entrance lobby, a door opens to:

UTILITY ROOM
Having a rear-aspect window, quarry tiled floor, and worksurface with an inset stainless sink with mixer tap. There is space and connection for an automatic washing machine, and for other white goods. Sited within the room are the twin gas-fired boilers, which provide hot water and central heating to the property. The room has fitted storage shelving and houses the mains pressure hot water cylinder with additional immersion heaters.

 From the reception hallway, a panelled door opens to a stone staircase, which descends to:

STORAGE CELLARS
Having original stone thrawls, stone-flagged floors and stone salting bench. There is power and lighting.

From the reception hallway, an elegant period staircase with swept hardwood handrail rises to:

FIRST-FLOOR LANDING 
Where an arched window with etched-glass panes and panelled reveal lends light to the landing. There is superb original cornice to the ceiling, and a decorative corbelled arch. The landing has deep original skirting boards, coat hanging space, and central heating radiator. A panelled door opens to:

FIRST-FLOOR DRAWING ROOM
Having front-aspect original sliding sash windows with gothic arch decoration, and panelled reveals. This fine room has original cornice to the ceiling with scalloped pierced decoration with inset fleur-de-lys. There is a fine original ceiling rose with French style chandelier, and period fireplace with polished marble surround, and cast iron insert, housing an open grate, currently creating a display feature. The room has deep original skirting boards and central heating radiators with thermostatic valves. 

BEDROOM ONE 
An elegantly proportioned room with front-aspect sliding sash windows with fitted secondary glazing and panelled reveal, overlooking the front lawn and the park towards the church. There is cornice to the ceiling, decorative ceiling rose, and a Victorian cast iron bedroom fireplace. The room has a central heating radiator with thermostatic valve. A panelled door opens to:

EN SUITE ONE
Being partially tiled and having suite with: shower cubicle with mixer shower having handheld shower spray; semi-countertop wash hand basin with storage cupboard beneath, and illuminated mirror over with a shaver point incorporated; and concealed-cistern dual-flush WC. The room is illuminated by downlight spotlights. There is an extractor fan and ladder-style towel radiator.

BEDROOM TWO 
With rear-aspect sliding slash windows with panelled reveals, enjoying views over the cricket field to the town beyond. The room has a feature cast iron bedroom fireplace, central heating radiator with thermostatic valve, and a panelled door opening to:

EN SUITE TWO
Being partially tiled and having suite with: shower cubicle with mixer shower with handheld shower spray; semi-countertop wash hand basin with storage cupboard beneath, and illuminated mirror over with a built-in shaver point; and concealed-cistern dual-flush WC. The room is illuminated by downlight spotlights. There is an extractor fan and ladder-style towel radiator.

BEDROOM THREE 
Again with a rear-aspect sliding slash window, having similar views to bedroom two. The room has a central heating radiator with thermostatic valve, and a panelled door opening to:

EN SUITE THREE
With a sliding slash window with obscured glass. The room is partially tiled and has a suite with: double-width shower cubicle with mixer shower; semi-countertop wash hand basin with storage cupboards beneath; and dual-flush concealed-cistern WC. There is an illuminated mirror with integral shaver point, chrome-finished ladder-style towel radiator, downlight spotlights, and an extractor fan.

From the landing, a further panelled door opens to:

STORE CUPBOARD
With fitted shelving and an arched window within a shuttered reveal. Currently used as a housekeeping cupboard.

From the landing, a quarter-turn staircase with a swept hardwood handrail rises to:

SECOND-FLOOR LANDING 
Having an arched escape window with original panelled reveal, enjoying superb views over the town and flooding the landing with natural light. There is elegant original cornice to the ceiling and a decorative corbelled arch. Panelled doors open to:

BEDROOM FOUR
Having front-aspect original sliding sash windows with gothic arched glazing bars and panelled reveals, overlooking the park and the church. The room has cornice to the ceiling and a fine original fireplace with a polished marble surround and cast iron insert, housing an open grate. There is a central heating radiator. A panelled door opens to:

EN SUITE FOUR
Being partially tiled and having suite with: panelled bath with mixer shower over; semi-countertop wash hand basin, over which is an illuminated mirror with integral shaver point; concealed-cistern dual-flush WC. The room has downlight spotlights, and chrome-finished ladder-style towel radiator.

From bedroom four, a panelled door opens to an adjoining bedroom:

BEDROOM EIGHT
With front-aspect sliding slash windows, again overlooking the park and the church. The room has an original feature fire opening, and would make an ideal dressing room to bedroom four.

BEDROOM FIVE
With rear-aspect sliding slash windows overlooking the courtyard and parking area to the cricket field and the town beyond. The room has a feature fireplace with a stone surround and period cast iron insert, housing an open grate. The room has deep original skirting boards. To the side of the chimney breast is a storage cupboard. There is a central heating radiator with thermostatic valve, and a panelled door opening to:

EN SUITE FIVE
Being partially tiled and having suite with: shower cubicle with mixer shower with handheld shower spray; semi-countertop wash hand basin with storage cupboard beneath, and illuminated mirror over with a shaver point incorporated; and concealed-cistern dual-flush WC. The room is illuminated by downlight spotlights. There is an extractor fan and ladder-style towel radiator.

BEDROOM SIX
With a rear-aspect sliding slash window with a shuttered reveal, overlooking the alms houses, and the town beyond. The room has a deep original skirting board, central heating radiator with thermostatic valve, and a panelled door opening to:

FAMILY BATHROOM
With dual-aspect windows with obscured glass. The room is partially tiled and has a suite with: P-shaped shower bath with mixer shower over; semi-countertop wash hand basin with storage cupboard and drawers beneath, and an illuminated mirror and bathroom cabinet over; concealed-cistern dual-flush WC. There are downlight spotlights, chrome-finished ladder-style towel radiator, and a panelled door opening back to the second-floor landing.

BEDROOM SEVEN
Having original front-aspect sliding slash windows with gothic arch glazing beads and panelled reveal, enjoying views towards the church. The room has a central heating radiator with thermostatic valve, and there is a pedestal wash hand basin with a tiled splashback. This room is currently used as a study.

OUTSIDE
To the front of the property there is an original gas lamp which has been renovated to a working living flame effect electric light, a stepped pathway gives access to the entrance door. There is an area of garden with a large central lawn and borders well-stocked with a good variety of flowering plants and ornamental shrubs, designed to give colour and interest throughout the year. A pathway leads through a tufa stone arch down the side of the property to the rear of the property where there is a courtyard garden ideal for sitting out and displaying pot plants. Accessed from the courtyard is a STONE-BUILT OUTHOUSE Currently used as storage, having stone flag floors, front-aspect window, power, and lighting. Incorporated within the building is a GARAGE with original stone flag floors, up-and-over vehicular access door, and fitted bike rack. There is a large off street parking area, accessed via Causeway Lane. 

 Beyond the courtyard garden is a parking area for approximately 7 vehicles, with a pay-as-you-go electric vehicle charging point. The property has outside lighting and water supplies.

SERVICES AND GENERAL INFORMATION
All mains services are connected to the property.

For Broadband speed, please go to checker.ofcom.org.uk/en-gb/broadband-coverage
For Mobile Phone coverage, please go to checker.ofcom.org.uk/en-gb/mobile-coverage

TENURE Freehold

COUNCIL TAX BAND (Correct at time of publication) ‘F’

DIRECTIONS
Leaving Matlock Crown Square along the A615 towards Alfreton: after passing the park, turn right into Knowleston Place, where the property can be found on the left-hand side.

ANTI-MONEY LAUNDERING 
We are required by law to conduct anti-money laundering checks on all those selling or buying a property. Whilst we retain responsibility for ensuring checks and any ongoing monitoring are carried out correctly, the initial checks are carried out on our behalf by Lifetime Legal who will contact you once you have agreed to instruct us in your sale or had an offer accepted on a property you wish to buy. The cost of these checks is £48 (incl. VAT), which covers the cost of obtaining relevant data and any manual checks and monitoring which might be required. This fee will need to be paid by you in advance of us publishing your property (in the case of a vendor) or issuing a memorandum of sale (in the case of a buyer), directly to Lifetime Legal, and is non-refundable.

Disclaimer
All measurements in these details are approximate.  None of the fixed appliances or services have been tested and no warranty can be given to their condition. The deeds have not been inspected by the writers of these details. These particulars are produced in good faith with the approval of the vendor but they should not be relied upon as statements or representations of fact and they do not constitute any part of an offer or contract.      

Important Information

  • This is a Freehold property.
  • This Council Tax band for this property is: F

Property Ref: 1282670

Share:

Similar Properties

Matlock. C/O Sally Botham Estates, Bank Road.

8 Bedroom Villa | £875,000

A splendid, elegantly proportioned period home, on a quiet cul-de-sac just off the town centre. With with a wealth of op...

Hay House, Ashover, S45

3 Bedroom Detached House | £875,000

A delightful rural property set on a quiet country lane offering NO CHAIN with gardens, orchard and idylic far reaching...

Hodge Lane, Uppertown, Ashover. S45 0JB

4 Bedroom Detached House | Offers in region of £850,000

Set in 2 acres of paddock and garden surrounded by unspoilt open countryside this spacious detached farmhouse offers 4 d...

Holymoor Road, Holymoorside. S42 7DU

4 Bedroom Detached House | Offers in region of £950,000

A superbly presented, stone built, elegant & spacious family home in a popular village location. 4 beds, 3 baths, large...

Coombs Road, Bakewell, DE45 1AQ

4 Bedroom Detached House | £1,350,000

Superbly appointed spacious period home, close to town centre, set in 0.6 ACRE private walled garden. Dining kitchen 4 d...

Derbyshire Country House, Nr Matlock

16 Bedroom Country House | £2,500,000

A splendid Grade II*  listed, 16th century, country house in a superb rural location, set in 3.5 acres of gardens and gr...

Sally Botham Estates (Matlock)

27 Bank Road, Matlock, Derbyshire, DE4 3NF

01629 760899

How much is your home worth?

Use our short form to request a valuation of your property.

Request a Valuation

Mortgage Calculator

Amount Borrowed: £
Total Amount Repayable: £
Total Monthly Payment: £
©2026 The Guild of Property Professionals. All rights reserved. Terms and Conditions | Privacy Policy | Cookie Policy | Complaints Policy | Members Login
The Guild of Property Professionals Trading Address: 121 Park Lane, London W1K 7AG. GPEA Limited. Registered in England & Wales.  Company No: 02819824.  Registered Office Address: 2 St. Stephen's Court, St. Stephen's Road, Bournemouth, Dorset, England, BH2 6LA.  VAT Registration No: 576 8795 61
Book a Property Valuation Update Cookies Preferences