Pinewood Road, Matlock, DE4 3HN

Guide Price
£250,000

3 Bedroom Semi-Detached House for sale in Matlock

1 3 1
  • 3 bedroom semi detached property
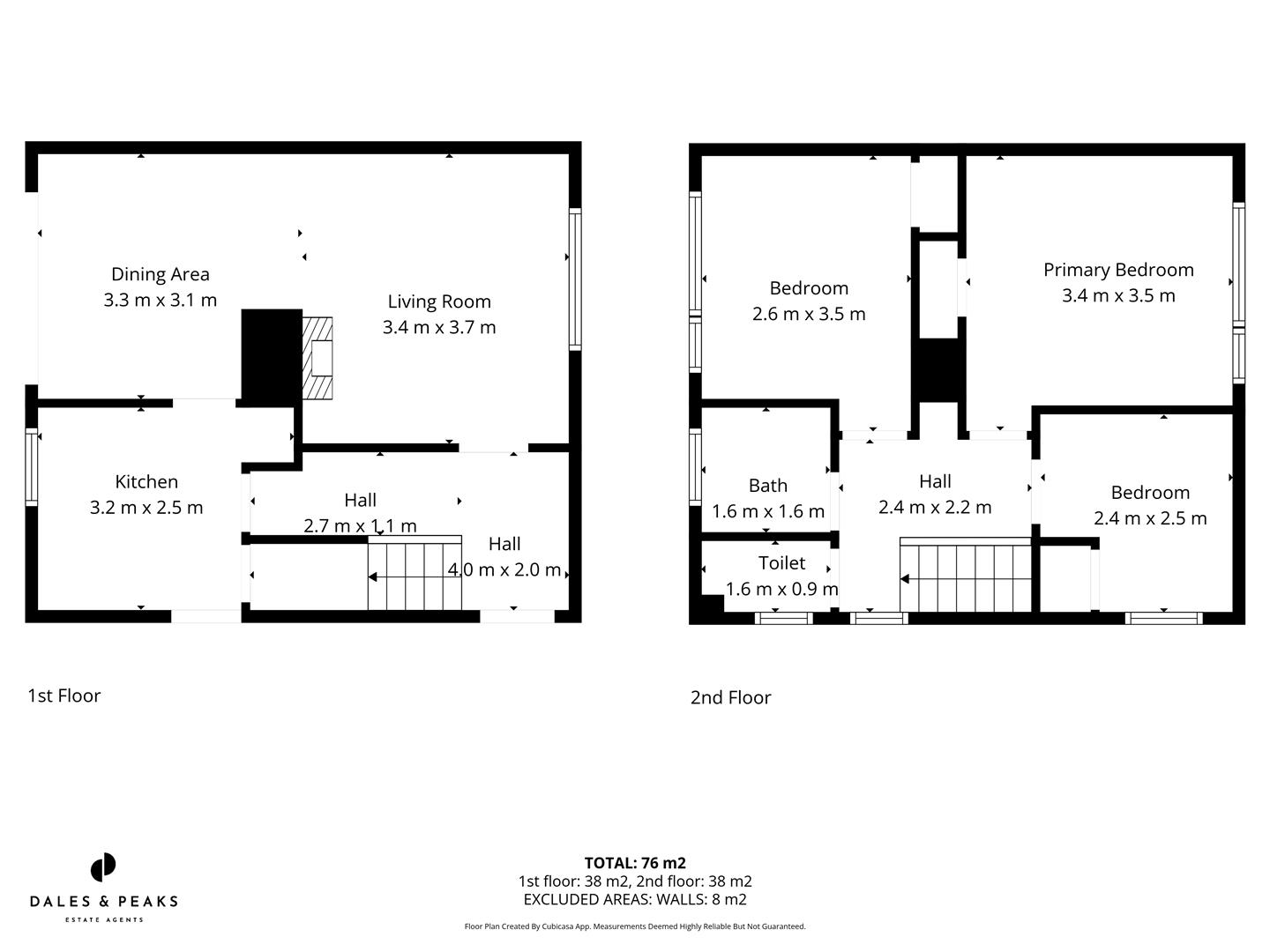
  • 818 sqft of living accommodation
  • Recently rewired
  • Open plan dining and living space
  • Gardens to the front and rear
  • Driveway
  • Single garage
  • EPC rating
  • Council tax band C
  • Tenure - Freehold

£250,000 - £255,000 (Guide price) Situated within close proximity from the centre of Matlock is this well presented 3 bedroom semi detached property, offering 818 sqft of living accommodation. The property benefits from having a full rewire in 2024
and features gardens to the front and rear, off street parking and a single garage with lighting and power.

The ground floor comprises; Entrance hallway, open plan living through dining room with doors onto the rear garden, recently refurbished kitchen with under stair storage and access onto the side of the property.

The first floor comprises; Two double bedrooms, single bedroom and bathroom.

Dales And Peaks Forwardmove - Please Read - Dales & Peaks is marketing this Property with the benefit of ForwardMove. Dales & Peaks has introduced ForwardMove to help speed up the sales process, minimise sale fall-throughs and give more certainty to both the Seller and the Buyer.

Purchasers will benefit from the Buyer Information Pack (BIP), which we have created with our legal partners, to give buyers more information before they agree to purchase.

The pack includes:

Property information form (TA6)
Fixtures and contents form (TA10)
Official Copy of the Register (OC1)
Title Plan (OC2)
Local Search*
Water and Drainage Search*
Coal and Mining Search*
Homescreen / Environmental Search*

(Dales & Peaks has ordered the local, drainage, coal and homescreen / environmental searches; we will add these to the BIP as they become available)

ForwardMove allows the sale process to be completed significantly quicker than a 'normal sale'. This is because the legal work, usually done in the first four to eight weeks after the sale is agreed, has already been completed. The searches, which can take up to five weeks, are ordered on the day the listing goes live and are transferable to the successful Buyer as part of their legal due diligence.

Additionally, and on behalf of the Seller, Dales & Peaks requests that the successful Buyer enters into a Reservation Agreement and pays the Reservation Agreement Fee of £595 (including VAT). This includes payment for the Buyer Information Pack and all the searches (which a buyer typically purchases separately after the sale is agreed).

Upon receipt of the signed Reservation Agreement, payment of the Reservation Agreement Fee, completion of ID and AML checks and the issuing of the Memorandum of Sale, the Seller will agree to take the Property off the market and market it as Sold Subject To Contract (SSTC).

During the Reservation Agreement period, the Seller will reject all offers and not enter into another agreement with any other buyer. The reservation period is agreed upon at the time of sale but is usually between 60 and 120 days.

The Reservation Fee is non-refundable except where the Seller withdraws from the sale. A copy of the Reservation Agreement is available on request, and Dales & Peaks advises potential buyers to seek legal advice before entering into the Reservation Agreement.

If you have any questions about the process or want to know how selling or buying with Dales & Peaks ForwardMove could benefit you, please speak to a member of the Dales & Peaks team.

Property Ref: 34482123

Share:

Similar Properties

Newbridge Road, Ambergate, Belper, DE56

2 Bedroom Semi-Detached House | Guide Price £250,000

£250,000 - £260,000 (Guide price) Set within the sought-after village of Ambergate, this beautifully positioned and indi...

Hady Crescent, Chesterfield, S41 0EA

3 Bedroom Semi-Detached House | Guide Price £250,000

£250,000 - £260,000 (Guide price) Located on this quiet and sought after street whilst enjoying a position backing onto...

Northwood Avenue, Darley Dale, DE4 2GD

3 Bedroom Terraced House | Guide Price £250,000

Located within close proximity of local amenities, this 3 bedroom mid terrace property has been refurbished to a high st...

Malthouse Lane, Ashover, Chesterfield, S45 0AL

2 Bedroom Semi-Detached House | Guide Price £260,000

£260,000 - £270,000 (Guide price). Situated right in the heart of the incredibly sought after village of Ashover, within...

Arkwright Street, Wirksworth, DE4 4EE

3 Bedroom Semi-Detached House | £260,000

A well maintained 3 bedroom semi-detached property, located in the convenient market town of Wirksworth, close to indepe...

Paddock Close, Wingerworth, Chesterfield

3 Bedroom Semi-Detached House | £260,000

Situated centrally in the pretty village of Wingerworth, neighbouring stunning Derbyshire countryside, within walking di...

Dales and Peaks (Chesterfield)

Brampton, Chesterfield, S40 2AP

01246 567540

How much is your home worth?

Use our short form to request a valuation of your property.

Request a Valuation

Mortgage Calculator

Amount Borrowed: £
Total Amount Repayable: £
Total Monthly Payment: £
©2026 The Guild of Property Professionals. All rights reserved. Terms and Conditions | Privacy Policy | Cookie Policy | Complaints Policy | Members Login
The Guild of Property Professionals Trading Address: 121 Park Lane, London W1K 7AG. GPEA Limited. Registered in England & Wales.  Company No: 02819824.  Registered Office Address: 2 St. Stephen's Court, St. Stephen's Road, Bournemouth, Dorset, England, BH2 6LA.  VAT Registration No: 576 8795 61
Book a Property Valuation Update Cookies Preferences