Garfield Place, Maudlin Road, Totnes

Guide Price
£700,000
SSTC
This property listing is now SSTC

3 Bedroom Terraced House for sale in Maudlin Road

3 3 2
  • Sought after location
  • Totnes town centre
  • Spacious family home
  • Well-presented throughout
  • Good-size rear garden
  • Views over Totnes

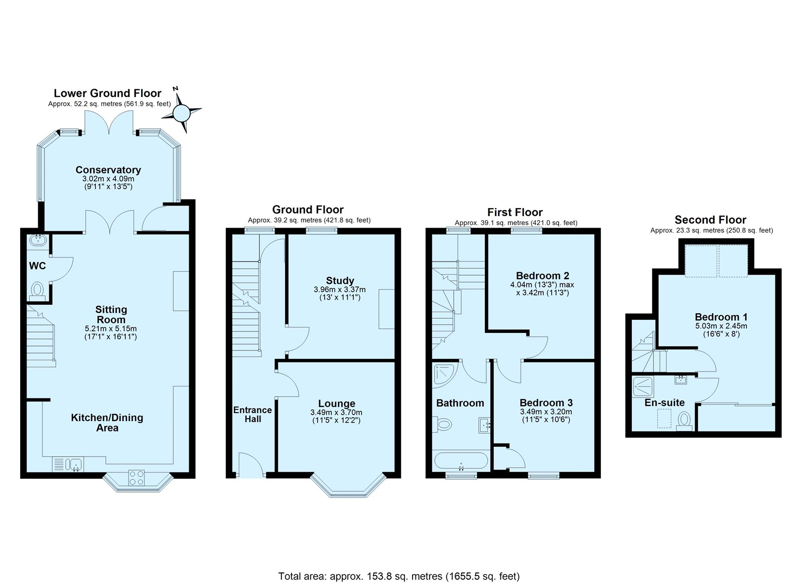
Situated in an enviable location with panoramic views over Totnes and within walking distance of the town centre is this charming period townhouse, offering flexible accommodation over four floors, flooded with natural light with great entertaining space and a good size garden and sun deck.

On the ground floor to the front of the house is a lovely bay fronted reception room and a separate rear reception room currently used as a study with great views and lovely period features. On the garden level is an impressive open plan kitchen / family room with a guest WC, which leads through to a large conservatory and out onto a decked area with stunning panoramic views over the garden and Totnes beyond. On the first floor are two double bedrooms and a family bathroom and the loft has been converted to make a great principle suit with an en suite shower room and a fold out balcony.

Outside the rear garden is mainly laid to lawn with flower and shrub boarders with rear access.

Services: Mains electric, water and drainage. Gas central heating.

Totnes town is the commercial centre for the South Hams. This part of Devon is renowned for its outstanding natural beauty with Dartmoor National Park ten miles to the north and stunning beaches and coastline ten miles to the south. The bustling medieval market town has a mainline railway station giving direct connections to London Paddington with easy connection to St Pancras for Eurostar. There is also excellent access to the A38 Devon Expressway, linking Plymouth and Exeter where it joins the M5. Schooling in the area is excellent with a number of well-regarded primary and secondary schools. Totnes also boasts a thriving market as well as a good selection of shops, supermarkets, restaurants and inns.

Important Information

  • This is a Freehold property.

Property Ref: 1357_DST733669

Share:

Similar Properties

Tuckenhay, Totnes

2 Bedroom Townhouse | Guide Price £700,000

Situated in the village of Tuckenhay on the banks of Bow Creek, 4 The Quay offers a bright and practical home with the b...

Rowsells Lane, Totnes

3 Bedroom Detached House | Guide Price £700,000

Rare opportunity to acquire a detached unique house on the banks of the River Dart with wonderful views gardens, off str...

Sawfield Drive, Dartington

3 Bedroom Detached House | Guide Price £700,000

An immaculately presented three bedroom home situated in the Sawmills estate in the convenient and popular village of Da...

Lutton, Ivybridge

4 Bedroom Detached House | Guide Price £710,000

Unexpectedly re-available. A beautifully restored former reading room, now an elegant family home in a picturesque moorl...

Burgh Island Causeway, Bigbury-on-Sea

2 Bedroom Apartment | Guide Price £710,000

** No Chain ** A beautifully presented top floor apartment, with open views over the beach and towards the iconic Burgh...

Stanton Court, Loddiswell, Kingsbridge, TQ7

5 Bedroom Barn Conversion | Guide Price £725,000

This charming, beautifully presented semi-detached barn conversion offers stylish and spacious accommodation arranged ov...

Marchand Petit (Kingsbridge)

94 Fore Street, Kingsbridge, Devon, TQ7 1PP

01548 857 588

How much is your home worth?

Use our short form to request a valuation of your property.

Request a Valuation

Mortgage Calculator

Amount Borrowed: £
Total Amount Repayable: £
Total Monthly Payment: £
©2025 The Guild of Property Professionals. All rights reserved. Terms and Conditions | Privacy Policy | Cookie Policy | Complaints Policy | Members Login
The Guild of Property Professionals Trading Address: 121 Park Lane, London W1K 7AG. GPEA Limited. Registered in England & Wales.  Company No: 02819824.  Registered Office Address: 2 St. Stephen's Court, St. Stephen's Road, Bournemouth, Dorset, England, BH2 6LA.  VAT Registration No: 576 8795 61
Book a Property Valuation Update Cookies Preferences