2 Bedroom Link Detached House for sale in Meare

2 2 1
  • Charming cottage with a stable door entrance, open-plan kitchen, and sitting room with a traditional flagstone floor.
  • Sitting area features a wood-burning stove, side window, and stairs to the first floor, with a door leading to the dining room/lounge.
  • Kitchen includes handmade oak units, work surfaces, space for an electric range cooker, washing machine, and fridge/freezer.
  • Two double bedrooms with built-in cupboards, the rear bedroom boasting stunning views over fields and Meare Heath wildlife reserve.
  • Secluded courtyard garden with raised shrub beds, an all-weather lawn, and a covered area ideal for an outdoor kitchen or BBQ.
  • Stone barn with original beams and doors, offering potential for conversion, an annexe, or a garage/workshop, plus a roof terrace with scenic views.

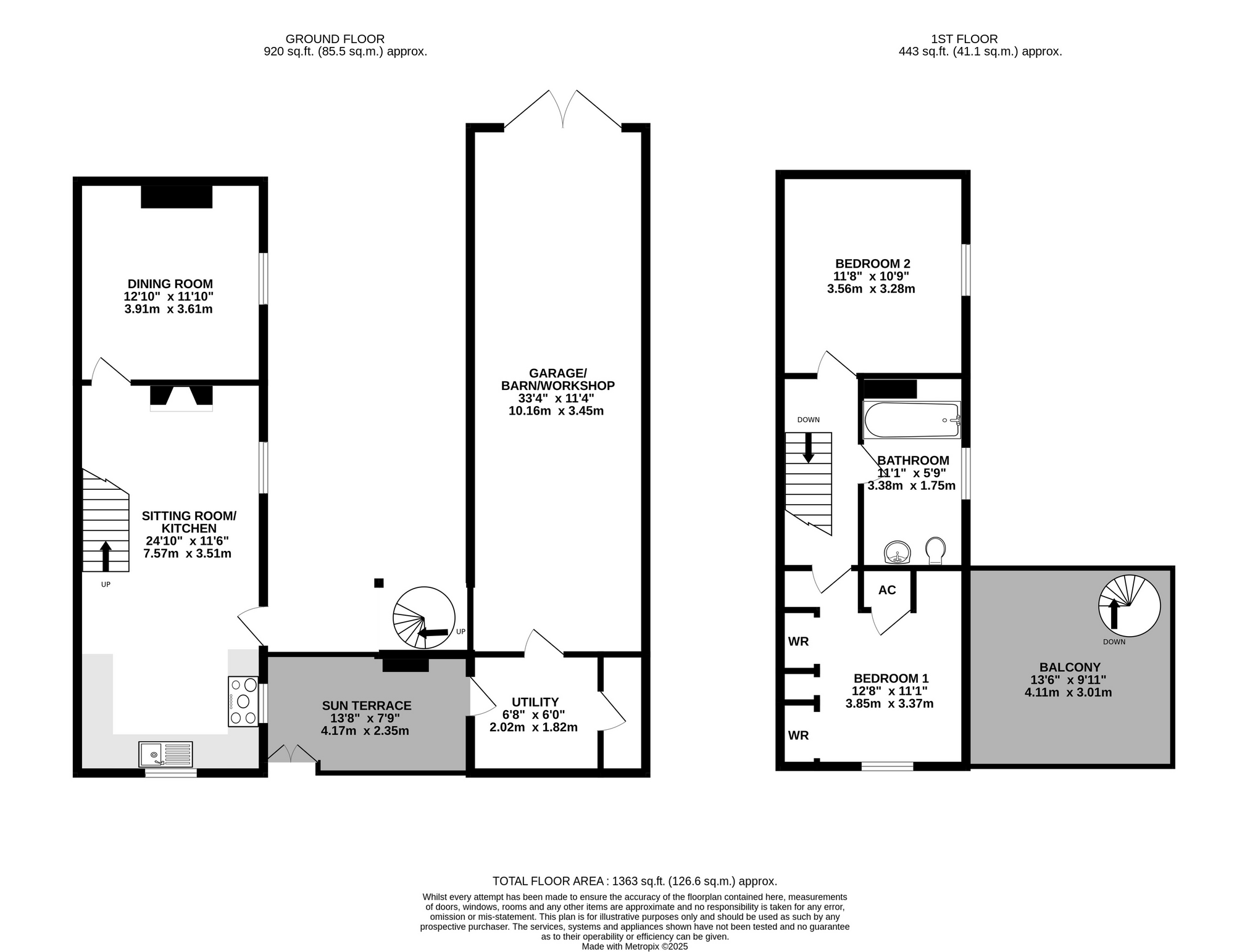
Charming period attached cottage, situated in the popular village of Meare, and featuring a large traditional stone barn with plenty of potential for alternative uses (subject to planning). The cottage also enjoys stunning south/westerly views to the rear from the roof terrace, across adjoining fields and to the wildlife reserve beyond. The accommodation includes two double bedrooms and a family bathroom on the first floor, with two reception rooms and kitchen on the ground floor. Outside, there is off road parking and private, enclosed courtyard garden.

Accommodation
Accessed via a side entrance with a charming stable door, this characterful cottage features an open-plan kitchen and sitting room, seamlessly connected by a traditional flagstone floor. The sitting area boasts a feature fireplace with a wood-burning stove, a window to the side, and stairs leading to the first floor. A door opens into the dining room/lounge, which also benefits from a flagstone floor and a second fireplace. The kitchen is fitted with a range of handmade oak units with work surfaces over, offering space for an electric range cooker, washing machine, and upright fridge/freezer. A picture window at the kitchen end provides lovely views across the adjoining rural landscape.

Upstairs, the landing features a part-exposed stone wall and traditional ledge and brace doors leading to two double bedrooms and the family bathroom. Positioned at opposite ends of the cottage, both bedrooms include built-in cupboards, with the rear-facing second bedroom enjoying far reaching views over the adjoining fields and down to the Meare Heath wildlife reserve. The family bathroom is fitted with a white suite, including a panelled bath with a shower over, a wash hand basin, and a WC, completing the accommodation.

Outside
Accessed via off-road parking and a wooden gate, the property opens into a secluded courtyard garden with raised shrub beds, an all-weather lawn, and a covered area beneath the roof terrace—perfect for an outdoor kitchen or barbecue. A door to one side leads to open fields, while another opens into a covered passageway with access to the rear of a stone barn. Retaining original wooden beams and an exposed stone wall, the barn offers excellent potential for conversion into additional living space, an annexe, or a holiday let (subject to planning consents), but also retains the original wooden doors to the front, and could be utilised as a garage/workshop. The spacious roof terrace provides an ideal spot for al fresco dining, offering stunning views over the fields and down to the wildlife reserve beyond.

Location
Meare is a rural village set on the picturesque Somerset Levels to the West of Glastonbury. The village provides primary school, Parish Church, rural store with lots of provisions and a garage. The popular towns of Glastonbury and Street together provide an attractive range of facilities. Glastonbury is best known for it's Tor and Abbey Ruins. Street is famous as the home of Clarks Shoes and Clarks factory shopping centre. Meare is also convenient for private education with Millfield school, both Senior and Prep, being within 3-5 miles, also the Cathedral school in Wells, being some 7 miles distance.

Directions
Upon entering the village of Meare, along the B3151 from Glastonbury, continue on through, passing the village school on your left. After approximately 0.5 miles, you will see the property on your left hand side, opposite the modern terrace of houses.

Material Information
All available property information can be provided upon request from Holland & Odam. For confirmation of mobile phone and broadband coverage, please visit checker.ofcom.org.uk

Identity Verification
To ensure full compliance with current legal requirements, all buyers are required to verify their identity and risk status in line with anti-money laundering (AML) regulations before we can formally proceed with the sale. This process includes a series of checks covering identity verification, politically exposed person (PEP) screening, and AML risk assessment for each individual named as a purchaser. In addition, for best practice, we are required to obtain proof of funds and where necessary, to carry out checks on the source of funds being used for the purchase. These checks are mandatory and must be completed regardless of whether the purchase is mortgage-funded, cash, or part of a related transaction. A disbursement of £49 per individual (or £75 per director for limited company purchases) is payable to cover all aspects of this compliance process. This fee represents the full cost of conducting the required checks and verifications. You will receive a secure payment link and full instructions directly from our compliance partner, Guild365, who carry out these checks on our behalf.

Important Information

  • This is a Freehold property.

Property Ref: 665667_FMV510439

Share:

Similar Properties

Compton Close, Glastonbury

3 Bedroom End of Terrace House | £275,000

A beautifully presented three-bedroom home located in a peaceful, residential development on the outskirts of Glastonbur...

Hartlake Close, Glastonbury

3 Bedroom Semi-Detached House | £275,000

This well-presented three bedroom home is situated on the western outskirts of the town and has the benefit of a single...

Monington Road, Glastonbury

3 Bedroom Terraced House | £270,000

A spacious mid terrace home situated in an elevated position within the town offering an open plan kitchen/dining room,...

Fairfield Gardens, Glastonbury

3 Bedroom Terraced House | £280,000

This charming mid-terrace townhouse, is ideally situated within a short level walk of the High Street. Available with no...

Apple Meadow, Baltonsborough

3 Bedroom Terraced House | £280,000

This lovely mid terrace family home, is situated on the popular Apple Meadow estate in the village of Baltonsborough. Be...

Sharpham Road, Glastonbury

3 Bedroom Semi-Detached House | Offers in region of £285,000

A superbly presented three bedroom town house situated within a quiet residential development on the fringes of Glastonb...

Holland & Odam (Glastonbury)

Glastonbury, Somerset, BA6 9DX

01458 833123

How much is your home worth?

Use our short form to request a valuation of your property.

Request a Valuation

Mortgage Calculator

Amount Borrowed: £
Total Amount Repayable: £
Total Monthly Payment: £
©2025 The Guild of Property Professionals. All rights reserved. Terms and Conditions | Privacy Policy | Cookie Policy | Complaints Policy | Members Login
The Guild of Property Professionals Trading Address: 121 Park Lane, London W1K 7AG. GPEA Limited. Registered in England & Wales.  Company No: 02819824.  Registered Office Address: 2 St. Stephen's Court, St. Stephen's Road, Bournemouth, Dorset, England, BH2 6LA.  VAT Registration No: 576 8795 61
Book a Property Valuation Update Cookies Preferences