Pant Yr Onnen, Pont Robert, Meifod, Powys, SY22

£295,000

3 Bedroom Detached Bungalow for sale in Meifod

3 2
  • Help to Buy Wales is available
  • Floor coverings are not included in the purchase price
  • A detached 3 bedroom bungalow with single garage
  • 10 year Build-Zone new build warranty
  • Optional extras are subject to the build stage
  • Village position with rural outlook
  • EPC anticipated to be B

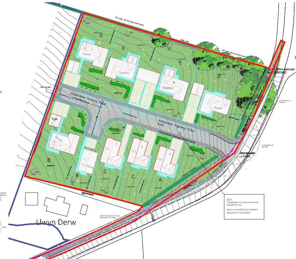
Pant Y Onnen is a new and exciting development of new bungalows in the picturesque village of Pontrobert.

Situated in an elevated position over the village, the site has countryside views and is convenient to the village primary school (Welsh medium), village hall and church. Pont Robert is situated just 16 miles from Oswestry and 11 miles from both Welshpool and Lake Vyrnwy.

The Oak is one of Primesaves most versatile properties, packing so much living space into a single floor.

The lounge is the centrepiece of the Oak, an open, spacious area which is perfect for sitting back, relaxing, and taking in the ambience of your rear garden, which you'll be able to see and have access to via the double patio doors. So, if the weather outside is just too nice to miss, you can open your doors and let in the gentle breeze. Open spaces are a key feature of the Oak, with the well-sized kitchen / dining room giving ample space for keen cooks. The kitchen will include an integrated oven/grill, 4 ring electric hob, extractor hood and fridge/freezer.

Bedroom 1 offers complete ease of access, including an ensuite shower room with a toilet, wash basin and shower. Bedroom 1 also comes with fitted wardrobes, with additional wardrobe space included in bedroom 2. A family bathroom completes the home.

The property is fully double glazed and has air source pump central heating, solar panels and an 7kw EV charging point.

Off-plan buyers will have the privilege of customising their home to their liking, being given the power to personalise their kitchens and worktops. Please note: All personal choices are subject to the build stage.

The property also comes with the benefit of a 10-year New Build Structural Warranty, 2 year Primesave Warranty.

A reservation fee of £1000 is payable.

Please note: the photographs are not of the plot being sold, but of an Oak bungalow on a different site.

'Please note that a charge of £36 per person will be applied to cover mandatory anti-money laundering checks'

The Oak benefits from off road parking, giving access to the adjoining garage which has an up and over door, power and lighting. There will be a turf front lawn and a rear garden with topsoil. The driveways will be finsihed in permeable block paving.

Important Information

  • This is a Freehold property.

Property Ref: 24365198_OSW250133

Share:

Similar Properties

Llanfyllin, Powys, SY22

3 Bedroom Semi-Detached House | £295,000

A semi detached property on the outskirts of Llanfyllin. The property offers 2 reception rooms, 3 bedrooms cellar and fa...

Perry View, Gobowen, Oswestry, Shropshire, SY10

2 Bedroom Detached Bungalow | Offers in region of £295,000

A well presented two bedroom bungalow in popular village position. Spacious accommodation with double glazing and gas ce...

Derwlwyn Lane, Llanfyllin, Powys, SY22

3 Bedroom Detached Bungalow | £295,000

Detached Split Level Bungalow with ample room to extend. The property has stunning 360 degree views over the surrounding...

Babbinswood, Whittington, Oswestry, Shropshire, SY11

3 Bedroom Detached House | £325,000

An immaculately presented detached property. Entrance hall, living & dining rooms, utility, shower room, kitchen, ground...

Porth-y-Waen, Oswestry, Shropshire, SY10

3 Bedroom Detached Bungalow | £325,000

A detached bungalow in an elevated position with rural views. Offered to the market with no forward chain, the property...

Barley Meadows, Llanymynech, Shropshire, SY22

4 Bedroom Detached House | £330,000

An immaculately presented family home with off road parking and spacious rear garden. The property is situated on a popu...

Morris Marshall & Poole (Oswestry)

16 Leg Street, Oswestry, Shropshire, SY11 2NN

01691 679595

How much is your home worth?

Use our short form to request a valuation of your property.

Request a Valuation

Mortgage Calculator

Amount Borrowed: £
Total Amount Repayable: £
Total Monthly Payment: £
©2025 The Guild of Property Professionals. All rights reserved. Terms and Conditions | Privacy Policy | Cookie Policy | Complaints Policy | Members Login
The Guild of Property Professionals Trading Address: 121 Park Lane, London W1K 7AG. GPEA Limited. Registered in England & Wales.  Company No: 02819824.  Registered Office Address: 2 St. Stephen's Court, St. Stephen's Road, Bournemouth, Dorset, England, BH2 6LA.  VAT Registration No: 576 8795 61
Book a Property Valuation Update Cookies Preferences