Race Terrace, Great Ayton

Offers Over
£250,000
SSTC
This property listing is now SSTC

2 Bedroom Terraced House for sale in Middlesbrough

1 2 1
  • Stone built cottage Grade II Listed No onward chain Close to the High Street and amenities Gas central heating Living room with period fireplace Family room open plan to a modern kitchen diner Cou...

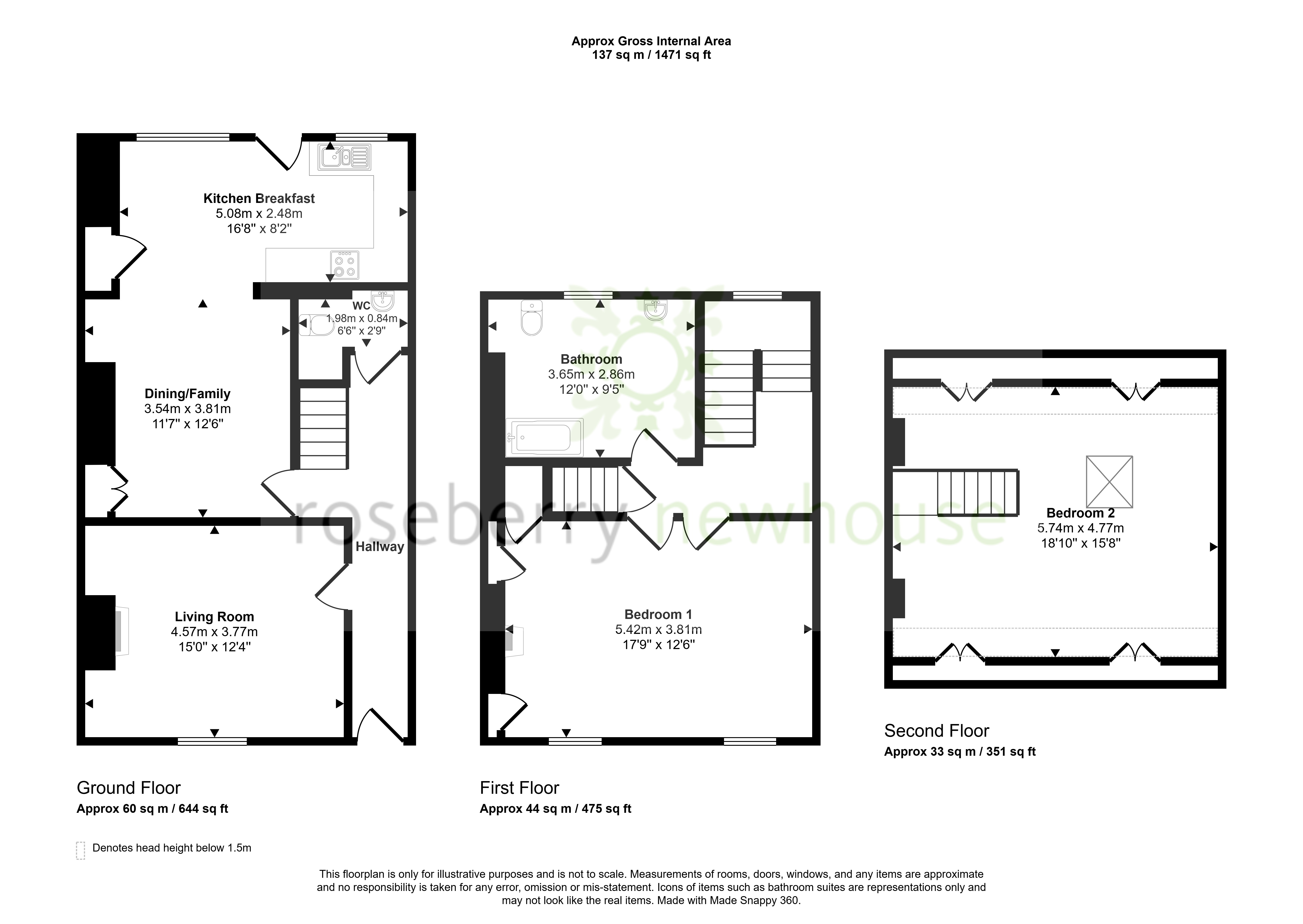
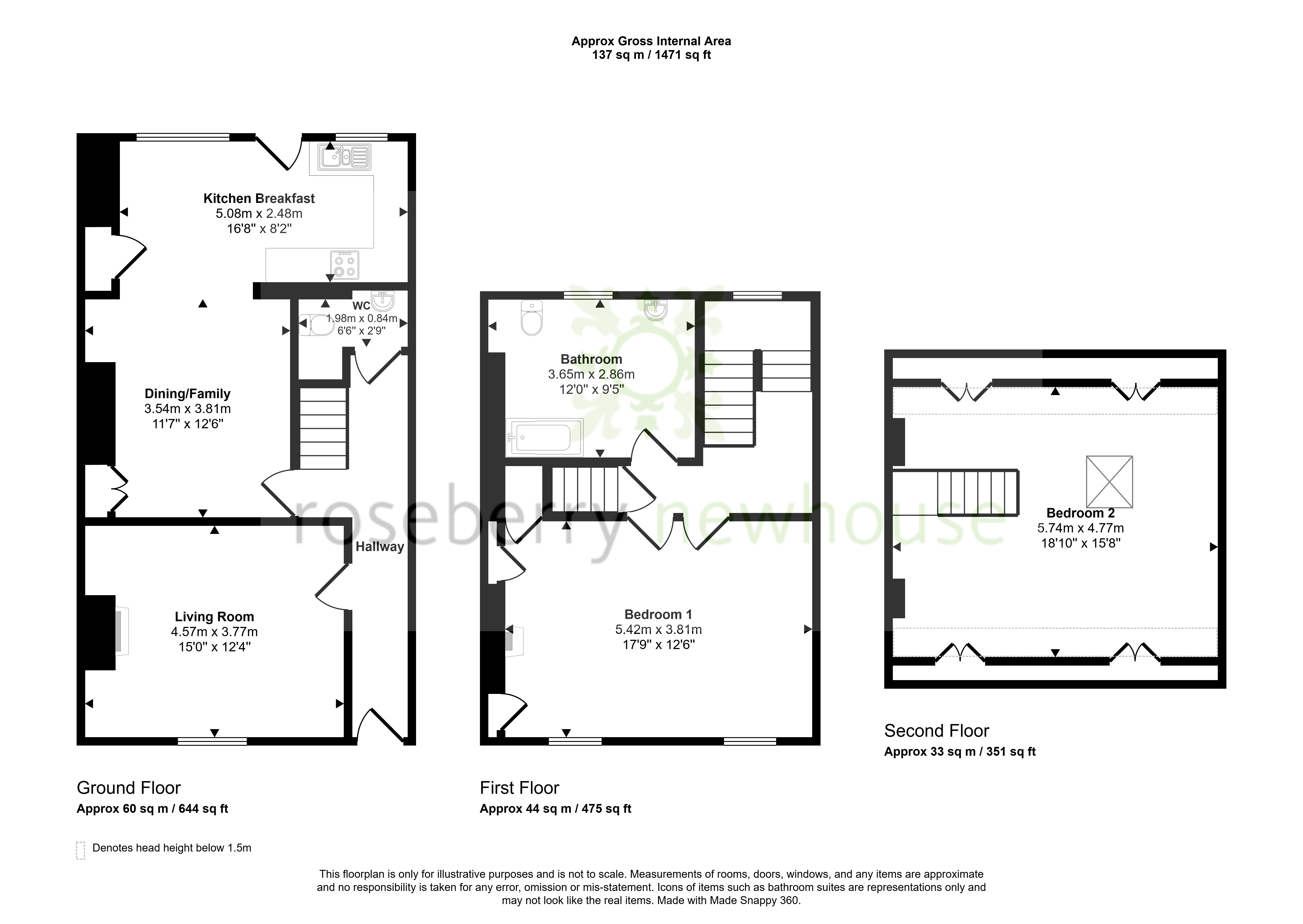
Tucked away in the heart of Great Ayton, just a short stroll from the High Street and its array of amenities, this charming Grade II listed stone-built cottage offers period character blended with modern living, and is offered to the market with no onward chain.

Stepping inside, the cottage opens into a welcoming living room where a period fireplace forms the focal point, offering warmth and atmosphere. A versatile family room features built-in cupboards within the chimney recess and opens into a light and airy dining kitchen, fitted with integrated appliances and arranged to create a sociable, open-plan space ideal for everyday living and entertaining alike.

Upstairs, the first floor accommodates a spacious principal bedroom with another beautiful period fireplace, formerly two separate rooms and now offering generous proportions and flexibility. A modern bathroom with contemporary fittings serves the floor, while stairs lead to a delightful attic room, complete with exposed beams and a Velux window drawing in natural light—an ideal study, studio or occasional bedroom.

To the rear of the property lies a traditional flagged courtyard garden, offering a private space to sit and enjoy the surroundings. A rare opportunity to acquire a characterful home in a central and sought-after village setting.

Important Information

  • This is a Freehold property.
  • This Council Tax band for this property is: C
  • EPC Rating is D

Property Ref: STO250330

Share:

Similar Properties

Whinstone View, Great Ayton

3 Bedroom Semi-Detached House | Offers Over £250,000

Tucked just moments from Great Ayton’s High Street, Whinstone View is an extended semi-detached home. The present owners...

Stewart Park Avenue, Middlesbrough

3 Bedroom Detached House | Guide Price £250,000

Opposite the tree-lined expanse of Stewart Park, this modern three-bedroom detached home by Avant Homes pairs contempora...

Hampstead Way, Middlesbrough

3 Bedroom Detached House | Guide Price £250,000

An impressive modern three-bedroom detached home that effortlessly blends contemporary design with warm, liveable spaces...

Fairfield Road, Stokesley

3 Bedroom Semi-Detached Bungalow | Guide Price £260,000

Ideally positioned within easy walking distance of Stokesley High Street, Fairfield Road is a versatile and recently ref...

Doctors Lane, Hutton Rudby

2 Bedroom Semi-Detached Bungalow | Guide Price £267,500

Just a short stroll from the village green and everyday amenities, this semi-detached bungalow delivers the ease of a ce...

Wheatlands, Great Ayton

3 Bedroom Semi-Detached House | Guide Price £270,000

Located within one of Great Ayton’s most sought-after residential areas and just a short distance from the vibrant High...

Roseberry Newhouse (Stokesley)

Stokesley, North Yorkshire, TS9 5DU

01642 711 111

How much is your home worth?

Use our short form to request a valuation of your property.

Request a Valuation

Mortgage Calculator

Amount Borrowed: £
Total Amount Repayable: £
Total Monthly Payment: £
©2026 The Guild of Property Professionals. All rights reserved. Terms and Conditions | Privacy Policy | Cookie Policy | Complaints Policy | Members Login
The Guild of Property Professionals Trading Address: 121 Park Lane, London W1K 7AG. GPEA Limited. Registered in England & Wales.  Company No: 02819824.  Registered Office Address: 2 St. Stephen's Court, St. Stephen's Road, Bournemouth, Dorset, England, BH2 6LA.  VAT Registration No: 576 8795 61
Book a Property Valuation Update Cookies Preferences