High Street Great Broughton

Guide Price
£675,000

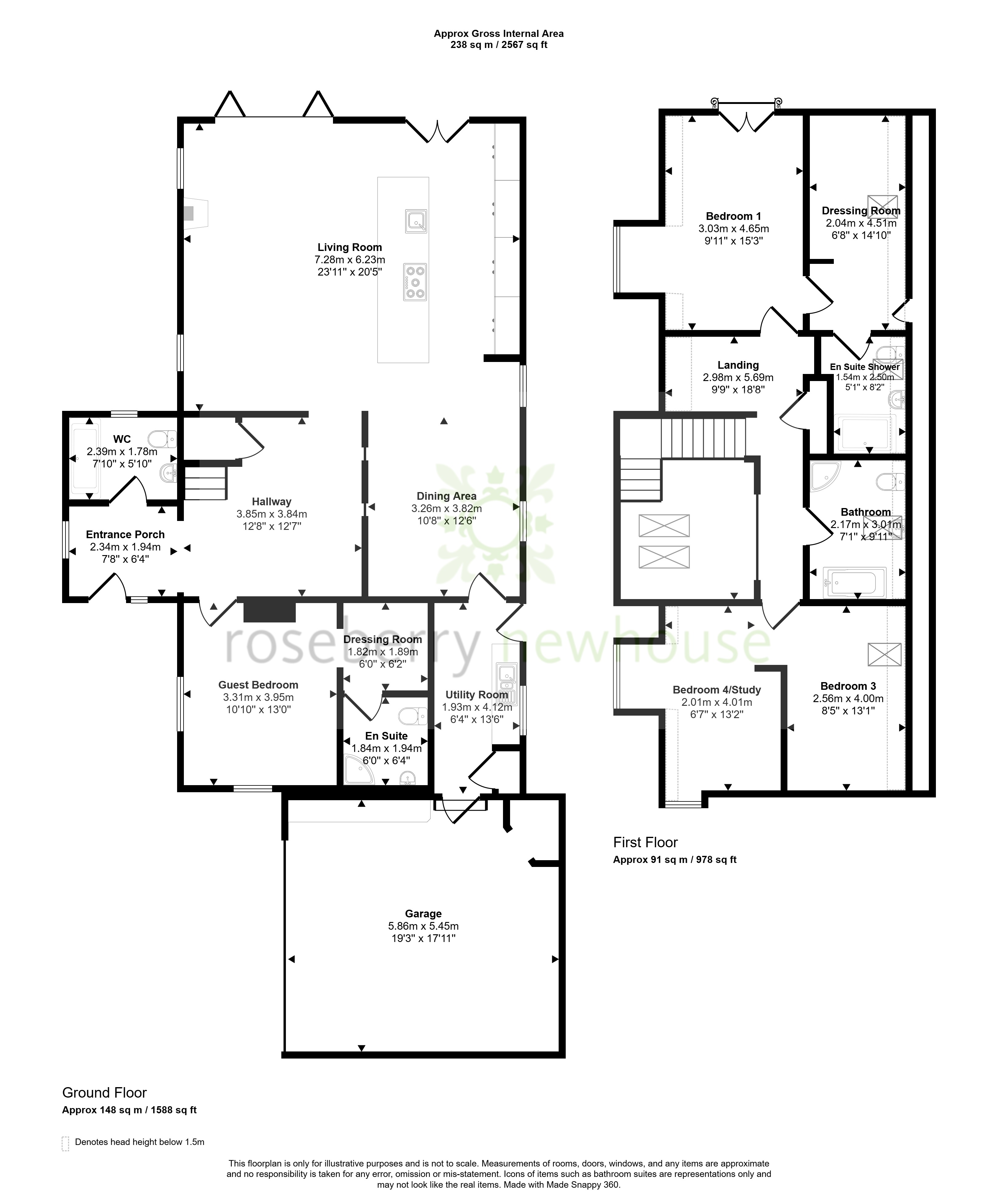
4 Bedroom Detached Bungalow for sale in Middlesbrough

2 4 3
  • Architect designed home
  • Contemporary design
  • Integral double garage
  • Air source heating
  • Fresh air recycling system
  • Three/four bedrooms
  • Vaulted hallway
  • Master bedroom with dressing room and en suite
  • Guest bedroom with dressing and en suite
  • West facing rear garden

Set against the scenic backdrop of the North York Moors, High Street, Great Broughton is a truly individual architect-designed residence, offering a seamless blend of contemporary design, luxurious open-plan living, and impressive eco-conscious features.

Important Information

  • This is a Freehold property.
  • This Council Tax band for this property is: E
  • EPC Rating is C

Property Ref: STO_STO250158

Share:

Similar Properties

Cross Lane Ingleby Arncliffe

4 Bedroom Detached House | Guide Price £675,000

Pentland sits at the foot of the North York Moors in the village of Ingleby Cross, perfectly placed for countryside walk...

Newby Newby

3 Bedroom Detached House | Guide Price £665,000

Villa Farm is set in 1.23 acres of grounds with gated access. There is a large garden with paddock, brick built stable b...

Campion Lane Hutton Rudby

3 Bedroom Barn Conversion | Guide Price £650,000

Situated on the edge of Hutton Rudby this three bedroom barn conversion offers a fine blend of character and modern day...

Development/Investment Opportunity

2 Bedroom House | Offers Over £700,000

This is an investment/developmemt opportunity to acquire five apartments in the centre of the seaside town of Saltburn b...

Manor Close Stokesley

4 Bedroom Detached House | Guide Price £795,000

Manor Farm sits quietly off Manor Close, a fine detached residence wrapped in mature gardens beside the River Leven—mome...

Stokesley Road Hutton Rudby

5 Bedroom Detached House | Guide Price £825,000

Tree View House is an individually designed detached family residence on Stokesley Road, set at the village edge with un...

Roseberry Newhouse (Stokesley)

Stokesley, North Yorkshire, TS9 5DU

01642 711 111

How much is your home worth?

Use our short form to request a valuation of your property.

Request a Valuation

Mortgage Calculator

Amount Borrowed: £
Total Amount Repayable: £
Total Monthly Payment: £
©2025 The Guild of Property Professionals. All rights reserved. Terms and Conditions | Privacy Policy | Cookie Policy | Complaints Policy | Members Login
The Guild of Property Professionals Trading Address: 121 Park Lane, London W1K 7AG. GPEA Limited. Registered in England & Wales.  Company No: 02819824.  Registered Office Address: 2 St. Stephen's Court, St. Stephen's Road, Bournemouth, Dorset, England, BH2 6LA.  VAT Registration No: 576 8795 61
Book a Property Valuation Update Cookies Preferences