Exmouth Road, Ruislip

Asking Price
£725,000

3 Bedroom End of Terrace House for sale in Middlesex

1 3 2
  • Three/four bedroom end of terrace
  • Potential to extend (stpp)
  • Driveway
  • Outbuilding with ensuite shower room
  • Open plan kitchen/diner
  • Master bedroom with walk in wardrobe & ensuite
  • Utility room & guest cloakroom
  • Catchment area for highly regarded schools
  • Walking distance to shops & transport links

About the property:

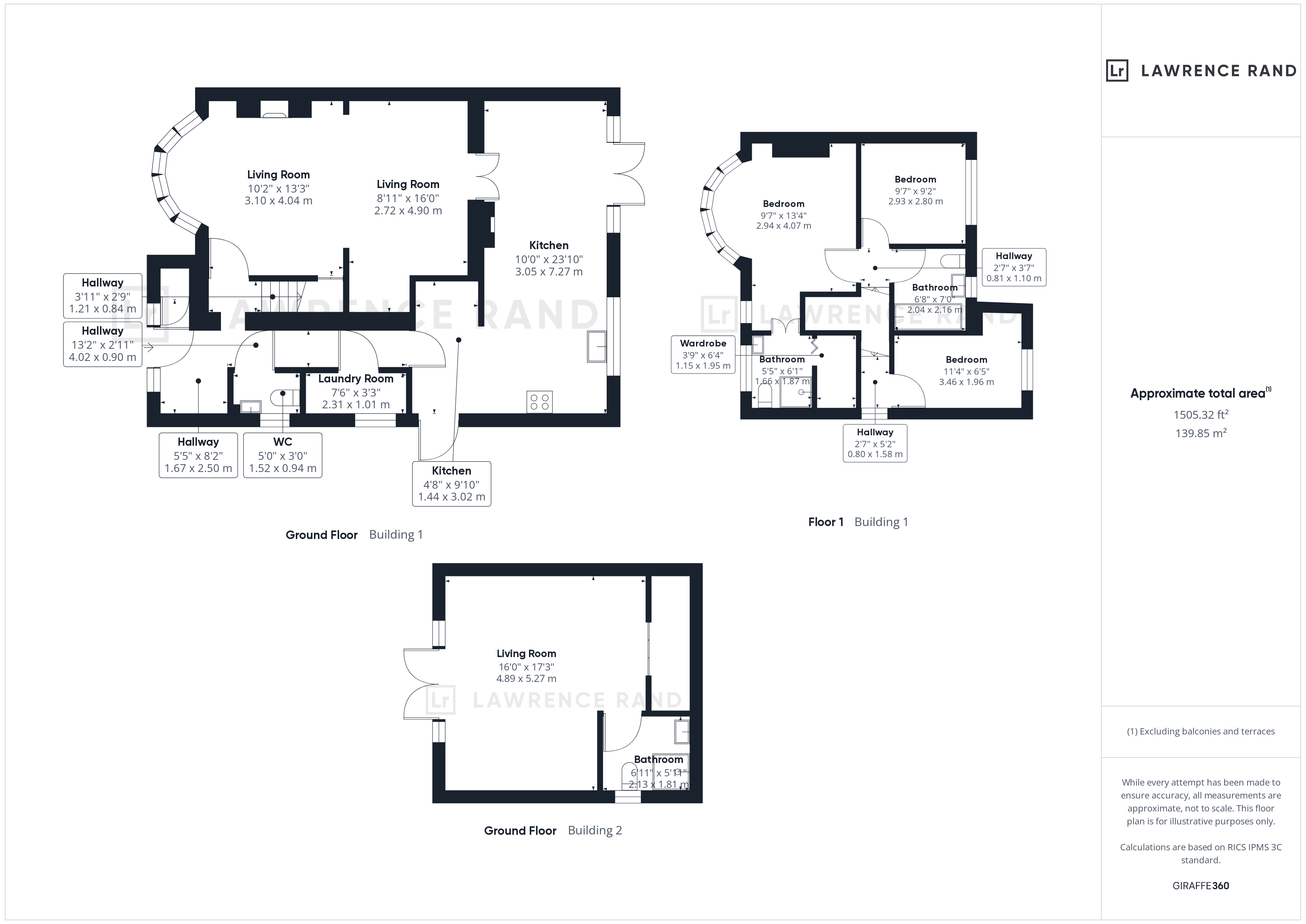
This immaculate three/four bedroom end of terrace family home is tastefully designed and decorated throughout to create stylish, outstanding living accommodation set over two floors. This is a must-see property.

Once inside the welcoming hallway stairs lead to the first floor and doors to the ground floor rooms. The main focus of this lovely property is the modern open plan kitchen/diner with an abundance of space for cooking, dining, relaxing and enjoying views of the rear garden. The kitchen has a range of wall and base units, a built-in oven, a breakfast bar and integral appliances. The dining area flows effortlessly with French doors opening out to a well-maintained garden. The ground floor benefits from a guest cloakroom and a utility room. The lounge is decorated in soft neutral tones with a large front aspect bay window and a feature fire place with surround. The room also has a space for a study area ideal for those working from home.

To the first floor are three comfortable bedrooms, the Master bedroom benefits from a walk-in wardrobe and an ensuite shower room. Completing the first floor is a fresh fully tiled family bathroom comprising of a white three-piece suite. Outside the well-kept rear garden designed with low maintenance in mind is part porcelain paved and neatly bordered with shrubs, leading to a grassed area.

To the rear of the garden is a purpose brick-built outbuilding with ensuite shower room, central heating and glass doors overlooking the garden. This is an ideal space for guests or a home gym. The neat frontage is paved providing off street parking for two cars.

Location:

Exmouth Road is a tranquil tree lined residential road enjoying its setting close to the great amenities of South Ruislip and Eastcote including The Old Dairy Complex. With local transport links available (Central/main lines, Metropolitan/Piccadilly) For the motorist the A40/M25 is a short drive away providing access to Central London and the Home Counties. For families, there are a number of highly regarded schools including St Swithun Wells and Queensmead.

Verified Material Information:

Council tax band: D, London Borough of Hillingdon

Council tax annual charge: £1863.91pa

Tenure: Freehold

Property construction: Standard construction

Energy Performance rating: C

Parking: Driveway

Alterations to the property (loft or garage conversion, removal of internal walls/chimneys: Yes -Garage conversion

Installation of replacement windows, roof windows, rooflights or glazed doors since 1 April 2002: No

Suppliers:

Electricity supply: Mains electricity

Solar Panels: No

Other electricity sources: No

Water supply: Sewerage: Mains

Heating:

Heating features: Hive

Broadband & mobile coverage:

Broadband: FTTP (Fibre to the Premises)

Mobile coverage: O2 - Excellent, Vodafone - Excellent, Three - Excellent, EE - Excellent

Additional information:

Building safety issues: No

Restrictions - Listed Building: No

Restrictions - Conservation Area: No

Restrictions - Tree Preservation Orders: None

Public right of way: No

Long-term flood risk: No

Coastal erosion risk: No

Planning permission issues: No

Accessibility and adaptations: None

Coal mining area: No

Non-coal mining area: Yes

All information is provided without warranty. Contains HM Land Registry data © Crown copyright and database right 2021. This data is licensed under the Open Government Licence v3.0.

The information contained is intended to help you decide whether the property is suitable for you. You should verify any answers which are important to you with your property lawyer or surveyor or ask for quotes from the appropriate trade experts: builder, plumber, electrician, damp, and timber expert.

Important Information

  • This is a Freehold property.
  • EPC Rating is C

Property Ref: RUI240513

Share:

Similar Properties

Crosier Way, Ruislip, HA4

4 Bedroom Semi-Detached Bungalow | Guide Price £725,000

A four bedroom, two bathroom semi-detached bungalow situated on this quiet residential road. The property offers bright...

Angus Drive, Ruislip, HA4

3 Bedroom Detached House | £725,000

Bessingby Road, Ruislip

4 Bedroom End of Terrace House | Asking Price £700,000

About the property:A substantial extended four-bedroom end of terrace family home offering well-proportioned living spac...

Jubilee Drive, Ruislip

5 Bedroom End of Terrace House | Asking Price £750,000

This stunning five-bedroom home is perfect for families seeking spacious living in a well-connected area. The property b...

Elm Avenue, Ruislip

3 Bedroom Detached Bungalow | Asking Price £750,000

We are pleased to offer this three/four bedroom detached bungalow offering a substantial amount of living space for the...

Keswick Gardens, Ruislip, HA4

3 Bedroom Not Specified | Offers in excess of £750,000

The property is 1.1 miles away from Ruislip High Street & Station (Metropolitan & Piccadilly Line) and 0.5 miles away fr...

Lawrence Rand (Ruislip Manor)

Ruislip Manor, Middlesex, HA4 9BH

01895 632211

How much is your home worth?

Use our short form to request a valuation of your property.

Request a Valuation

Mortgage Calculator

Amount Borrowed: £
Total Amount Repayable: £
Total Monthly Payment: £
©2026 The Guild of Property Professionals. All rights reserved. Terms and Conditions | Privacy Policy | Cookie Policy | Complaints Policy | Members Login
The Guild of Property Professionals Trading Address: 121 Park Lane, London W1K 7AG. GPEA Limited. Registered in England & Wales.  Company No: 02819824.  Registered Office Address: 2 St. Stephen's Court, St. Stephen's Road, Bournemouth, Dorset, England, BH2 6LA.  VAT Registration No: 576 8795 61
Book a Property Valuation Update Cookies Preferences