Cussies Row, Petersfield Road, Midhurst, West Sussex, GU29

£350,000

4 Bedroom Terraced House for sale in Midhurst

4

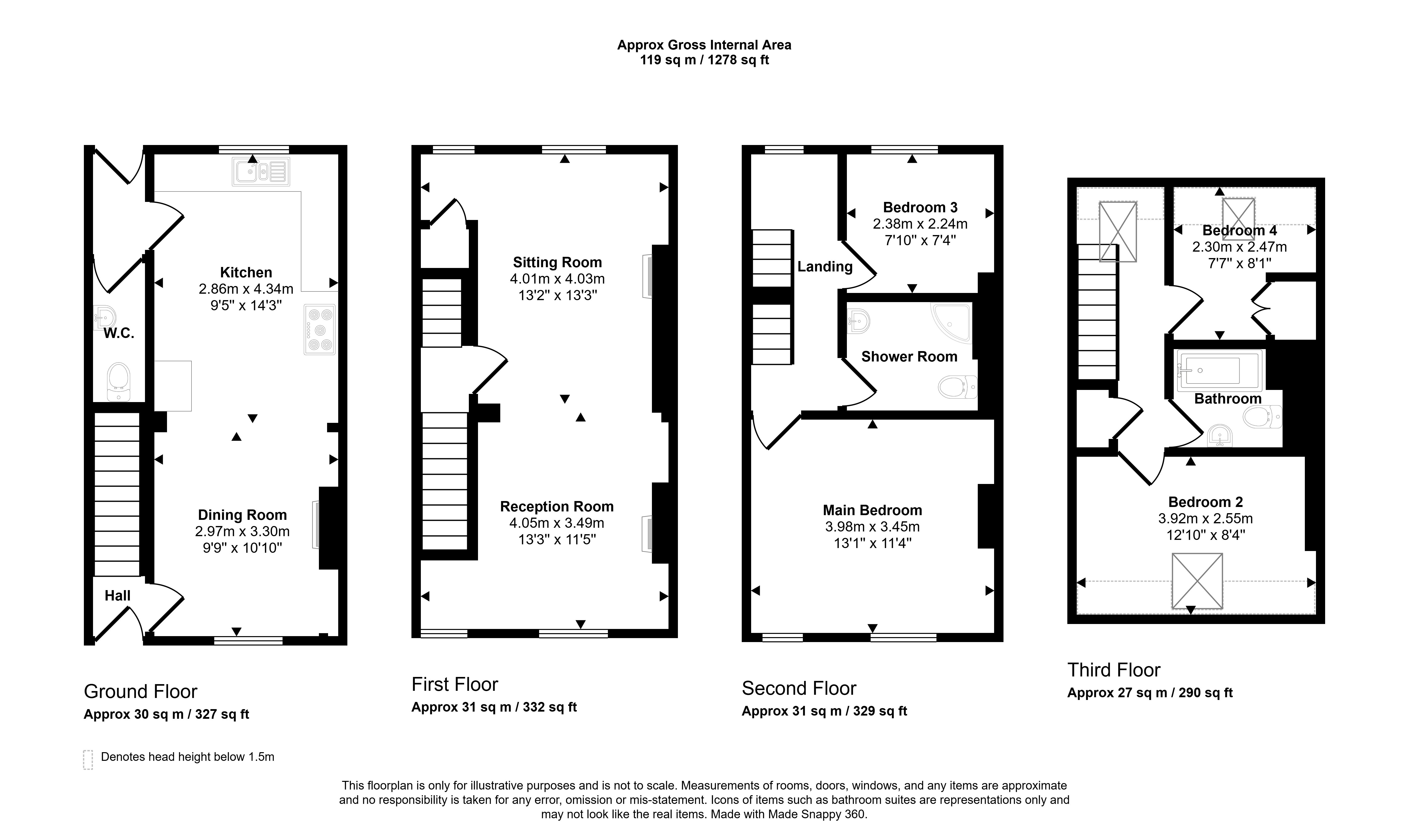
The ground floor features an open-concept kitchen/dining area and is perfect for everyday living.

There is a modern kitchen with appliances and    ample counter space, also located on the ground floor is a cloakroom.

To the first floor there is a large living area which is   ideal for entertaining.

On the second floor, this houses two of the four   bedrooms, including a master suite, which is of good size and serviced by a shower room.
Upon reaching the top floor, this offers two further bedrooms, one of which is slightly larger and could be used as the second master suite or a guest room. There is also a further family bathroom on the top floor.

Important Information

  • This is a Leasehold property.

Property Ref: 102233_MHT240001

Share:

Similar Properties

Budgenor Lodge, Dodsley Lane, Midhurst, West Sussex, GU29

2 Bedroom Flat | Guide Price £350,000

Situated within the popular 18th century Grade II Listed Budgenor Lodge gated development, this fine duplex apartment of...

4 Hamilton Close, Stedham, Midhurst, GU29

3 Bedroom Terraced House | £350,000

360 TOUR AVAILABLEStylish three-bedroom home in the heart of Stedham, featuring open-plan living, a sleek kitchen & land...

Clevedon, Ashfield Road, Midhurst, West Sussex, GU29

2 Bedroom Flat | £350,000

360 TOUR AVAILABLEStunning two-bedroom open-plan penthouse apartment offering stylish and contemporary living and situat...

Poplar Way, Midhurst, West Sussex, GU29

3 Bedroom End of Terrace House | £365,000

360 TOUR AVAILABLEThis charming three-bedroom end of terrace home is situated in a delightful position within the highly...

Bourne Way, Midhurst, West Sussex, GU29

4 Bedroom Semi-Detached Bungalow | £375,000

***NO ONWARD CHAIN*** Situated in an extremely popular residential close, this semi-detached chalet bungalow offers spac...

King Edward VII Apartments, Kings Drive, Midhurst, West Sussex, GU29

2 Bedroom Flat | £375,000

360 TOUR AVAILABLEForming part of the stunning King Edward VII development, this bright and spacious two-bedroom first f...

Southdown Property Solutions (Midhurst)

Midhurst, West Street, GU29 9PB

01730 859156

How much is your home worth?

Use our short form to request a valuation of your property.

Request a Valuation

Mortgage Calculator

Amount Borrowed: £
Total Amount Repayable: £
Total Monthly Payment: £
©2025 The Guild of Property Professionals. All rights reserved. Terms and Conditions | Privacy Policy | Cookie Policy | Complaints Policy | Members Login
The Guild of Property Professionals Trading Address: 121 Park Lane, London W1K 7AG. GPEA Limited. Registered in England & Wales.  Company No: 02819824.  Registered Office Address: 2 St. Stephen's Court, St. Stephen's Road, Bournemouth, Dorset, England, BH2 6LA.  VAT Registration No: 576 8795 61
Book a Property Valuation Update Cookies Preferences