Beaconing Fields, Steynton, Milford Haven

£239,999
SSTC
This property listing is now SSTC

3 Bedroom Semi-Detached House for sale in Milford Haven

1 3 3
  • High Specification new build
  • NHBC guarantee
  • Desired residential area
  • Built by award winning developers

* High specification new build
* NHBC guarantee
* Desired residential area
* Built by award winning developers

Beaconing Fields Development - JJ Morris Haverfordwest are delighted to be offering for sale plot 48. A 3 bedroom semi detached house with private parking at the new development known as Beaconing Fields, located on the outskirts of the coastal town of Milford Haven in the sought after residential area of Steynton.

We are now taking reservations on the next phase of this development built by well established reputable award winning local developer L Greggain & Co. Ltd.

Offering a combination of homes on this site, all the different style of properties will benefit from modern features and will be finished to the highest of standards and specification throughout.

(The main illustration is for advertising purposes only)

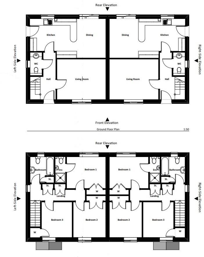
Room Measurements - Hallway - 12'2 x 7'7
W.C. - 6'2 x 3'2
Living Room - 14'2 x 12'11
Kitchen/Diner - 22'7 x 9'8
Bedroom 1 - 11'7 x 9'6
Ensuite - 7'9 x 3'1
Bedroom 2 - 10'7 x 9'8
Bedroom 3 - 9' x 7'4
Bathroom - 7'9 x 7'2

Property Ref: 856974_32190066

Share:

Similar Properties

Beaconing Fields Development, Steynton, Milford Haven

3 Bedroom Semi-Detached House | £239,999

* High specification new build* NHBC guarantee* Desired residential area* Built by award winning developers

Priory Avenue, Haverfordwest

3 Bedroom Semi-Detached House | Offers Over £235,000

*Beautifully presented three-bedroom, two-reception room semi-detached home*Fully modernised and updated throughout with...

Herbrandston, Milford Haven

3 Bedroom Cottage | Offers in region of £234,999

*Originally a lambing barn from the 1800s, tastefully converted into a beautifully presented and character-filled home.*...

Nantucket Avenue, Milford Haven

2 Bedroom Commercial Property | Offers in region of £255,000

*Long Established and Successful Fish & Chip Shop**Profitable, Reputable Business, located in the heart of a Residential...

Cedar Terrace, Steynton

3 Bedroom Not Specified | Offers in region of £267,500

*Prime Location: Situated in the highly sought-after, well-established Myrtle Meadows development.*Award-Winning Build:...

By Auction: Approx. 28 acres at Sarnau Fields, Bancyfelin, Llysonnen Road, Carmarthen, Carmarthenshire SA33 5DZ

Land | Guide Price £275,000

A valuable block of Agricultural Land extending to approx. 28 Acres which will be offered 'For Sale' by Public Auction-...

JJ Morris (Haverfordwest)

4 Picton Place, Haverfordwest, Pembrokeshire, SA61 2LX

01437 760440

How much is your home worth?

Use our short form to request a valuation of your property.

Request a Valuation

Mortgage Calculator

Amount Borrowed: £
Total Amount Repayable: £
Total Monthly Payment: £
©2025 The Guild of Property Professionals. All rights reserved. Terms and Conditions | Privacy Policy | Cookie Policy | Complaints Policy | Members Login
The Guild of Property Professionals Trading Address: 121 Park Lane, London W1K 7AG. GPEA Limited. Registered in England & Wales.  Company No: 02819824.  Registered Office Address: 2 St. Stephen's Court, St. Stephen's Road, Bournemouth, Dorset, England, BH2 6LA.  VAT Registration No: 576 8795 61
Book a Property Valuation Update Cookies Preferences