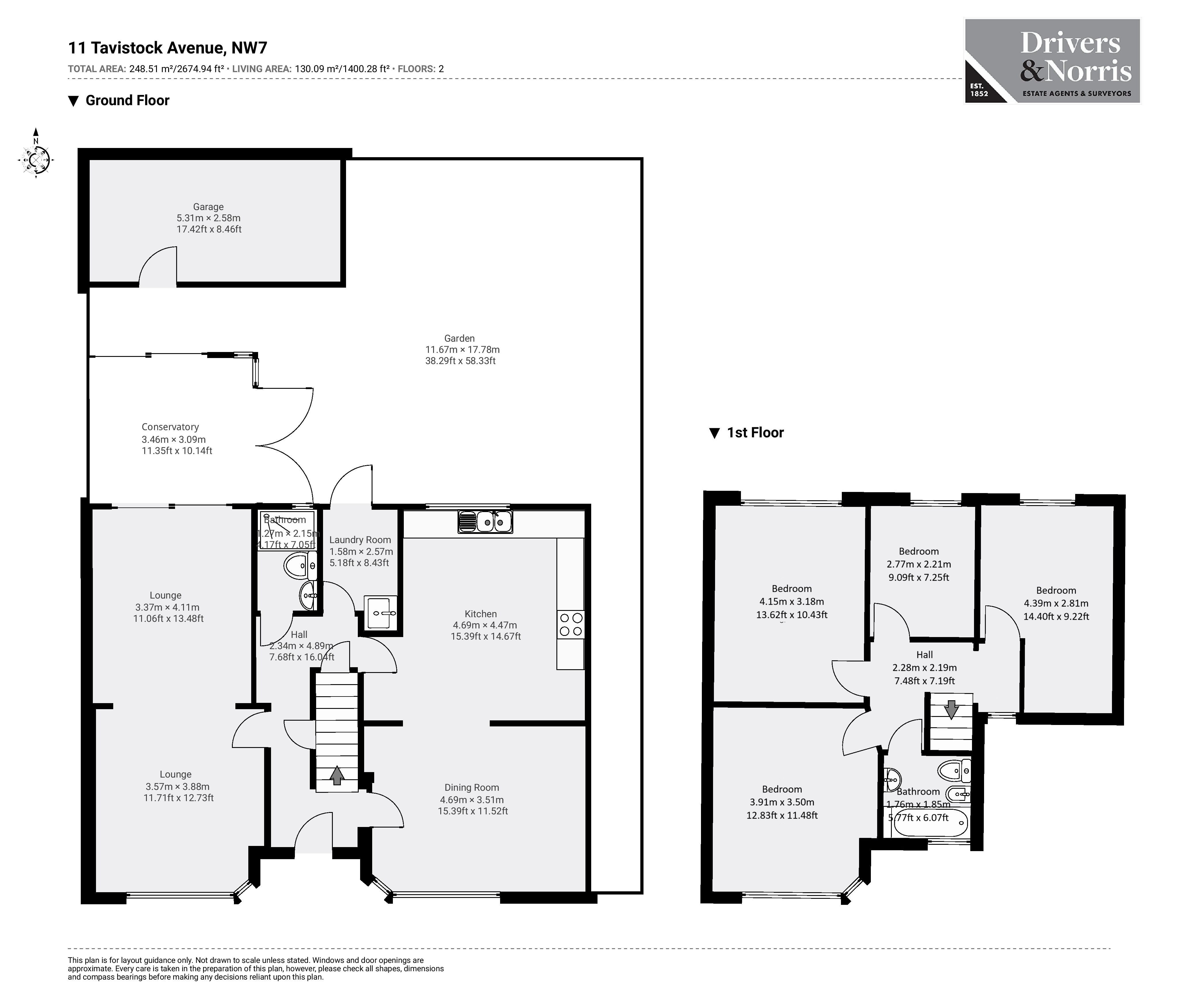
Tavistock Avenue Mill Hill

Asking Price
£850,000

4 Bedroom Semi-Detached House for sale in Mill Hill

2 4 2
  • Four bedrooms
  • Two bathrooms
  • Kitchen/breakfast room
  • Lounge/dining room
  • Family room
  • Parking for several cars
  • Garage own Drive
  • Utility Room

Discover this beautifully presented and extended four-bedroom semi-detached property, ideally situated on the sought-after Tavistock Avenue in Mill Hill, NW7. This substantial family home has been thoughtfully maintained and upgraded to offer a comfortable and practical living space.



The property features a well-executed side extension, comprising a part single-storey and part two-storey addition, which has significantly enhanced the internal accommodation. The ground floor provides two generously sized reception rooms, perfect for flexible living, entertaining, and family gatherings. A dedicated utility room adds to the practicality of the home.



In good decorative order throughout, the house is ready for immediate occupation. Recent upgrades include a new roof,( 7 years ago) offering peace of mind for years to come.



Externally, the property benefits from a private garage and an own driveway, providing valuable off-street parking. The location is excellent, with easy access to local amenities, schools, and transport links.



This is an exceptional opportunity to acquire a spacious family home in a prime location. Early viewing is highly recommended.

Important Information

  • This is a Freehold property.
  • This Council Tax band for this property is: E
  • EPC Rating is D

Property Ref: FIN_DAN250288

Share:

Similar Properties

Mackenzie Road Islington

3 Bedroom Terraced House | Asking Price £850,000

Nestled between Paradise Park and Caledonian Park just North of Kings Cross/St Pancras, and within easy of reach of High...

Tavistock Avenue Mill Hill

4 Bedroom Semi-Detached House | Asking Price £850,000

Discover this beautifully presented and extended four-bedroom semi-detached property, ideally situated on the sought-aft...

Skylark Point Newnton Close

2 Bedroom Flat | Offers in excess of £820,000

LUXURY SPACIOUS TWO-BEDROOM, TWO-BATHROOM NEW BUILD APARTMENT An EXCEPTIONAL 7TH-FLOOR APARTMENT with SOUTH-FACING VIEW...

Seven Sisters Tottenham

4 Bedroom Shop | Guide Price £870,000

Location - The building is situated on the west side of Seven Sisters Road (A503) near its northern end in Tottenham. Po...

Parkhurst Road

3 Bedroom Mews House | Offers Over £950,000

Stylish development of just 7 newly built two and three bedroom mews houses, built to an extremely high specification wi...

Wood Lane Colindale

5 Bedroom Terraced House | Guide Price £1,000,000

IMPRESSIVE FIVE-BEDROOM FAMILY HOME IN SOUGHT-AFTER COLINDALE LOCATION This SPACIOUS AND VERSATILE HOME offers an excep...

Drivers & Norris (Holloway)

Holloway, London, N7 6HP

0207 607 5001

How much is your home worth?

Use our short form to request a valuation of your property.

Request a Valuation

Mortgage Calculator

Amount Borrowed: £
Total Amount Repayable: £
Total Monthly Payment: £
©2025 The Guild of Property Professionals. All rights reserved. Terms and Conditions | Privacy Policy | Cookie Policy | Complaints Policy | Members Login
The Guild of Property Professionals Trading Address: 121 Park Lane, London W1K 7AG. GPEA Limited. Registered in England & Wales.  Company No: 02819824.  Registered Office Address: 2 St. Stephen's Court, St. Stephen's Road, Bournemouth, Dorset, England, BH2 6LA.  VAT Registration No: 576 8795 61
Book a Property Valuation Update Cookies Preferences