Tuckers Brook, Modbury

Guide Price
£495,000
SSTC
This property listing is now SSTC

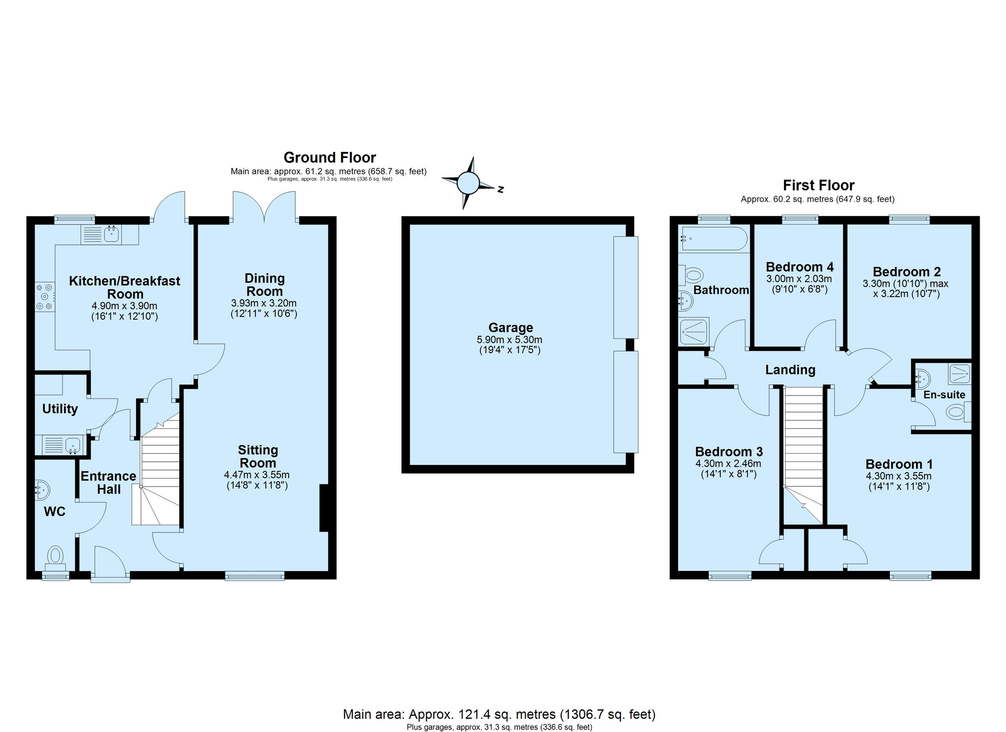
4 Bedroom Semi-Detached House for sale in Modbury

1 4 2
  • Quiet cul-de-sac location
  • Sitting/dining room
  • Kitchen/breakfast room/utility
  • 4 Bedrooms
  • Ensuite & family bathroom with separate shower
  • Level walk into town centre
  • Enclosed SW facing garden with lawn and patio
  • Detached double garage and parking

Tucked away in a small and highly sought-after cul-de-sac just moments from the town centre, this charming Georgian-style end-of-terrace home enjoys an enviable, level walk to the high street and local amenities. Offering generous and well-balanced accommodation throughout, the property makes an ideal family home in a wonderfully convenient yet peaceful setting.

The front door opens into a wide and welcoming hallway with a cloakroom and stairs rising to the first floor. The impressive sitting/dining room runs the full length of the house, creating a superb space for both everyday family living and entertaining, with French doors opening directly onto the garden and allowing natural light to flood the room. The kitchen/breakfast room is fitted with a comprehensive range of units with space for appliances. French doors open out to the enclosed rear garden. A well-equipped utility room completes the ground floor accommodation.

Upstairs, the first floor offers four bedrooms comprising three doubles and one single. The principal bedroom benefits from a stylish ensuite shower room, while the remaining bedrooms are served by a family bathroom.

Outside, the property enjoys an attractive level garden with side access to the front of the house and rear access leading to the garaging. The home also benefits from a detached double garage with a pitched roof, storage and power.

Modbury is a picturesque Georgian town situated in an 'Area of Outstanding Natural
Beauty', and is only about 4 miles from the nearest beach. The town centre offers a
wealth of amenities and range of local shops including a butcher, hardware store,
chemist, delicatessen and a number of gift and antique shops. Other amenities include a
primary school, health centre, dentist and 3 pubs. For more comprehensive shopping,
Kingsbridge is to the South and Plymouth is about 12 miles to the West. Modbury is on
the main bus route and is also only about five miles from the A38. Nearby there are fine
cliff top and coastal walks, other beaches and coves, with sailing at Salcombe and
Newton Ferrers, 18 hole golf courses at Thurlestone and Bigbury and Dartmoor National
Park is several miles to the North.

SERVICES
Mains gas, electricity, water & drainage. Gas fired central heating system.

TENURE
Freehold.

COUNCIL TAX
South Hams District Council. Band E.

VIEWINGS
Strictly by appointment only through Marchand Petit (Modbury Office) Tel: 01548 831163. Please contact the office to make an appointment.

Important Information

  • This is a Freehold property.
  • This Council Tax band for this property is: E

Property Ref: TXN746384

Share:

Similar Properties

Rock Hill, Aveton Gifford

3 Bedroom Semi-Detached House | Guide Price £485,000

A superb and beautifully presented, 3-bedroom character cottage located in the heart of Aveton Gifford, with a delightfu...

Brownston Street, Modbury

3 Bedroom Terraced House | Guide Price £465,000

A charming 3 bedroom, Grade II listed home, located in the heart of Modbury. Well presented throughout, with bright and...

Palm Cross, Modbury

3 Bedroom Semi-Detached House | Guide Price £449,950

A delightful 3/4-bedroom period property situated in the heart of Modbury, thoughtfully extended and with an abundance o...

Challaborough, Kingsbridge

4 Bedroom Detached Bungalow | Offers in excess of £500,000

Occupying an outstanding position, approx. 300 yards from the beach, this magnificent site offer the opportunity for the...

Brownston Street, Modbury

4 Bedroom Semi-Detached House | Guide Price £515,000

A striking Grade II Listed Georgian home situated in the heart of Modbury. This bright and spacious 4 bedroom family hom...

Church Street, Modbury

4 Bedroom Terraced House | Guide Price £530,000

An elegant Georgian family home with an impressive garden extending to 0.25 of an acre and situated in the heart of the...

Marchand Petit (Modbury)

4 Broad Street, Modbury, Devon, PL21 0PS

01548 831 163

How much is your home worth?

Use our short form to request a valuation of your property.

Request a Valuation

Mortgage Calculator

Amount Borrowed: £
Total Amount Repayable: £
Total Monthly Payment: £
©2026 The Guild of Property Professionals. All rights reserved. Terms and Conditions | Privacy Policy | Cookie Policy | Complaints Policy | Members Login
The Guild of Property Professionals Trading Address: 121 Park Lane, London W1K 7AG. GPEA Limited. Registered in England & Wales.  Company No: 02819824.  Registered Office Address: 2 St. Stephen's Court, St. Stephen's Road, Bournemouth, Dorset, England, BH2 6LA.  VAT Registration No: 576 8795 61
Book a Property Valuation Update Cookies Preferences