Torrington Close, Henhull, CW5

Offers in excess of
£450,000

4 Bedroom Detached House for sale in Nantwich

2 4 2
  • Spacious open-plan kitchen/diner with integrated appliances, sandstone countertops and ample space for dining and entertaining.
  • Large dual-aspect living room featuring a fireplace and plenty of natural light.
  • Four well-proportioned bedrooms, including a master with en-suite and built-in wardrobes.
  • Modern family bathroom and convenient downstairs WC, providing comfort and practicality.
  • Beautiful rear garden with patio, lawn, flower beds, garage access and driveway parking for two cars.

**In excess of £450,000**

This stunning four-bedroom detached home in Nantwich, built in 2024 by Redrow Homes, offers spacious and modern living throughout — perfect for families and those who love to entertain. Redrow is well regarded for its high-quality design and attention to detail, and this home is an excellent example of their craftsmanship, with many optional upgrades thoughtfully added by the vendors to further enhance the specification and finish.

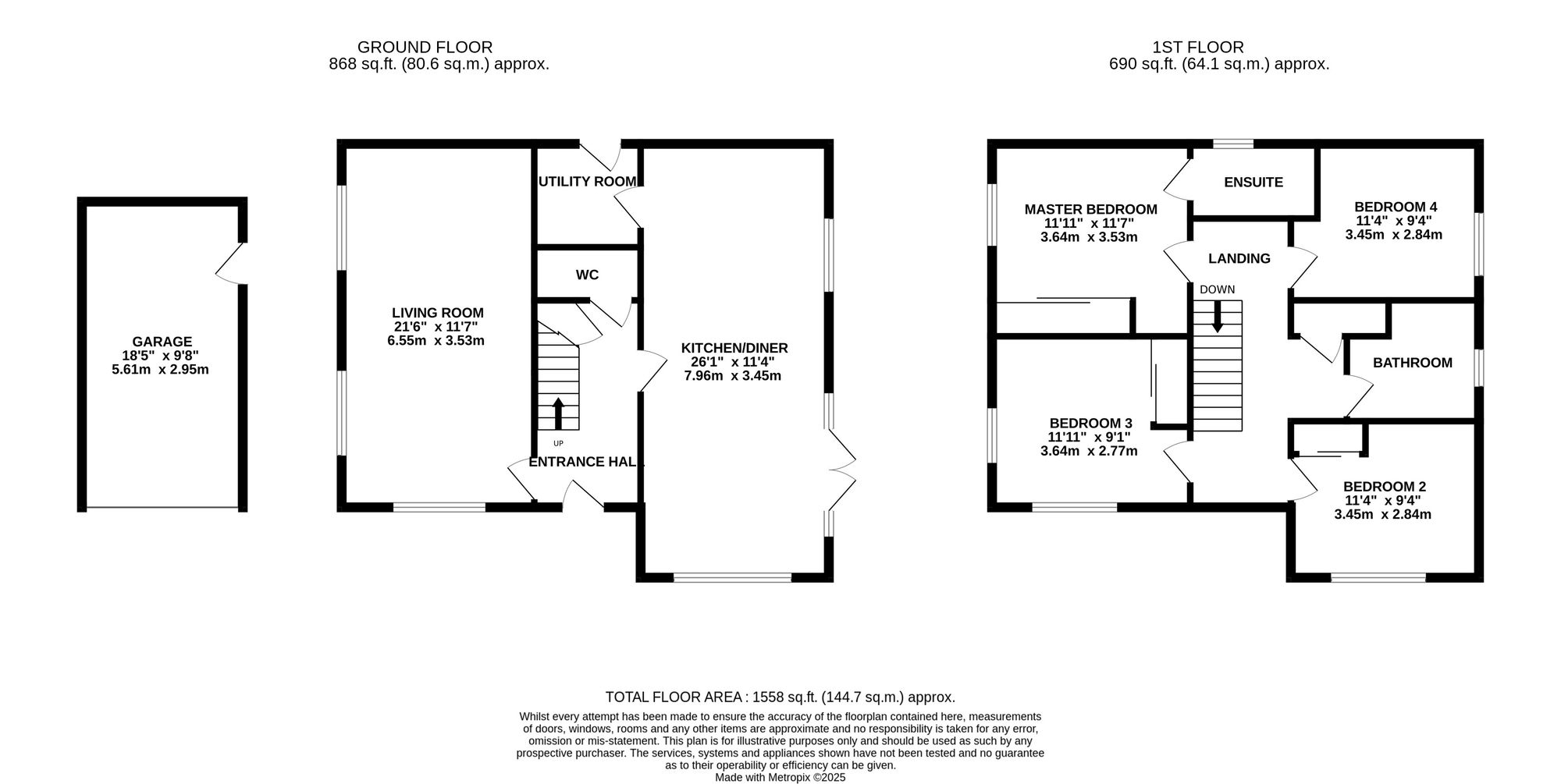
The large living room provides plenty of space for furniture and relaxation, featuring a charming fireplace and dual-aspect windows that fill the room with natural light.

The impressive kitchen/diner is another generous space, fitted with integrated appliances including two ovens, an induction hob, fridge, freezer, and a dishwasher. Elegant Silestone worktops add a touch of luxury to the open-plan design, while ceiling downlighters provide added sparkle — creating an ideal setting for cooking, dining, and socialising. Off the kitchen, the utility room provides a practical area to keep laundry and cleaning essentials neatly tucked away, with space for both a washing machine and dryer. There is also a convenient downstairs WC for added ease.

Upstairs, the galleried landing is a striking feature of the home, enhanced by beautiful ash handrails to the balustrades, giving the space an open and elegant feel. The master bedroom is a spacious retreat with built-in sliding wardrobes and an en-suite shower room featuring a walk-in shower. Bedroom two is another comfortable double with built-in wardrobes and a large front-facing window, while bedroom three also offers double proportions, dual-aspect windows, and additional built-in storage. Bedroom four is slightly smaller and currently used as an office, demonstrating the room’s versatility to suit a range of needs.

The main bathroom is well-appointed with a bath and overhead shower, complemented by a sleek vanity unit and illuminated mirror, creating a modern and relaxing space.

Outside, the west-facing rear garden features a patio area ideal for outdoor dining or relaxing in the sun, along with a well-kept lawn and flower beds for those with a passion for gardening. The garden is fully enclosed by full-height brick walls, offering an exceptional level of privacy. The property also benefits from a garage, accessible from both the front and the garden side door, and a driveway providing off-road parking for two cars.

Location

Nantwich is a historic market town located in the county of Cheshire, England. It lies on the banks of the River Weaver and is approximately 5 miles south-west of the larger town of Crewe. Nantwich has a rich history that dates back to Roman times, and it is known for its well-preserved medieval architecture and charming streets.

One of the most prominent features of Nantwich is its black and white timber-framed buildings, which give the town a distinctive character. The town centre is filled with historic structures, including the Nantwich Town Walls, St. Mary's Church, and the Queen's Aid House. The Nantwich Museum, located in a restored Georgian townhouse, offers visitors an opportunity to explore the town's history and heritage.

Nantwich is also famous for its annual food and drink festival, which takes place in September and attracts thousands of visitors. The festival showcases a variety of local and regional produce, including Cheshire cheese, pies, and real ale. Additionally, the town holds a traditional market on Tuesdays and Saturdays, where locals and tourists can browse a range of goods, from fresh produce to antiques.

The River Weaver, which runs through Nantwich, provides opportunities for leisurely walks along the waterfront and offers a picturesque setting for boat trips. The town is surrounded by beautiful Cheshire countryside, with plenty of scenic trails and paths for outdoor enthusiasts to explore.

Nantwich has a thriving community and offers a range of amenities, including shops, restaurants, cafes, and pubs. It also has several primary and secondary schools, making it an attractive place to live for families.

Nantwich is conveniently placed for commuter travel, with excellent road links including access to the M6 motorway network via the A500. Rail travel is offered via Nantwich train station which has direct services to Manchester and Shrewsbury, and Crewe Railway Station which is within 8 miles and provides direct services to a host of major cities including London, Manchester, Liverpool, Birmingham, and Glasgow.

In summary, Nantwich is a charming market town in Cheshire, England, known for its rich history, medieval architecture, annual food festival, and picturesque surroundings. It's a place where visitors can immerse themselves in the past while enjoying the amenities of a vibrant community.

Energy Efficiency Current: 84.0
Energy Efficiency Potential: 93.0

Important Information

  • This is a Freehold property.
  • This Council Tax band for this property is: E

Property Ref: 50366792-7818-48f8-b236-8cf3c5557ac2

Share:

Similar Properties

Whitchurch Road, Audlem, CW3

3 Bedroom Cottage | £450,000

Stunning 3-bed detached Georgian Cottage in Audlem village. Elegant features, log burner, garden with Summer House. Char...

London Road, Walgherton, CW5

3 Bedroom Detached House | £450,000

Step back in time with modern luxuries in this Grade II listed gate lodge in Walgherton. 3 beds, lavish master suite, ch...

Riddings Lane, Wybunbury, CW5

3 Bedroom Detached Bungalow | Offers in excess of £450,000

Immaculate detached bungalow on Riddings Lane, Wybunbury. Well-maintained 3-bed property with private road access. Ideal...

Audlem Road, Woore, CW3

3 Bedroom Detached House | Offers in region of £455,000

Charming 3-bed detached house in Woore village. Open plan living, modern kitchen, landscaped garden. Off-road parking, i...

Potter Close, Willaston, CW5

4 Bedroom Detached House | £465,500

Modern 4-bed detached home in quiet Willaston estate. Spacious layout, open-plan kitchen, converted garage, en-suite pri...

Main Road, Shavington, CW2

4 Bedroom Detached House | £475,000

Style, high specification, period features, luxury and individual design… these are just a few words that spring to mind...

James Du Pavey Estate Agents (Nantwich)

52 Pillory St, Nantwich, Cheshire, CW5 5BG

01270 445678

How much is your home worth?

Use our short form to request a valuation of your property.

Request a Valuation

Mortgage Calculator

Amount Borrowed: £
Total Amount Repayable: £
Total Monthly Payment: £
©2025 The Guild of Property Professionals. All rights reserved. Terms and Conditions | Privacy Policy | Cookie Policy | Complaints Policy | Members Login
The Guild of Property Professionals Trading Address: 121 Park Lane, London W1K 7AG. GPEA Limited. Registered in England & Wales.  Company No: 02819824.  Registered Office Address: 2 St. Stephen's Court, St. Stephen's Road, Bournemouth, Dorset, England, BH2 6LA.  VAT Registration No: 576 8795 61
Book a Property Valuation Update Cookies Preferences