Lambert Crescent, Nantwich, CW5

£250,000
SSTC
This property listing is now SSTC

3 Bedroom Terraced House for sale in Nantwich

1 3 2
  • Exquisite three bedroom terraced house in the charming and thriving market town of Nantwich, Cheshire.
  • Perfect for those looking to get onto the property ladder or downsizing into a property in an exceptional location without compromising convenience, practicality, parking or living space.
  • Superb location with Nantwich town centre right on the doorstep and within walking distance from all the local amenities Nantwich has to offer!!
  • Excellent layout with living space all on ground floor and bedroom accommodation taking over the first and second floor.
  • Sold with no onward chain, making the buying process a whole lot easier!

This well-positioned townhouse, located on the popular Kingsley development, offers spacious and versatile accommodation arranged over three floors. The property is ideally situated for easy access into Nantwich town centre and benefits from excellent road and rail links, making it a practical choice for commuters and families alike.

Offered with no onward chain, this modern home presents a hassle-free opportunity for buyers looking for a smooth and speedy purchase.

The property has been thoughtfully updated in recent years, including the replacement of soffits, guttering, and fascias with durable UPVC. Inside, features such as LED downlighters, upgraded sockets, light switches, and radiators add to the overall specification.

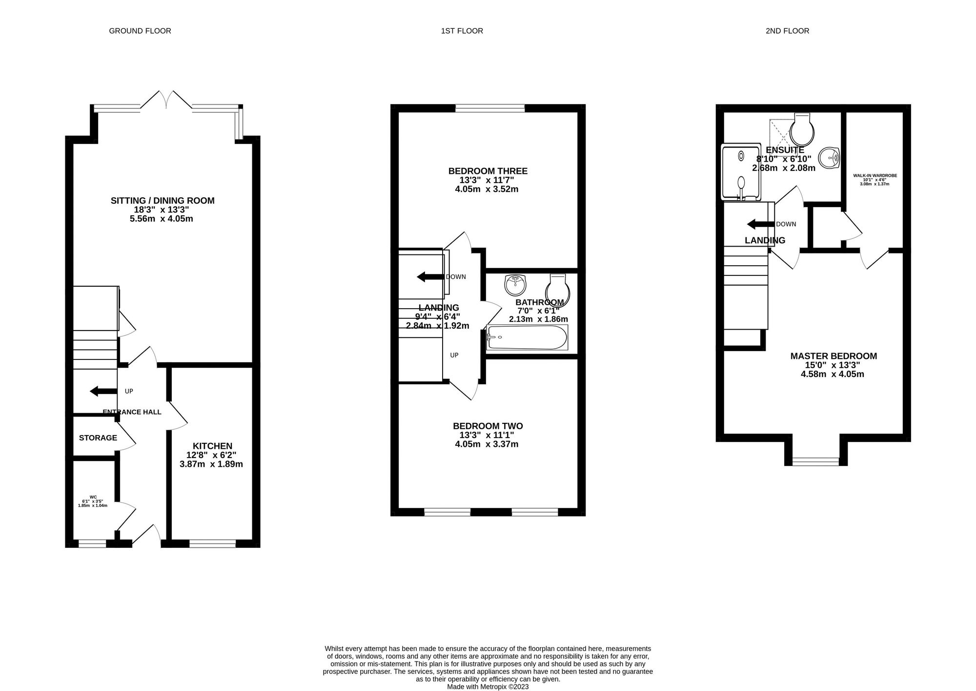
The ground floor comprises an entrance hall with a contemporary oak, glass, and brushed stainless-steel staircase, a WC, a fitted kitchen with a range of units and integrated appliances, and a good-sized open-plan sitting and dining room with French doors leading out to the rear garden.

On the first floor, there are two well-proportioned double bedrooms and a family bathroom. The second floor is dedicated to the main bedroom, which includes a generous walk-in wardrobe and an en-suite shower room.

Externally, the property is approached by a pathway bordered by slate and planted beds. A shared driveway to the side leads to a private courtyard area, providing access to the garage and one allocated parking space. The rear garden is enclosed and features a patio seating area, decking, and well-stocked borders, with a side gate offering access to the parking area and garage.

This property represents an excellent opportunity to acquire a well-designed modern home in a sought-after location within easy reach of Nantwich and surrounding transport links.

Location

Located in the heart of the popular historic market town of Nantwich and only a short walking distance from the town centre. Nantwich is renowned for its beautiful architecture and character and offers a good selection of independent shops, eateries, restaurants and bars but also provides more extensive facilities including supermarkets and leisure centre. The property is ideally placed for the commuter, there is a network of excellent road links including access to the M6 motorway network via A500 and Nantwich train station. Nearby, Crewe Station offers fast access into London and other major cities.

Important Information

  • This is a Leasehold property.
  • The annual cost for the ground rent on this property is £160
  • This Council Tax band for this property is: D
  • EPC Rating is C

Property Ref: e91e64e2-40df-4be8-93de-ad0e9f636ac8

Share:

Similar Properties

Pratchitts Row, Nantwich, CW5

3 Bedroom Terraced House | £250,000

This three/four bedroom terraced home in the heart of Nantwich is arranged over three well-planned floors, offering flex...

Sydney Road, Crewe, CW1

3 Bedroom Town House | Offers in excess of £250,000

This beautifully presented three-bedroom semi-detached townhouse on the outskirts of Crewe offers generous, well-balance...

Queens Drive, Nantwich, CW5

3 Bedroom End of Terrace House | Offers in excess of £250,000

This beautifully presented three-bedroom end-of-terrace home in the charming town of Nantwich offers a spacious and thou...

Tollgate Drive, Audlem, CW3

2 Bedroom Semi-Detached Bungalow | £255,000

Situated in the peaceful village of Audlem, this two-bedroom semi-detached bungalow presents a fantastic renovation oppo...

Wickstead Close, Nantwich, CW5

3 Bedroom End of Terrace House | Offers in excess of £255,000

Charming three-bedroom home in peaceful Nantwich. Features two parking spaces, modern kitchen, flexible living, rear gar...

Weaver Road, Nantwich, CW5

3 Bedroom Semi-Detached House | £255,000

Spacious 3-bed home with lounge, dining room, kitchen, utility, EV charger, garden, summer house, parking. Located in hi...

James Du Pavey Estate Agents (Nantwich)

52 Pillory St, Nantwich, Cheshire, CW5 5BG

01270 445678

How much is your home worth?

Use our short form to request a valuation of your property.

Request a Valuation

Mortgage Calculator

Amount Borrowed: £
Total Amount Repayable: £
Total Monthly Payment: £
©2026 The Guild of Property Professionals. All rights reserved. Terms and Conditions | Privacy Policy | Cookie Policy | Complaints Policy | Members Login
The Guild of Property Professionals Trading Address: 121 Park Lane, London W1K 7AG. GPEA Limited. Registered in England & Wales.  Company No: 02819824.  Registered Office Address: 2 St. Stephen's Court, St. Stephen's Road, Bournemouth, Dorset, England, BH2 6LA.  VAT Registration No: 576 8795 61
Book a Property Valuation Update Cookies Preferences