Michael Ernerley Road, Nantwich

£130,000

3 Bedroom Semi-Detached House for sale in Nantwich

3
  • Beautiful family home
  • Shared ownership 40%
  • Desirable location
  • 3 Bedrooms
  • En-Suite To Master
  • Bathrooom
  • Dining kitchen
  • Double driveway
  • Electric car point
  • No Onward Chain

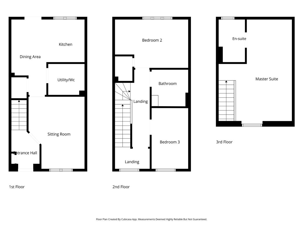
We are delighted to offer for sale on a 40% shared ownership basis, this beautifully presented 3 bedroom semi detached family home, offering spacious and light accommodation throughout and located on a highly sought after residential area in Nantwich. With NO ONWARD CHAIN involved the property in brief comprises, 3 generous bedrooms, master having en-suite, sitting room, dining kitchen, utility/cloakroom, family bathroom, enclosed rear garden and off road parking for 2 vehicles. VIEWING ESSENTIAL.

Council Tax Band: C (Cheshire East)
Tenure: Leasehold
Shared Ownership: 40% being sold, £463.56 per month rental payments
Inc service charge and maintenance
Parking options: Off Street
Garden details: Enclosed Garden
Electricity supply: Mains
Heating: Gas Mains
Water supply: Mains
Sewerage: Mains

Access
Sitting behind a decorative wrought iron, railing fence the property is approached over a paved pathway, leading along the side of the house and also to the part glazed, composite front door under storm porch and leading into:

Reception Hall
Spacious reception hall having stairs rising to first floor landing, painted panelled doors of to meter cupboard and sitting room. Radiator. Wired smoke alarm.

Sitting Room w: 3.34m x l: 4.31m (w: 10' 11" x l: 14' 2")
Generous sitting room having uPvc double glazed, Georgian Bar windows to front elevation, double panelled radiator, feature panelled wall and painted panelled door through to:

Dining kitchen w: 4.15m x l: 4.5m (w: 13' 7" x l: 14' 9")
Fitted with a range of matte grey, soft close, wall, base and drawer units with marble effect work surface over incorporating a one and a half bowl stainless steel sink and drainer with mixer tap over. Integrated, eye level double oven, 4 ring gas burner hob with extractor over, integrated dishwasher, integrated fridge/freezer. Inset spotlighting uPvc double glazed window to rear elevation, uPvc double glazed French doors to rear elevation, ample room for dining table and chairs, extractor fan radiator, wired smoke alar, wired carbon monoxide alarm.

Utility / Cloakroom
Utility room with low level, push button W.C., work station with marble effect work surface over incorporating oval basin with mixer tap, storage cupboards and shelving below, space and plumbing for integrated washing machine. Extractor fan. Radiator.

Stairs
Rising to first floor landing with uPvc double glazed window to front elevation, radiator further staircase rising to second floor. Painted panelled doors off to bedrooms 2 and 3 and also family bathroom.

Bedroom 2 w: 4.36m x l: 2.88m (w: 14' 4" x l: 9' 5")
Large double room with built in wardrobe having painted panelled door, uPvc double glazed window to rear elevation, radiator.

Bathroom
Fitted with a 3 piece suite comprising panelled bath with mixer tap and shower over with glazed pivot shower screen, low level, push button W.C., pedestal wash hand basin with mixer tap, chrome heated ladder towel rail. Inset spotlighting. Part tiled walls. Extractor fan.

Bedroom 3 w: 2.19m x l: 3.62m (w: 7' 2" x l: 11' 11")
Large single room with uPvc double glazed Georgian bar windows to front elevation. Radiator.

Stairs
Rising to second floor and opening into:

Master Suite w: 4.37m x l: 5.87m (w: 14' 4" x l: 19' 3")
Generous double room with uPvc double glazed 'Velux' style window to the rear and uPvc double glazed Georgian bar window to front elevation, under eaves storage, radiator, wired smoke alarm and painted panelled door leading into:

En-suite
En-suite shower room having walk in shower cubicle with glazed sliding door, pedestal wash hand basin, low level, push button W.C., 'Velux' style window, extractor fan, inset spotlighting. Chrome heated ladder towel rail. Part tiled walls.

Externally
To the front of the property a tarmacadam driveway provides off road parking for 2 vehicles, a small lawned frontage sits behind the wrought iron railings and the paved pathway leads to the front door and also alongside the property where an electric car charge point is situated, a wooden access gate enters into the rear garden. The rear garden is fenced on all boundaries, mainly laid to lawn with decking are and also paved patio area both suitable for outside entertaining. Outside lighting and outside tap.

Energy Performance
The current rating is 84 with a potential of 94.

Viewings
Viewings are strictly by appointment only. Please call or email the office to arrange. Thank you.

Looking to sell?
If you are thinking of selling please call or email the office to arrange a free Market Appraisal. Thank you.

Important Information

  • This is a Leasehold property.

Property Ref: RS0716

Share:

Similar Properties

Audley Street, Crewe

3 Bedroom Terraced House | Offers Over £130,000

We are pleased to offer for sale this 3 bedroom mid terraced cottage which will appeal to first time buyers and investor...

College Gate, Crewe

2 Bedroom Apartment | Offers Over £130,000

A spacious ground floor two bedroom apartment located in the sought after Grade ll listed college gate development with...

A Teal Way, Wistaston, Crewe

2 Bedroom Semi-Detached House | Fixed Price £130,000

Fabulous opportunity for first times buyers. Modern semi-detached home with 2 double bedrooms. Offered for sale as 65% s...

Somerley Close, Crewe

1 Bedroom Bungalow | Offers in region of £140,000

We are delighted to offer for sale WITH NO ONWARD CHAIN, this middle of three true bungalows. Immaculate decor throughou...

East Tetton Cottages, Booth Lane, Middlewich

2 Bedroom Terraced House | Offers Over £140,000

A beautifully presented mid terraced cottage situated within easy reach of both Sandbach and Middlewich town centres. Th...

Buxton Avenue, Crewe

3 Bedroom Terraced House | Offers in region of £150,000

A three bedroom terraced home situated in a convenient and popular location, offered for sale with no upward chain.

Wheatcroft & Lloyd (Sandbach)

Sandbach, Cheshire, CW11 1AL

01270 382283

How much is your home worth?

Use our short form to request a valuation of your property.

Request a Valuation

Mortgage Calculator

Amount Borrowed: £
Total Amount Repayable: £
Total Monthly Payment: £
©2026 The Guild of Property Professionals. All rights reserved. Terms and Conditions | Privacy Policy | Cookie Policy | Complaints Policy | Members Login
The Guild of Property Professionals Trading Address: 121 Park Lane, London W1K 7AG. GPEA Limited. Registered in England & Wales.  Company No: 02819824.  Registered Office Address: 2 St. Stephen's Court, St. Stephen's Road, Bournemouth, Dorset, England, BH2 6LA.  VAT Registration No: 576 8795 61
Book a Property Valuation Update Cookies Preferences