New Polzeath

Guide Price
£1,950,000
SSTC
This property listing is now SSTC

4 Bedroom Detached House for sale in New Polzeath

2 4 3
  • Fantastic Beach and Sea Views
  • Short Walk Via Footpath to Beautiful Beach
  • Spacious Adaptable Accommodation
  • Good Size Individual Plot
  • No Through Road
  • Great Potential
  • Chain Free Sale
  • Oil Fired Central Heating

A rare opportunity to purchase a detached four bedroom home in a superb position at New Polzeath enjoying fantastic views.  Freehold.  Council Tax Band G.  EPC rating G.

Rarely available in this sought after coastal location, Sunset is an amazing opportunity to acquire this detached four bedroom house at New Polzeath just a short stroll down to the cliff and beach at Polzeath.

The house occupies an elevated position on Cliff Lane overlooking Polzeath beach with fantastic sea views and of course across the estuary and beach itself.  We understand the original house was constructed in the 1930's, subsequently improved and refurbished in the early 1990's and extended at that period.  Sunset is situated in a no through road and is in our opinion a fantastic location being one row back from frontline and has a good size plot with easy access to the beach and lovely views.  Rock is approximately 4 miles by car or a 3 mile walk away.

Sunset offers an amazing opportunity with Polzeath beach right on your doorstep where one can stroll down for a drink or barbeque and watch the sunset over Pentire Head.  Also nearby is the world renowned St Enodoc Golf Course and The Point at Polzeath for keen golfers and of course sailing and water-skiing at Rock.  A ferry from Rock takes you over to Padstow harbour with its fantastic eateries.  North Cornwall is blessed with wonderful restaurants including Nathan Outlaw's at Port Isaac and of course Rick Stein and Paul Ainsworth in Padstow and the Mariners at Rock.

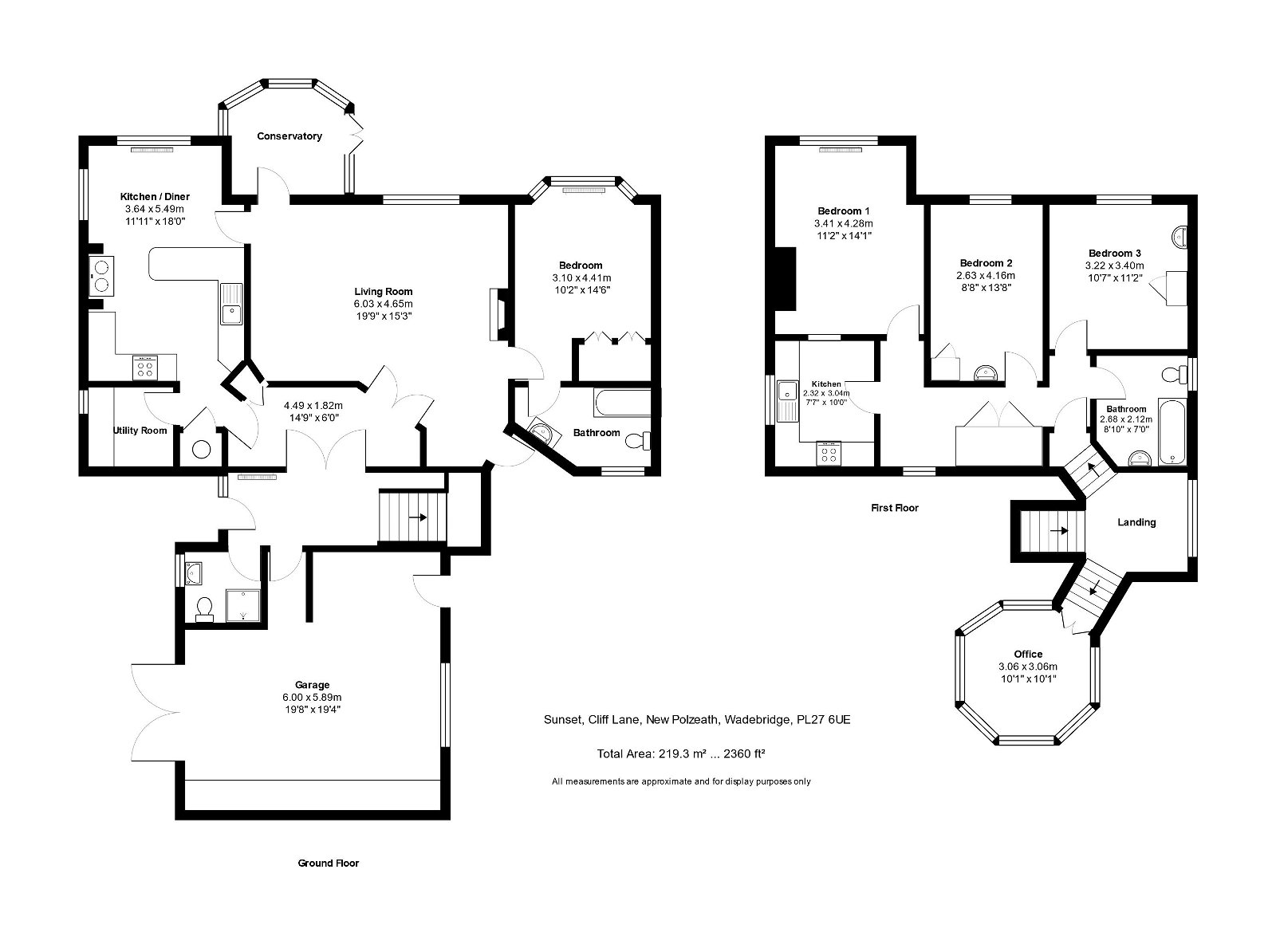
The Accommodation comprises with all measurements being approximate:-

 

Double Glazed Timber Entrance Door with matching side panel to

 

Entrance Hall with feature stairwell to first floor.

 

Shower Room 

Shower enclosure with Mira thermostatic shower, low level W.C., wash hand basin, side double glazed window, extractor fan.  

 

Door to Integral Garage  4.23m, 6.194m at the rear x 6.28m 

With double doors to front and has been used as storage with double glazed window and double glazed door to rear, range of built-in cupboards and workbenches, Trianco oil fired central heating boiler and radiator.

 

Inner Hall – with double doors through to 

 

Living/Dining Room -6.2m x 4.27m min, widening to 6.36m 

Pleasant dual aspect room with 2 radiators, window to front framing lovely views towards Polzeath beach and out to sea, door to

 

Feature Conservatory - 2.65m x 2.6m

Various opening windows and double French doors to front framing magnificent views towards the island, beach and sea.

 

Kitchen/Breakfast Room -5.53n x 3.6m 

With timber fitted kitchen comprising double drainer single bowl stainless steel sink, good range of built-in base and wall units including drawers, timber edged worktops with tiled surrounds, oil fired Rayburn Royal which heats the hot water, recess for electric cooker, space and plumbing for dishwasher, breakfast room area being dual aspect again with super views, radiator.

 

Utility/Wash Room -1.97m x 1.83m

Space and plumbing for washing machine, wall cupboards, fitted worktops, side double glazed window, electric circuit breaker points. Built-in airing cupboard, factory lagged copper tank, slatted shelving.

 

Bedroom 1 – 3.07m x 3.96m plus door recess 

Built-in double wardrobe, access to roof space, bay window to front with super views.

 

En Suite Bathroom

Panelled bath, tiled surround, shower attachment, low level W.C., wash hand basin, cupboard below, radiator, part tiled walls, double glazed window to rear. 

 

First Floor

 

Feature Half Landing with attractive window design and stairwell leading to

 

Study above garage – 3.0 x 3.1m

Attractive design with fitted worktops, various windows and lovely study area, radiator.

 

Main Landing

Built-in airing cupboard, slatted shelving, radiator, window to rear, access to roof space, pull-down loft ladder to

 

Boarded Roof Space with water tank and Velux double glazed window to rear.

 

Second Kitchen – 2.33m x 3.05m

Stainless steel sink, single drainer, good range of built-in base and wall units including drawers, fitted worktops with tiled surrounds, space and plumbing for washing machine, recess for electric cooker, recess for fridge/freezer, side double glazed window, serving hatch to

 

Sitting Room/Bedroom 2 – 4.29m x 3.03m

Radiator, double glazed window overlooking the beach and sea, seals perished in the larger glazed units.

 

Bedroom 3 – 2.65m x 4.14m

Built-in single wardrobe, cupboard over, wash hand basin, double glazed window to front overlooking the beach and sea.

 

Bedroom 4 – 3.2m x 3.4m

Double glazed window to front, wash hand basin, built-in wardrobe with cupboard over.

 

Main Bathroom

Fully tiled comprising panelled bath, shower attachment, wash hand basin, low level W.C., side double glazed window, radiator. 

 

Outside

Concrete entrance drive leading to parking and turning area down to the garage and further parking at rear.  Otherwise the gardens are laid to lawn with the main garden situated at the front of the property from which there are lovely views.

 

Note:  There is a public footpath immediately adjacent to the left hand boundary as you face the sea, being the main footpath from the top of New Polzeath down to the cliff and beach.  One could of course erect a fence to make the garden a lot more private from the footpath, subject of course to a purchaser's wishes.

 

Agents Note 

Covenant on the property that there is to be no building in front of the current building line and that the site can only be used to house one dwelling.  

 

Mundic Block Test

A mundic block test has been undertaken by the vendors with all Class A classification.  A copy of the mundic block test is available for any interested parties.

 

Services

The property is connected to mains water and electricity.  Drainage is private to a septic tank within the front garden of the property.  A BT point is available at the property although the broadband has currently been disconnected.  

Important Information

  • This is a Freehold property.
  • This Council Tax band for this property is: G

Property Ref: 828856

Share:

Similar Properties

Shores Lane, Rock,

4 Bedroom Detached House | Guide Price £1,395,000

The Orchard House is a well presented 4/5 bedroom home, having undergone complete refurbishment in 2017. Set off of Shor...

Luffings, Rock

4 Bedroom Bungalow | £875,000

Luffings, No.36 Trelyn is a beautifully extended four bedroom, three bathroom bungalow located in a quiet and elevated p...

Rock

4 Bedroom Detached House | Guide Price £875,000

Situated in the sought-after village of Rock on the North coast of Cornwall, Killcarreg is a spacious detached 3/4 bedro...

Cole Rayment & White (Rock)

Rock Road, Rock, Cornwall, PL27 6NW

01208 863322

How much is your home worth?

Use our short form to request a valuation of your property.

Request a Valuation

Mortgage Calculator

Amount Borrowed: £
Total Amount Repayable: £
Total Monthly Payment: £
©2026 The Guild of Property Professionals. All rights reserved. Terms and Conditions | Privacy Policy | Cookie Policy | Complaints Policy | Members Login
The Guild of Property Professionals Trading Address: 121 Park Lane, London W1K 7AG. GPEA Limited. Registered in England & Wales.  Company No: 02819824.  Registered Office Address: 2 St. Stephen's Court, St. Stephen's Road, Bournemouth, Dorset, England, BH2 6LA.  VAT Registration No: 576 8795 61
Book a Property Valuation Update Cookies Preferences