Beulah, Newcastle Emlyn

£335,000

5 Bedroom Detached Bungalow for sale in Newcastle Emlyn

2 5 2
  • Nestled in the charming area of Beulah.
  • This delightful detached bungalow offers a perfect blend of comfort and space.
  • Built in 1970.
  • The property boasts five generously sized bedrooms.
  • Viewing is Highly Recommended.
  • No Onward Chain.

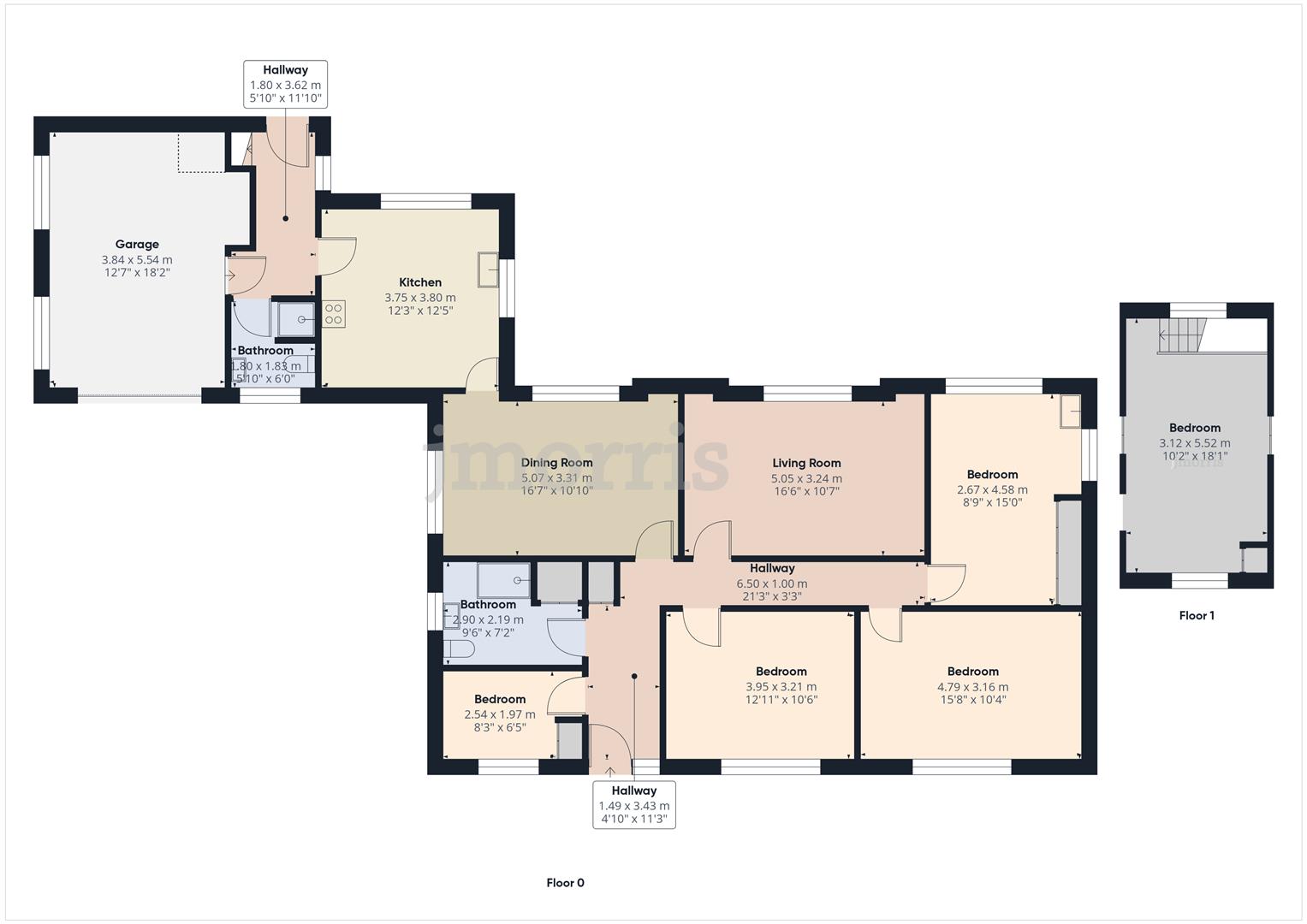
Nestled in the charming area of Beulah, Newcastle Emlyn, this delightful detached bungalow offers a perfect blend of comfort and space. Built in 1970, the property boasts five generously sized bedrooms, making it an ideal home for families or those seeking extra room for guests or a home office. The accommodation comprises: Entrance Hallway, Living Room, Kitchen, Dining Room, Rear Hallway, Shower Room, Attached Garage.

uPVC double glazed door with matching side panel opens to:

Hall - Wood effect laminate flooring, built in cupboard, loft access, doors to:

Living Room - Wood effect flooring, radiator, uPVC double glazed window.

Dining Room - uPVC double glazed windows to the side and rear, wood effect laminate flooring, two radiators. Door to:

Kitchen - Having a range of wall and base units with work surface over, inset stainless steel sink, electric cooker, void and plumbing for dishwasher.

Rear Hall - uPVC double glazed door to the rear, uPVC double glazed window, radiator, stairs to the first floor. Door to the garage. Door to:

Shower Room - Tiled walk-in shower with electric shower, low flush WC, wash hand basin, double glazed uPVC window, part tiled walls, vinyl flooring.

Garage - Up-and-over door, windows, door to rear hallway.

Bedroom One - Double glazed uPVC windows, fitted base units with hand wash basin and tiled splashback, fitted wardrobes, radiator, wood effect laminate flooring.

Bedroom Two - Double glazed uPVC window, coved ceiling, radiators, wood effect laminate flooring.

Bedroom Three - Double glazed uPVC window, coved ceiling, radiator, wood effect laminate flooring.

Bedroom Four - Double glazed uPVC window, coved ceiling, radiator, fitted wardrobes, wood effect laminate flooring.

Loft Room/Bedroom Five - Double glazed uPVC window, fitted base units, fitted wardrobes, built-in storage, wooden flooring.

Externally - Set on a generous plot size of 1.71 Acres of thereabouts. The property is approached via an Off-Road Drive way with ample of road parking and space for several vehicles with access to attached garage. The Garden to the rear is Mainly laid to lawn, Mature shrubs, Bushes and Tree's and a paved patio seating area to enjoy the country side.

Utilities & Services - Heating Source: Oil central heating

Services: Mains Electric:

Water: Mains

Drainage: Septic Tank

Tenure: Freehold and available with vacant possession upon completion

Construction: Please note that the majority of the bungalow is of cavity wall construction, but a small element is timber framed.

Local Authority: Ceredigion County Council

Council Tax: Band E

What3Words: ///accent.fidelity.telephone

Anti Money Laundering & Ability To Purchase - Please note when making an offer we will require information to enable us to confirm all parties identities as required by Anti Money Laundering (AML) Regulations. We may also conduct a digital search to confirm your identity.

We will also require full proof of funds such as a mortgage agreement in principle, proof of cash deposit or if no mortgage is required, we will require sight of a bank statement. Should the purchase be funded through the sale of another property, we will require confirmation the sale is sufficient enough to cover the purchase.

Broadband Availability - According to the Ofcom website, this property has both standard and superfast broadband available, with speeds up to Standard 0.1mbps upload and 1mbps download and Superfast 8mbps upload and 48mbps download. Please note this data was obtained from an online search conducted on ofcom.org.uk and was correct at the time of production.
Some rural areas are yet to have the infrastructure upgraded and there are alternative options which include satellite and mobile broadband available. Prospective buyers should make their own enquiries into the availability of services with their chosen provider.

Mobile Phone Coverage - The Ofcom website states that the property has the following mobile coverage

EE - Variable outdoor
Three - Variable outdoor
O2 - Variable outdoor
Vodafone. - Variable outdoor

Results are predictions and not a guarantee. Actual services available may be different from results and may be affected by network outages. Please note this data was obtained from an online search conducted on ofcom.org.uk and was correct at the time of production. Prospective buyers should make their own enquiries into the availability of services with their chosen provider.

Property Ref: 278594_34243701

Share:

Similar Properties

Bowls Road, Blaenporth, Cardigan

3 Bedroom Detached Bungalow | £335,000

A spacious Three Bedroom Detached Bungalow, enjoying views to the rear over open countryside, set on a generous plot in...

Gotrel Estate, Verwig Road, Cardigan

3 Bedroom Detached Bungalow | Offers Over £325,000

A detached three bedroom bungalow situated on a popular residential development on the outskirts of Cardigan town, just...

Penllain, Penparc, Cardigan

3 Bedroom Detached Bungalow | £325,000

A deceptively spacious Three Bedroom Detached Bungalow in the favoured village of Penparc. The accommodation briefly com...

Aberporth

4 Bedroom Terraced House | £339,950

Situated in the charming coastal village of Aberporth, this delightful mid-terrace house offers a unique opportunity to...

Brynberian, Crymych

3 Bedroom Detached Bungalow | £345,000

Nestled at the foot of the Preseli Hills near the village of Brynberian in the heart of the Pembrokeshire Coast National...

Glandwr, Whitland

4 Bedroom Detached House | £349,950

An exceptional opportunity to acquire a charming and well presented former Mill, located in the idyllic hamlet of Glandw...

JJ Morris (Cardigan)

5 High Street, Cardigan, SA43 1HJ

01239 612343

How much is your home worth?

Use our short form to request a valuation of your property.

Request a Valuation

Mortgage Calculator

Amount Borrowed: £
Total Amount Repayable: £
Total Monthly Payment: £
©2025 The Guild of Property Professionals. All rights reserved. Terms and Conditions | Privacy Policy | Cookie Policy | Complaints Policy | Members Login
The Guild of Property Professionals Trading Address: 121 Park Lane, London W1K 7AG. GPEA Limited. Registered in England & Wales.  Company No: 02819824.  Registered Office Address: 2 St. Stephen's Court, St. Stephen's Road, Bournemouth, Dorset, England, BH2 6LA.  VAT Registration No: 576 8795 61
Book a Property Valuation Update Cookies Preferences