Town Farm Road, Newent

Guide Price
£250,000

3 Bedroom Semi-Detached House for sale in Newent

1 3 2
  • Three Double Bedroom Three Storey Town House
  • Master En-Suite
  • Kitchen / Breakfast Room
  • Off Road Parking for Two Vehicles
  • Enclosed Garden, Popular Residential Location
  • EPC Rating - B, Council Tax - C, Leasehold - 999 Year Lease with 989 Years Remaining, The freehold can be purchased at a cost of approximately £2,000

A THREE DOUBLE BEDROOM THREE STOREY TOWN HOUSE having MASTER EN-SUITE, KITCHEN / BREAKFAST ROOM, OFF ROAD PARKING FOR TWO VEHICLES, ENCLOSED GARDEN, situated in a POPULAR RESIDENTIAL LOCATION WITH AN OPEN OUTLOOK TO THE FRONT.

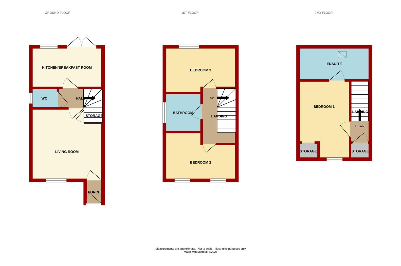
Enter the property via part glazed door into:

Entrance Porch - Radiator, coat hanging space. Door to:

Lounge - 4.45m x 3.61m (14'7 x 11'10) - Television point, radiator, wall mounted electric fire, under stairs storage cupboard, front aspect UPVC double glazed window. Door to:

Inner Hallway - Door to:

Cloakroom - Low-level WC, wall mounted wash hand basin with tiled splashback, extractor fan, stairs to the first floor. Door to:

Kitchen / Breakfast Room - 3.61m x 2.69m (11'10 x 8'10) - Comprising range of units, cupboard housing Ideal Logic boiler, one and a half bowl single drainer sink unit, electric cooker with four ring gas hob above, plumbing for washing machine, space for fridge / freezer, space for table and chairs, radiator, rear aspect UPVC double glazed window, rear aspect UPVC double glazed doors.

FROM THE INNER HALLWAY, STAIRS GIVE ACCESS TO THE FIRST FLOOR.

Landing - Stairs to the second floor.

Bedroom 2 - 3.61m x 3.18m max (11'10 x 10'5 max) - Radiator, two front aspect UPVC double glazed windows.

Bedroom 3 - 3.61m x 2.34m (11'10 x 7'8) - Radiator, rear aspect UPVC double glazed window.

Bathroom - White suite comprising low-level WC, pedestal wash hand basin, panelled bath with shower over, partly tiled walls, extractor fan, heated towel rail, side aspect frosted double glazed window.

FROM THE FIRST FLOOR LANDING, STAIRS LEAD TO THE SECOND FLOOR.

Second Floor Landing - Door to good sized storage cupboard.

Bedroom 1 - 5.08m x 2.59m (16'8 x 8'6) - Radiator, access to loft space, front aspect UPVC double glazed window. Door to:

En-Suite Shower Room - Suite comprising corner shower cubicle with rainfall head shower, low-level WC, pedestal wash hand basin, heated towel, rear aspect roof light.

Outside - A slabbed pathway leads to the front door, where there is a small lawned area. To the left of the lawned area, there is a tarmac driveway suitable for the off road parking of two vehicles. A side gate gives access to the rear garden where there is a patio area, lawned area, outside tap, garden shed, all enclosed by wood panel fencing.

Services - Mains electricity, gas, water and drainage.

Mobile Phone Coverage / Broadband Availability - It is down to each individual purchaser to make their own enquiries. However, we have provided a useful link via Rightmove and Zoopla to assist you with the latest information. In Rightmove, this information can be found under the brochures section, see "Property and Area Information" link. In Zoopla, this information can be found via the Additional Links section, see "Property and Area Information" link.

Water Rates - Severn Trent - to be confirmed.

Local Authority - Council Tax Band: C
Forest of Dean District Council, Council Offices, High Street, Coleford, Glos. GL16 8HG.

Tenure - Leasehold - 999 years from 1st January 2016. Lease term remaining - 989 years.

Ground Rent And Maintenance Charge - £150 per annum ground rent.

£150 per annum to cover maintenance of the communal areas.

Agent's Note - The freehold can be purchased at a cost of approximately £2,000.

Viewing - Strictly through the Owners Selling Agent, Steve Gooch, who will be delighted to escort interested applicants to view if required. Office Opening Hours 8.30am - 7.00pm Monday to Friday, 9.00am - 5.30pm Saturday.

Directions - From our Newent office, proceed along the High Street into Broad Street and into Gloucester Street, taking the first right into Onslow Road. Proceed along, taking the second left into Meek Road. Follow Meek Road to the end, turning first left into Manor Road, then first right into Town Farm Road where the property will be found as marked by our 'For Sale' board.

Property Surveys - Qualified Chartered Surveyors (with over 20 years experience) available to undertake surveys (to include Mortgage Surveys/RICS Housebuyers Reports/Full Structural Surveys).

Awaiting Vendor Approval - These details are yet to be approved by the vendor. Please contact the office for verified details.

Property Ref: 34386614

Share:

Similar Properties

Frome Brook Road, Ledbury

3 Bedroom Detached Bungalow | Guide Price £250,000

**WATER LEAK DAMAGE, SOLD AS SEEN** A MODERN TWO / THREE BEDROOM DETACHED BUNGALOW situated in a POPULAR RESIDENTIAL DEV...

Culver Street, Newent

3 Bedroom Cottage | Guide Price £250,000

A GOOD SIZE THREE BEDROOM BLACK AND WHITE GRADE II LISTED COTTAGE, full of IMMENSE CHARACTER and CHARM, benefiting from...

Prince Crescent, Staunton

3 Bedroom Detached Bungalow | Guide Price £250,000

A TWO / THREE BEDROOM DETACHED BUNGALOW IN NEED OF EXTENSIVE UPGRADING AND MODERNISATION, CONSERVATORY, SOUTH FACING REA...

Stokes Mews, Newent

3 Bedroom Semi-Detached House | £259,650

WELL PRESENTED, THREE BEDROOM, THREE STOREY MODERN TOWNHOUSE for the OVER 55's situated within CLOSE ACCESS to the TOWN...

Foley Road, Newent

3 Bedroom Semi-Detached House | £259,950

A WELL PRESENTED THREE DOUBLE BEDROOM THREE STOREY SEMI-DETACHED TOWN HOUSE with a LOVELY OPEN PLAN LIVING AREA, EN-SUIT...

Buzzard Row, Newent

3 Bedroom End of Terrace House | £260,000

A SPACIOUS THREE BEDROOM END OF TERRACE TOWNHOUSE with ACCOMMODATION OVER THREE FLOORS, having LIVING / DINING ROOM, MAS...

Steve Gooch Estate Agents (Newent)

Newent, Gloucestershire, GL18 1AN

01531 820844

How much is your home worth?

Use our short form to request a valuation of your property.

Request a Valuation

Mortgage Calculator

Amount Borrowed: £
Total Amount Repayable: £
Total Monthly Payment: £
©2026 The Guild of Property Professionals. All rights reserved. Terms and Conditions | Privacy Policy | Cookie Policy | Complaints Policy | Members Login
The Guild of Property Professionals Trading Address: 121 Park Lane, London W1K 7AG. GPEA Limited. Registered in England & Wales.  Company No: 02819824.  Registered Office Address: 2 St. Stephen's Court, St. Stephen's Road, Bournemouth, Dorset, England, BH2 6LA.  VAT Registration No: 576 8795 61
Book a Property Valuation Update Cookies Preferences