Waterside Walk West, Rogerstone, NP10

Offers in excess of
£315,000
SSTC
This property listing is now SSTC

3 Bedroom Semi-Detached House for sale in Newport

2 3 2

Number One agent, Lucinda Evans is delighted to offer this three-bedroom semi-detached property for sale in Rogerstone, Newport.

This three-bedroom semi-detached property is located on Waterside Walk West in Rogerstone, nestled within a quiet cul-de-sac with picturesque views overlooking the canal to the rear. Rogerstone is a highly sought-after location, offering an excellent balance of local amenities, good schools, and beautiful walking routes along the Monmouthshire and Brecon Canal. The property is well placed for commuters, with convenient access to the M4 motorway and Rogerstone railway station, which provides regular services to Cardiff and beyond. The area also benefits from a range of shops, cafés, and leisure facilities, and an hourly bus services to Newport from the top of Delius Close, making it a desirable place for both families and professionals.

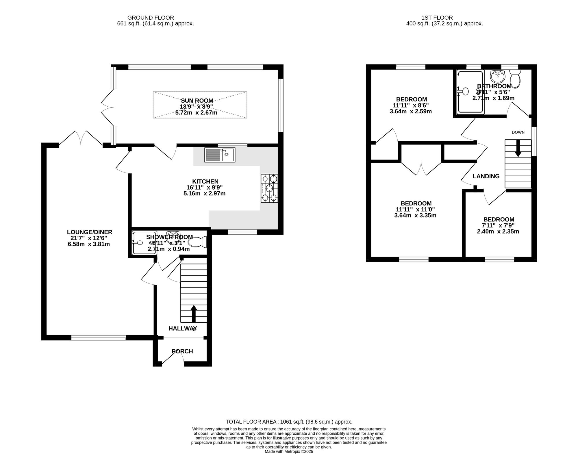
On the ground floor, the hallway provides access to the main living areas, a convenient ground floor shower room, and the staircase to the first floor. The main living space is open plan, naturally bright, and features a charming multi-fuel burner fireplace as its focal point. There is ample room for both seating and dining, creating a versatile family area. From here, access leads into the large, modern kitchen, which offers an excellent range of units and generous worktop space. To the rear of the property is a sun room, another spacious and inviting area with a large skylight and patio doors opening out to the garden. This room is ideal as a dining area or an additional family space, enjoying views over the rear garden and canal.

The first floor is home to three bedrooms, comprising two comfortable doubles and a single, all well presented and naturally bright. The accommodation on this floor is completed by a family shower room.

Externally, the property benefits from both front and rear outdoor spaces. To the front is a low-maintenance garden and a driveway providing off-road parking. To the rear, an enclosed seating area offers space for outdoor dining, with steps leading down to a charming garden filled with established plants and enjoying uninterrupted views of the canal – a truly peaceful and picturesque setting.

Agents note: The solar panels at the property are leasehold - The Lease on the solar panels on the property, is successor in titled, meaning that the Lease transfers automatically to the new homeowner. For more details contact the agent.

Council Tax Band D

All services and mains water are connected to the property.

How the broadband internet is provided to the property is unknown. Please visit the Ofcom website to check broadband availability and speeds.

Please contact Number One Real Estate for more information or to arrange a viewing.

Energy Efficiency Current: 79.0
Energy Efficiency Potential: 87.0

Important Information

  • This is a Freehold property.
  • This Council Tax band for this property is: D

Property Ref: 0718a061-66ae-4afa-ae68-9940a4c83510

Share:

Similar Properties

Traston Close, Newport, NP19

3 Bedroom Detached House | Guide Price £315,000

* GUIDE PRICE :- £315,000-£325,000 * 3 DOUBLE BEDROOMS * MULTIPLE RECEPTION ROOMS * VERSATILE LAYOUT * WELL EQUIPPED KIT...

Station Road, Rogiet, NP26

3 Bedroom Terraced House | Guide Price £315,000

* GUIDE PRICE: £315,000 - £325,000 * 3 BEDROOMS * 2 BATHROOMS * BEAUTIFULLY PRESENTED * IMPRESSIVE RECEPTION ROOM * OPEN...

Brassgout Reen Road, Newport, NP19

3 Bedroom Detached House | Guide Price £310,000

* GUIDE PRICE: £310,000 - £330,000 * 3 DOUBLE BEDROOMS * NEWLY CONSTRUCTED * BEAUTIFULLY PRESENTED * BRIGHT LIVING ROOM...

The Avenue, Caldicot, NP26

3 Bedroom Semi-Detached House | Guide Price £320,000

**GUIDE PRICE: £320,000 - £340,000**SPACIOUS SEMI-DETACHED PROPERTY**THREE BEDROOMS**LARGE PLOT AND GARDENS**OPEN PLAN L...

Sol Invictus Place, Caerleon, NP18

3 Bedroom Detached House | Guide Price £325,000

* GUIDE PRICE £325,000 - £350,000 * DETACHED PROPERTY * 3 BEDROOMS * MASTER BEDROOM WITH ENSUITE * LARGE LIVING ROOM WIT...

The Paddocks, Undy, NP26

3 Bedroom Detached House | Offers in region of £325,000

* THREE BEDROOMS * MASTER ROOM W/ ENSUITE * SPACIOUS LIVING ROOM * LARGE CONSERVATORY * WELL EQUIPPED KITCHEN * UTILITY...

Number One Real Estate (Newport)

Newport, Monmouthshire, NP20 4AQ

01633 492777

How much is your home worth?

Use our short form to request a valuation of your property.

Request a Valuation

Mortgage Calculator

Amount Borrowed: £
Total Amount Repayable: £
Total Monthly Payment: £
©2025 The Guild of Property Professionals. All rights reserved. Terms and Conditions | Privacy Policy | Cookie Policy | Complaints Policy | Members Login
The Guild of Property Professionals Trading Address: 121 Park Lane, London W1K 7AG. GPEA Limited. Registered in England & Wales.  Company No: 02819824.  Registered Office Address: 2 St. Stephen's Court, St. Stephen's Road, Bournemouth, Dorset, England, BH2 6LA.  VAT Registration No: 576 8795 61
Book a Property Valuation Update Cookies Preferences