Temperance Hill, Risca, NP11

Guide Price
£360,000

3 Bedroom Semi-Detached House for sale in Newport

3 3 1

GUIDE PRICE £360,000 - £380,000

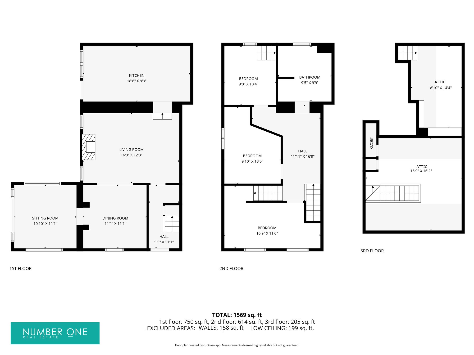
We are delighted to present this three bedroom, semi-detached property for sale in Risca. Located in quiet elevated position in the small town of Risca, within short distance to the local amenities, with the nearby high street offering local cafes, sporting facilities, a huge library and all your local conveniences. Risca is a small town with a wonderful sense of community, with multiple schooling options and several park spaces to enjoy. The property has great road links, and both Risca and Pontymister train station close by, making commuting to Newport, Cardiff, or Bristol easy.

This extravagant family home features a wealth of period features blend with a charming contemporary design. Upon entry to the house, we are welcomed into the spacious reception room which features vibrant wooden flooring and a charming fireplace, creating a warm and inviting atmosphere that is ideal for relaxing and entertaining guests. The living room also features a seamless open plan design to connect to the neighbouring dining area and sitting room beyond, offering a vast amount of flexible reception space. The kitchen is located at the rear of the house, boasting sleek wooden cabinetry and ample storage options, as well as room for appliances to join the integrated range cooker and dishwasher currently integrated into the worktop.

Ascending to the first floor we can find the first three bedrooms which are all well sized double rooms, whilst from the sizeable hallway we can find the stylish modern bathroom, with a corner bath tub and a separate shower unit. The third bedroom features a stairwell to the attic, which is currently used as a practical living space, perfect for a home office, games room or snug living area. The property also features an attic that is equipped with convenient fitted storage solutions.

A major highlight of this home is its extensive gardens that surround the property, offering an abundance of space framed by mature trees, lush greenery and scenic views over the town and countryside. Around the substantial garden plot we can find a large lawn, as well as a wooden deck and multiple patio seating areas, providing numerous areas that are perfect for relaxing in the fresh air, entertaining guests or dining al-fresco style. A rustic garden shed offers excellent storage or potential for a workshop or summerhouse, while the terraced pebble stone entry path leads us up to the roadside where a shared car park can be found, providing convenient parking for residents and visitors.

Agents note: The property has been altered (removal of internal walls - living/dining room & conservatory) and the owner does not hold building regulation/approval documents for any works carried out, therefore we would inform interested parties to rely on their own inspections, searches and surveys.

Council Tax Band: C

All services and mains water are connected to the property.

The broadband internet is provided to the property by unknown, the sellers are subscribed to Utility Warehouse. Please visit the Ofcom website to check broadband availability and speeds.

The owner has advised that the level of the mobile signal/coverage at the property is good, they are subscribed to O2. Please visit the Ofcom website to check mobile coverage.

Please contact us for more information or to arrange a viewing.

Important Information

  • This is a Freehold property.
  • This Council Tax band for this property is: C
  • EPC Rating is D

Property Ref: 00aec7c5-079e-4c8b-8d39-6f03b8606dbe

Share:

Similar Properties

Beacons Close, Rogerstone, NP10

3 Bedroom Detached House | Guide Price £360,000

**GUIDE PRICE £360,000 - £380,000**DETACHED FAMILY HOME**THREE BEDROOMS**PRIMARY EN-SUITE**LIVING ROOM**DINING ROOM**CON...

Gifford Close, Two Locks, NP44

4 Bedroom Detached House | Guide Price £360,000

* GUIDE PRICE £360,000 - £380,000* 4 DOUBLE BEDROOMS* EN-SUITE + FAMILY BATHROOM* NEWLY RENOVATED* BEAUTIFULLY PRESENTED...

Obama Grove, Rogerstone, NP10

3 Bedroom Detached House | Guide Price £360,000

* GUIDE PRICE £360,000 - £380,000* THREE BEDROOMS* LARGE LIVING ROOM* LANDSCAPED GARDEN* HIGH END KITCHEN* CONSERVATORY*...

Hobart Close, Newport, NP20

3 Bedroom Detached House | Offers in excess of £365,000

**DETACHED BUNGALOW**THREE BEDROOMS**LIVING ROOM**OPEN PLAN LOUNGE/DINER**BATHROOM**LOFT**LARGE PLOT AND GARDENS**DRIVEW...

Fenner Brockway Close, Newport, NP19

4 Bedroom Detached House | Guide Price £365,000

**GUIDE PRICE £365,000 - £375,000**SPACIOUS DETACHED PROPERTY**FOUR BEDROOMS**THREE BEDROOMS**FOUR RECEPTION ROOMS**KITC...

Rockfield Way, Undy, NP26

4 Bedroom Detached House | Guide Price £370,000

**GUIDE PRICE: £370,000 - £380,000**DETACHED FAMILY HOME**FOUR BEDROOMS**PRIMARY EN-SUITE**THREE RECEPTION ROOMS**KITCHE...

Number One Real Estate (Newport)

Newport, Monmouthshire, NP20 4AQ

01633 492777

How much is your home worth?

Use our short form to request a valuation of your property.

Request a Valuation

Mortgage Calculator

Amount Borrowed: £
Total Amount Repayable: £
Total Monthly Payment: £
©2026 The Guild of Property Professionals. All rights reserved. Terms and Conditions | Privacy Policy | Cookie Policy | Complaints Policy | Members Login
The Guild of Property Professionals Trading Address: 121 Park Lane, London W1K 7AG. GPEA Limited. Registered in England & Wales.  Company No: 02819824.  Registered Office Address: 2 St. Stephen's Court, St. Stephen's Road, Bournemouth, Dorset, England, BH2 6LA.  VAT Registration No: 576 8795 61
Book a Property Valuation Update Cookies Preferences