Forsythia Close, Risca, NP11

Guide Price
£125,000
SSTC
This property listing is now SSTC

2 Bedroom Semi-Detached House for sale in Newport

1 2 1

GUIDE PRICE £125,000 - £145,000

Number One Agent, Adam Darlow is delighted to offer this two bedroom, semi-detached property for sale in Risca.

This home is offered to the market with no onward chain and presents plenty of potential for modernisation, making it an ideal purchase for first-time buyers, investors, or those looking to put their own stamp on a property. One of the standout features is the beautiful open outlook to the rear, offering stunning views over the surrounding hills and countryside. Transport links are excellent, with Risca & Pontymister railway station providing direct services to Cardiff Central and Ebbw Vale. The property is also well-positioned for road commuters, with easy access to the A467 and M4 motorway, offering a straightforward journey to Newport, Cardiff, and beyond.

Set back from the road, the property benefits from a private position. Steps lead down to the main entrance, with a side path providing convenient access to the rear garden. The front garden is tiered and adds kerb appeal with the opportunity for further landscaping.

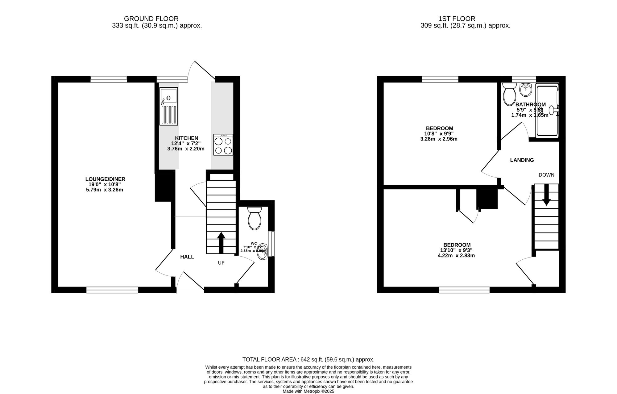
Internally, the ground floor comprises a welcoming entrance hall which leads into a spacious lounge/diner—a bright and airy space perfect for relaxing or entertaining, with ample room for both living and dining furniture. The kitchen is located to the rear of the property, offering access to the garden and potential to be opened up or reconfigured subject to the usual permissions. Completing the ground floor is a useful cloakroom with WC and hand basin.

The first floor boasts two generously sized double bedrooms, both enjoying pleasant views, along with a shower room featuring a walk-in shower, WC, and wash basin. The layout offers a well-balanced living space with further scope for personalisation.

To the rear, the garden is a real highlight—tiered and thoughtfully arranged to make the most of the picturesque views. It features a mixture of patio and decking areas, providing plenty of room for outdoor seating and entertaining while enjoying the peaceful surroundings.

Council Tax Band A

Agents note: Please note the property is Non-standard construction (structure TBC) and may be subject to limited mortgage lenders.

How broadband internet is provided to the property is unknown, the sellers are subscribed to Talktalk.  Please visit the Ofcom website to check broadband availability and speeds.

The owner has advised that the level of the mobile signal/coverage at the property is good. Please visit the Ofcom website to check mobile coverage.

All services and mains water are connected to the property.

Please contact Number One Real Estate for more information or to arrange a viewing.

Important Information

  • This is a Freehold property.
  • This Council Tax band for this property is: A
  • EPC Rating is E

Property Ref: 130b9fce-1ba3-493d-9ce4-812ffc1550e5

Share:

Similar Properties

King Street, Cwm, NP23

3 Bedroom Terraced House | £125,000

* 3 BEDROOM TERRACED HOME* IMPRESSIVE RECEPTION ROOM* MODERN KITCHEN* STYLISH BATHROOM* SECLUDED GARDEN COURTYARD* CHARM...

Caerau Road, Newport, NP20

2 Bedroom Flat | Guide Price £125,000

* GUIDE PRICE: £125,000 - £135,000* TOP FLOOR APARTMENT* 2 BEDROOMS* GREAT CENTRAL LOCATION* SPACIOUS LOUNGE / DINER* PR...

Mansel Street, Newport, NP19

2 Bedroom Terraced House | Guide Price £125,000

GUIDE PRICE £125,000 - £135,000* 2 BEDROOMS* 2 RECEPTION ROOMS* PRACTICAL KITCHEN* BATH+SHOWER* GREAT LOCATION* LARGE RE...

Sarno Square, Abergavenny, NP7

2 Bedroom Flat | Offers Over £129,995

**GUIDE PRICE £150,000 - £170,000**NO ONWARD CHAIN**SPACIOUS FIRAST FLOOR APARTMENT**TWO BEDROOMS**OPEN PLAN LIVING**PRI...

Pennant Street, Ebbw Vale, NP23

3 Bedroom Terraced House | Guide Price £130,000

**GUIDE PRICE: £130,000 - £140,000**MID TERRACE PROPERTY**BEAUTIFUL REAR VIEWS**THREE BEDROOMS**LOUNGE/DINER**KITCHEN**B...

Rodney Road, Devonia House, NP19

2 Bedroom Flat | Guide Price £130,000

* GUIDE PRICE £130,000 - £140,000 * 2 BEDROOMS* GROUND FLOOR APARTMENT* RIVERSIDE LOCATION* CLOSE TO CITY CENTRE* SPACIO...

Number One Real Estate (Newport)

Newport, Monmouthshire, NP20 4AQ

01633 492777

How much is your home worth?

Use our short form to request a valuation of your property.

Request a Valuation

Mortgage Calculator

Amount Borrowed: £
Total Amount Repayable: £
Total Monthly Payment: £
©2026 The Guild of Property Professionals. All rights reserved. Terms and Conditions | Privacy Policy | Cookie Policy | Complaints Policy | Members Login
The Guild of Property Professionals Trading Address: 121 Park Lane, London W1K 7AG. GPEA Limited. Registered in England & Wales.  Company No: 02819824.  Registered Office Address: 2 St. Stephen's Court, St. Stephen's Road, Bournemouth, Dorset, England, BH2 6LA.  VAT Registration No: 576 8795 61
Book a Property Valuation Update Cookies Preferences