Water Lane Sherington

Asking Price
£210,000
Under Offer
This property listing is now Under Offer

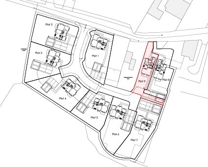
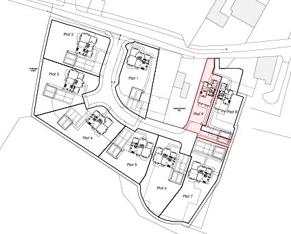
Plot for sale in Newport Pagnell

  • FULLY SERVICED BUILDING PLOT
  • PLANNING FOR 2 BEDROOM DETACHED BUNGALOW
  • APPROXIMATELY 1,000 SQ/FT
  • PLOT PRICE £210,000 FREEHOLD
  • CALL 01908 794700 FOR FURTHER DETAILS

Situated in the sought after village of Sherington, this superb building plot presents a rare opportunity to create your dream bungalow in a picturesque countryside setting.



Fully serviced building plot with existing planning for a two bedroom detached circa 1,000 square foot

Important Information

  • This is a Freehold property.

Property Ref: NEW_NEW250223

Share:

Similar Properties

Green Farm Road, Newport Pagnell, MK16

2 Bedroom Apartment | Offers in excess of £210,000

* URBAN & RURAL * A large two bedroom modern apartment located in Newport Pagnell, this property briefly comprises a spa...

Green Farm Road, Newport Pagnell

2 Bedroom Flat | Offers in excess of £210,000

* URBAN & RURAL * A large two bedroom modern apartment located in Newport Pagnell, this property briefly comprises a spa...

2 BEDROOM - 2 BATHROOM - GROUND FLOOR

2 Bedroom Ground Floor Flat | Offers in excess of £210,000

*** ATTENTION INVESTORS & FIRST TIME BUYERS *** *** 2 BEDROOM - 2 BATHROOM - GROUND FLOOR *** Urban & Rural Newport Pag...

One Bedroom Cluster House

1 Bedroom End of Terrace House | Offers Over £220,000

* IMMACULATE ONE BEROOM END OF TERRACED FAMILY HOME * CONSERVATORY * DRIVEWAY AND GARAGE * Urban & Rural Newport Pagne...

One Bedroom Terraced House

1 Bedroom Terraced House | Offers in excess of £220,000

Urban & Rural are delighted to offer for sale this rarely available 1 Bedroom property which boasts a separate living ro...

Walking Distance of Town Centre

1 Bedroom Terraced House | Asking Price £220,000

*** Ideal First Purchase or Investment *** Urban and Rural are pleased to offer 'For Sale' this fantastic 1 bedroom cot...

Urban & Rural (Newport Pagnell)

31 High Street, Newport Pagnell, Milton Keynes, MK16 8AR

01908 794700

How much is your home worth?

Use our short form to request a valuation of your property.

Request a Valuation

Mortgage Calculator

Amount Borrowed: £
Total Amount Repayable: £
Total Monthly Payment: £
©2026 The Guild of Property Professionals. All rights reserved. Terms and Conditions | Privacy Policy | Cookie Policy | Complaints Policy | Members Login
The Guild of Property Professionals Trading Address: 121 Park Lane, London W1K 7AG. GPEA Limited. Registered in England & Wales.  Company No: 02819824.  Registered Office Address: 2 St. Stephen's Court, St. Stephen's Road, Bournemouth, Dorset, England, BH2 6LA.  VAT Registration No: 576 8795 61
Book a Property Valuation Update Cookies Preferences