Spencer Way, Newport, NP19

Guide Price
£260,000
SSTC
This property listing is now SSTC

3 Bedroom Semi-Detached House for sale in Newport

1 3 2

GUIDE PRICE: £260,000 - £280,000

Number One agent, Katie Darlow is delighted to offer this three-bedroom, semi-detached property for sale in Newport.

Located on the popular Spencer Way in Glan Llyn, Newport, this modern three-bedroom semi-detached property offers the perfect blend of suburban tranquillity and urban convenience. Set within a quiet residential development just outside Newport city centre, the home enjoys a peaceful cul-de-sac position, offering privacy and minimal overlooking. The area is ideally suited to families, with Glan Llyn Primary School less than a five-minute walk away. A short stroll brings you to Spytty Retail Park, home to an array of shops, cafes, and leisure facilities. For commuters, Glan Llyn boasts excellent transport links with easy access to the M4, making travel to Cardiff, Bristol, and even London both quick and convenient.

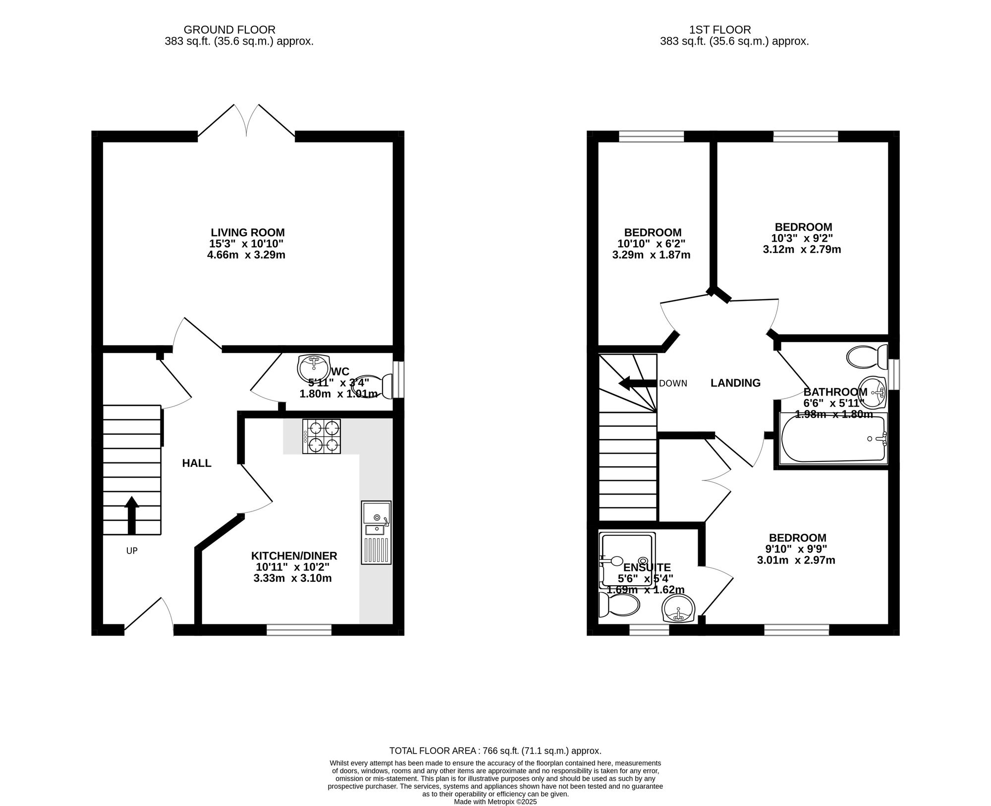
Presented to a beautiful standard throughout, the property welcomes you with a bright and airy entrance hallway, which includes a large under-stairs storage cupboard and a convenient downstairs cloakroom. At the front of the property is a stylish kitchen/diner, fitted with modern units and integrated appliances, offering a practical and sociable space for family meals or entertaining. To the rear, a spacious living room provides a relaxing atmosphere, enhanced by double doors opening directly onto the rear garden, allowing plenty of natural light to flood the room and providing easy access to the outdoor space.

Upstairs, the home offers three well-proportioned bedrooms. The master bedroom benefits from a fitted wardrobe and a contemporary en-suite shower room, while the second bedroom is another generously sized double. The third bedroom, a versatile single, could serve equally well as a nursery, home office, or guest room. The family bathroom features a modern three-piece suite including a bathtub, ideal for family life or unwinding in the evening.

Externally, the property continues to impress. The enclosed rear garden features a well-maintained lawn and a patio area perfect for entertaining guests or enjoying al fresco dining during the warmer months. To the side of the property, there are two allocated off-road parking spaces, with further on-street parking readily available for visitors. Positioned at the end of the cul-de-sac, the home enjoys a quiet and secure setting, making it a particularly attractive option for families and professionals alike.

This immaculately presented home in Glan Llyn is an excellent opportunity for those seeking a move-in ready property in a convenient and family-friendly location.

Please contact the agent, Katie to arrange a viewing or discuss further details.

Annual Service charge to First Port - £254

Council Tax Band D

All services and mains water(metered) are connected to the property. 

How the broadband internet is provided to the property is unknown, the sellers are subscribed to Virgin Media. Please visit the Ofcom website to check broadband availability and speeds.

The owner has advised that the level of the mobile signal/coverage at the property is good, they are subscribed to Vodafone and EE . Please visit the Ofcom website to check mobile coverage.

Please contact Number One Real Estate to arrange a viewing or discuss further details.

Energy Efficiency Current: 83.0
Energy Efficiency Potential: 97.0

Important Information

  • This is a Freehold property.
  • This Council Tax band for this property is: C

Property Ref: 51d9a0db-de01-4b71-a6cc-62b739481fd4

Share:

Similar Properties

Pilton Vale, Newport, NP20

3 Bedroom Semi-Detached House | Guide Price £260,000

* GUIDE PRICE £260,000 - £270,000 * SEMI-DETACHED * THREE BEDROOMS * USEFUL LOFT SPACE * TWO RECEPTION ROOMS * OPEN PLAN...

Commercial Road, Machen, CF83

3 Bedroom Semi-Detached House | Guide Price £260,000

*GUIDE PRICE £260,000 - £280,000 * THREE BEDROOMS * BEAUTIFULLY PRESENTED * BRIGHT LIVING ROOM + DINER * WELL EQUIPPED K...

Cape Lookout Walk, Newport, NP20

3 Bedroom Semi-Detached House | Guide Price £260,000

*GUIDE PRICE £260,000 - £270,000*BEAUTIFULLY PRESENTED SEMI-DETACHED PROPERTY*THREE BEDROOMS*EN-SUITE*LIVING ROOM*KITCHE...

Meadowcroft, Rogiet, NP26

3 Bedroom Semi-Detached House | Guide Price £265,000

* GUIDE PRICE £265,000 - £275,000 * 3 BEDROOMS * BRIGHT LIVING ROOM * SLEEK BATHROOM * PRACTICAL KITCHEN * DOUBLE DRIVEW...

Spencer Way, Newport, NP19

3 Bedroom Semi-Detached House | Guide Price £270,000

* REAR PATIO AND GARDEN * EXTERIOR CABIN FITTED WITH ELECTRICITY * 3 BEDROOMS * MASTER BEDROOM WITH EN-SUITE * LARGE DRI...

Maple Gardens, Risca, NP11

3 Bedroom Detached House | Guide Price £270,000

* GUIDE PRICE £270,000 - £280,0000 * 3 BED DETACHED * MASTER BEDROOM WITH ENSUITE * FITTED STORAGE THROUGHOUT * RECENTLY...

Number One Real Estate (Newport)

Newport, Monmouthshire, NP20 4AQ

01633 492777

How much is your home worth?

Use our short form to request a valuation of your property.

Request a Valuation

Mortgage Calculator

Amount Borrowed: £
Total Amount Repayable: £
Total Monthly Payment: £
©2025 The Guild of Property Professionals. All rights reserved. Terms and Conditions | Privacy Policy | Cookie Policy | Complaints Policy | Members Login
The Guild of Property Professionals Trading Address: 121 Park Lane, London W1K 7AG. GPEA Limited. Registered in England & Wales.  Company No: 02819824.  Registered Office Address: 2 St. Stephen's Court, St. Stephen's Road, Bournemouth, Dorset, England, BH2 6LA.  VAT Registration No: 576 8795 61
Book a Property Valuation Update Cookies Preferences