Kensington Place, Newport, NP19

Guide Price
£375,000
SSTC
This property listing is now SSTC

4 Bedroom Semi-Detached House for sale in Newport

3 4 2

GUIDE PRICE £375,000 - £400,000

Number One Agent, Harrison Cole is delighted to offer this four bedroom, semi detached property for sale in Newport.

This beautifully presented four-bedroom Edwardian family home on Kensington Place offers an exceptional blend of timeless period features and modern living. From the moment you arrive, the property impresses with its charming decorative front garden, and inviting pathway leading to the grand main entrance.

Located just a short distance from Newport city centre, the property benefits from an array of local amenities including well-regarded primary and secondary schools, independent shops, cafés, and supermarkets. The nearby Beechwood Park offers a lovely spot for walks and family outings, while Friars Walk shopping centre, the Riverfront Theatre, and a wide choice of restaurants and entertainment venues are all within easy reach. For commuters, the property is ideally placed with excellent transport links: Newport train station offers direct routes to Cardiff, Bristol, and London Paddington, and the M4 motorway is easily accessible, connecting you to South Wales and the West of England.

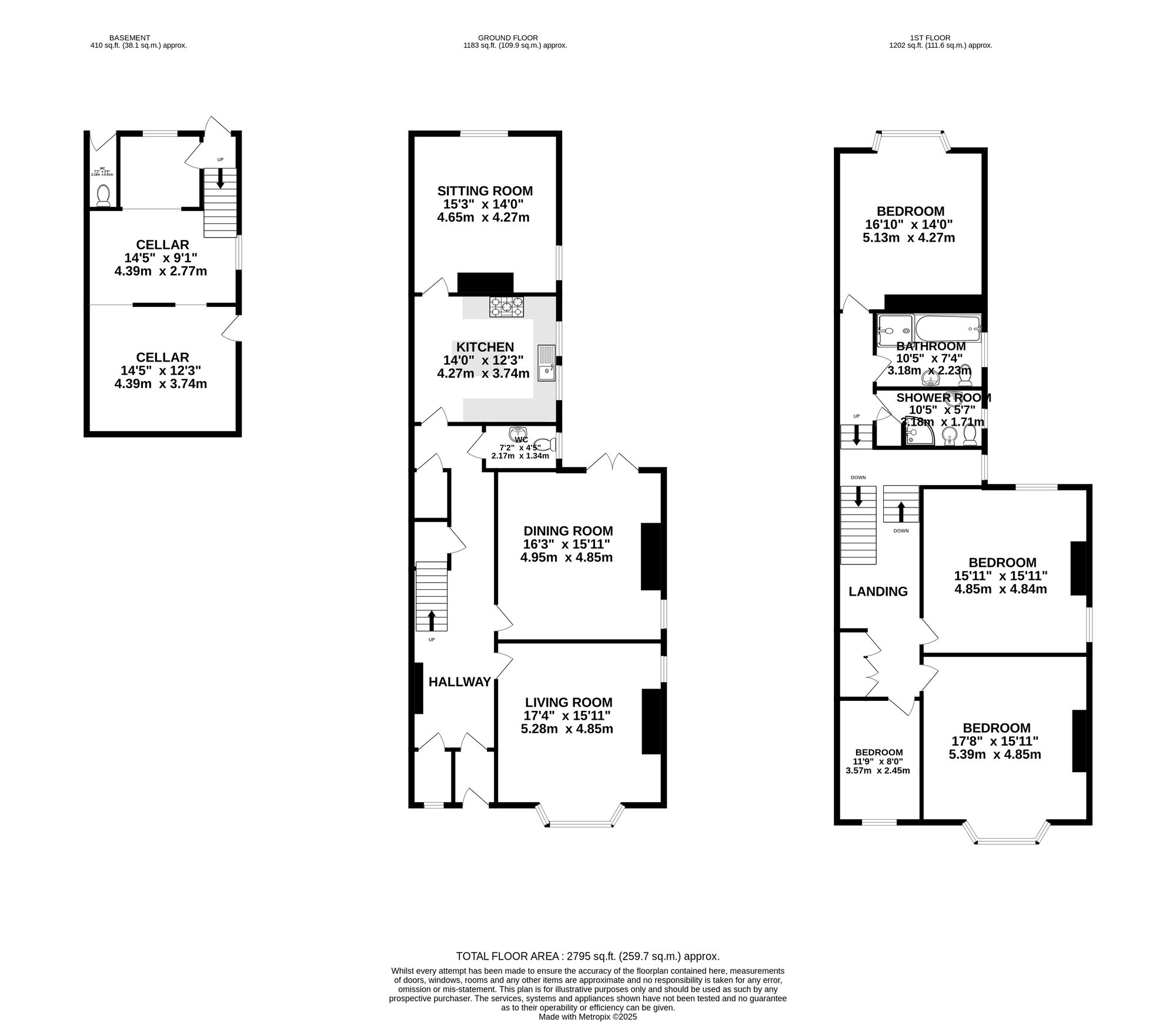
Upon entering the home, you are greeted by a striking and spacious hallway that sets the tone for the rest of the property. High ceilings, intricate cornicing, and beautiful original features are showcased throughout. The hallway offers access to the main living spaces as well as the staircase to the first floor.

To the right is the first of three generous reception rooms – a stylish and elegant living room featuring a large bay window adorned with stained glass, filling the space with natural light. A decorative fireplace provides a focal point, adding warmth and character. Adjacent to this is an equally spacious reception room, currently used as a formal dining area, with patio doors opening directly onto the rear garden – ideal for entertaining in the warmer months.

Towards the rear of the ground floor, the hallway leads past a convenient cloakroom and under-stair storage to the heart of the home – a bright, modern family kitchen. Fitted with a central island and breakfast bar, this impressive space boasts ample cupboard and worktop space, making it both practical and stylish. From the kitchen, you step into the third reception room, a cosy yet versatile space complete with a charming log burner and direct access out to the rear garden. This room also provides access to the property’s basement level – a large and useful area perfect for storage or potential further development.

On the first floor, a grand landing provides access to four well-proportioned bedrooms and two bathrooms. The landing itself features built-in storage, open shelving, and a beautifully preserved stained glass window, in keeping with the home’s traditional character. Three of the bedrooms are spacious doubles, each easily accommodating a king-size bed, while the fourth is a generously sized single room – ideal as a child’s room, guest space, or study. Both bathrooms are finished in a neutral, modern style, each with a WC, hand basin, and walk-in shower; one also benefits from a full-size bathtub.

Outside, the rear garden is perfectly designed for family life and outdoor entertaining. A large patio area offers plenty of space for seating and dining, with steps down to a well-kept lawn bordered by mature trees and hedges that ensure privacy. The garden also provides rear access to the basement level and features a practical outdoor WC.

There is parking to the front of the property secured by gates.

Agents Note: The property is in a conservation area.

Council Tax Band E

All services and mains water are connected to the property.

The broadband internet is provided to the property by Cable, the sellers are subscribed to Virgin. Please visit the Ofcom website to check broadband availability and speeds.

The owner has advised that the level of the mobile signal/coverage at the property is good, they are subscribed to Smarty. Please visit the Ofcom website to check mobile coverage.

Please contact Number One Real Estate for more information or to arrange a viewing.

Important Information

  • This is a Freehold property.
  • This Council Tax band for this property is: E
  • EPC Rating is E

Property Ref: a255ffdc-f4f3-4e7f-b8d8-7251580fe8bb

Share:

Similar Properties

Squires Gate, Rogerstone, NP10

4 Bedroom Detached House | Offers in excess of £375,000

**BEAUTIFULLY PRESENTED**DETACHED FAMILY HOME*FOUR BEDROOMS**PRIMARY EN-SUITE**LIVING ROOM**OPEN PLAN LIVING**LARGE MODE...

Pen-Y-Wal Drive, Llanwern, NP18

3 Bedroom Detached House | Guide Price £375,000

**GUIDE PRICE £375,000 - £400,000**IMMACULATELY PRESENTED**DETACHED**THREE DOUBLE BEDROOMS**PRIMARY EN-SUITE**LIVING ROO...

Backhall Street, Caerleon, NP18

3 Bedroom Terraced House | Guide Price £375,000

**GUIDE PRICE £375,000 - £400,000**BEAUTIFUL COTTAGE**THREE DOUBLE BEDROOMS**OPEN PLAN LIVING**LOG BURNER**STYLISH KITCH...

Heronston Close, Undy, NP26

4 Bedroom Detached House | Guide Price £380,000

GUIDE PRICE £380,000 - £400,000* 4 BEDROOMS* 2 EN-SUITES + 1 BATHROOM* BAY FRONTED LOUNGE* OPEN-PLAN KITCHEN/DINER* BEAU...

Sir Bartholomew Grove, Undy, NP26

4 Bedroom Detached House | Guide Price £380,000

GUIDE PRICE: £380,000 - £390,000**MODERN**SPACIOUS DETACHED FAMILY HOME**FOUR BEDROOMS**OPEN PLAN KITCHEN/DINER**LIVING...

Fields Park Road, Newport, NP20

3 Bedroom Semi-Detached House | Guide Price £380,000

**GUIDE PRICE £380,000 - £400,000**WELL PRESENTED**SPACIOUS SEMI-DETACHED PROPERTY**OPEN PLAN KITCHEN/FAMILY ROOM**UTILI...

Number One Real Estate (Newport)

Newport, Monmouthshire, NP20 4AQ

01633 492777

How much is your home worth?

Use our short form to request a valuation of your property.

Request a Valuation

Mortgage Calculator

Amount Borrowed: £
Total Amount Repayable: £
Total Monthly Payment: £
©2026 The Guild of Property Professionals. All rights reserved. Terms and Conditions | Privacy Policy | Cookie Policy | Complaints Policy | Members Login
The Guild of Property Professionals Trading Address: 121 Park Lane, London W1K 7AG. GPEA Limited. Registered in England & Wales.  Company No: 02819824.  Registered Office Address: 2 St. Stephen's Court, St. Stephen's Road, Bournemouth, Dorset, England, BH2 6LA.  VAT Registration No: 576 8795 61
Book a Property Valuation Update Cookies Preferences