Capel Dewi Hall Road, Newport, NP20

Guide Price
£350,000
SSTC
This property listing is now SSTC

4 Bedroom Detached House for sale in Newport

1 4 2

GUIDE PRICE £350,000 - £375,000

We are delighted to present this four bedroom, detached property for sale in Newport. Well-presented throughout, this family home is positioned in a quiet residential area and located just outside the City Centre - brilliant for anyone who works in the centre of Newport or needs to commute to, Cardiff, Bristol, or London. The train station is a short drive away and there is easy access to the M4 corridor.

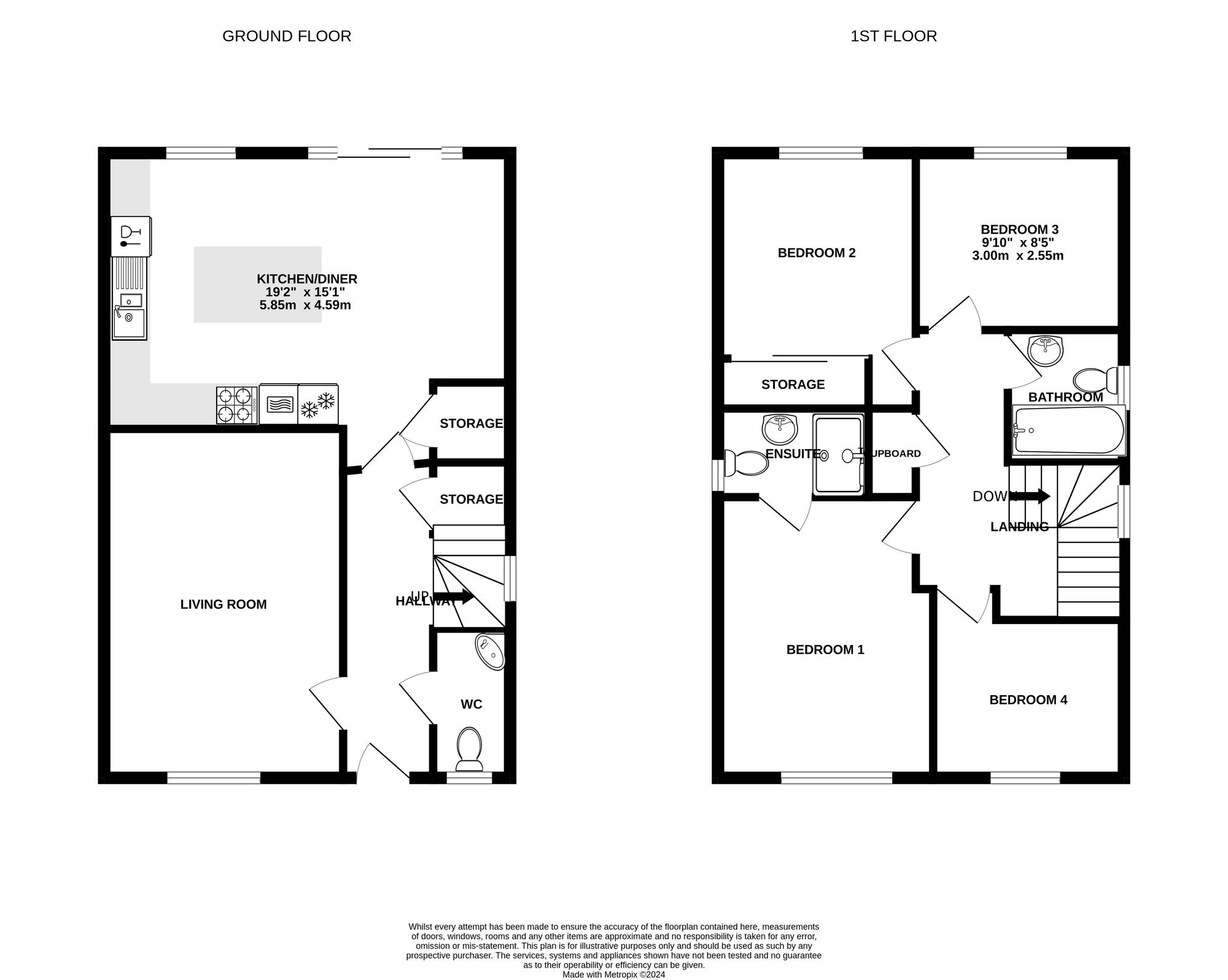
On the ground floor there is a living room to the front of the property and a kitchen/dining room to the rear. The kitchen benefits from a range of wall and base units with a central island. There are integrated appliances to include a double oven, fridge/freezer, dishwasher and four-ring gas hob. Sliding doors open from the dining space to the garden, which is fully enclosed with a patio area directly from the property and low maintenance artificial lawn beyond. A side gate accesses the tandem double driveway, which has an electric charging point, along with a single garage. A storage cupboard from the kitchen provides space for utilities, while a WC can be found from the hallway.

To the first floor there are four bedrooms, three of which are double and the fourth a comfortable single. The principal bedroom benefits from an ensuite shower room, while the family bathroom from the landing has a bath suite.

Annual Site Fee: £80.68

Council Tax Band F

All services and mains water(metered) are connected to the property.

How the broadband internet is provided to the property is unknown, the sellers are subscribed to BT. Please visit the Ofcom website to check broadband availability and speeds.

The owner has advised that the level of the mobile signal/coverage at the property is good, they are subscribed to TalkMobile. Please visit the Ofcom website to check mobile coverage.

Please contact Number One Real Estate for more information or to arrange a viewing.

Important Information

  • This is a Freehold property.
  • This Council Tax band for this property is: F
  • EPC Rating is B

Property Ref: f3b56ec4-e2d9-4de6-9054-9354f9ebccd0

Share:

Similar Properties

Bulmore Road, Caerleon, NP18

2 Bedroom End of Terrace House | £350,000

* NO CHAIN* SPECTACULAR VIEWS* HUGE LIVING ROOM* 2 DOUBLE BEDROOMS WITH ENSUITE BATHROOMS* SPACIOUS KITCHEN* BRIGHT SUNR...

Fields Park Road, Newport, NP20

3 Bedroom Semi-Detached House | Guide Price £350,000

* GUIDE PRICE £350,000 - £370,000 * 3 BEDROOM SEMI DETACHED HOUSE* SPACIOUS LIVING ROOM* OPEN PLAN KITCHEN / DINER* BAY...

Faulkner Road, Newport, NP20

5 Bedroom Terraced House | Guide Price £350,000

£350,000 - £375,000 (Guide Price)* 5 LARGE BEDROOMS* ORIGINAL FEATURES * TALL CEILINGS* HUGE LIVING ROOM / DINER* GRAND...

Kensington Place, Newport, NP19

5 Bedroom Terraced House | £355,000

**END OF TERRACE**FOUR STOREY**EXTENSIVE FAMILY HOME**GARDEN**ON STREET PARKING**FIVE DOUBLE BEDROOMS**TWO RECEPTION ROO...

Gifford Close, Two Locks, NP44

4 Bedroom Detached House | Guide Price £360,000

* GUIDE PRICE £360,000 - £380,000* 4 DOUBLE BEDROOMS* EN-SUITE + FAMILY BATHROOM* NEWLY RENOVATED* BEAUTIFULLY PRESENTED...

Obama Grove, Rogerstone, NP10

3 Bedroom Detached House | Guide Price £360,000

* GUIDE PRICE £360,000 - £380,000* THREE BEDROOMS* LARGE LIVING ROOM* LANDSCAPED GARDEN* HIGH END KITCHEN* CONSERVATORY*...

Number One Real Estate (Newport)

Newport, Monmouthshire, NP20 4AQ

01633 492777

How much is your home worth?

Use our short form to request a valuation of your property.

Request a Valuation

Mortgage Calculator

Amount Borrowed: £
Total Amount Repayable: £
Total Monthly Payment: £
©2026 The Guild of Property Professionals. All rights reserved. Terms and Conditions | Privacy Policy | Cookie Policy | Complaints Policy | Members Login
The Guild of Property Professionals Trading Address: 121 Park Lane, London W1K 7AG. GPEA Limited. Registered in England & Wales.  Company No: 02819824.  Registered Office Address: 2 St. Stephen's Court, St. Stephen's Road, Bournemouth, Dorset, England, BH2 6LA.  VAT Registration No: 576 8795 61
Book a Property Valuation Update Cookies Preferences