Bassaleg Road, Newport, NP20

Guide Price
£475,000
SSTC
This property listing is now SSTC

5 Bedroom Semi-Detached House for sale in Newport

2 5 3

GUIDE PRICE £475,000-£500,000

Number One Agent Harrison Cole is delighted to present this five bedroom, semi-detached house for sale in Newport.

Situated on Bassaleg Road in Newport, this extended five-bedroom semi-detached property enjoys a highly desirable location within one of the city’s most sought-after residential areas. Bassaleg Road offers excellent access to a wide array of amenities, including shops, cafés, supermarkets and leisure facilities, while Newport city centre is only a short distance away. The area is very popular with families thanks to its proximity to well-regarded schools, including Bassaleg School, one of the region’s most respected secondary schools. Beautiful green spaces such as Tredegar Park and Belle Vue Park are easily reached, providing attractive outdoor recreation options. Commuters benefit from superb transport links, with convenient access to the M4 at Junctions 27 and 28, as well as regular bus routes and rail services from Newport Railway Station.

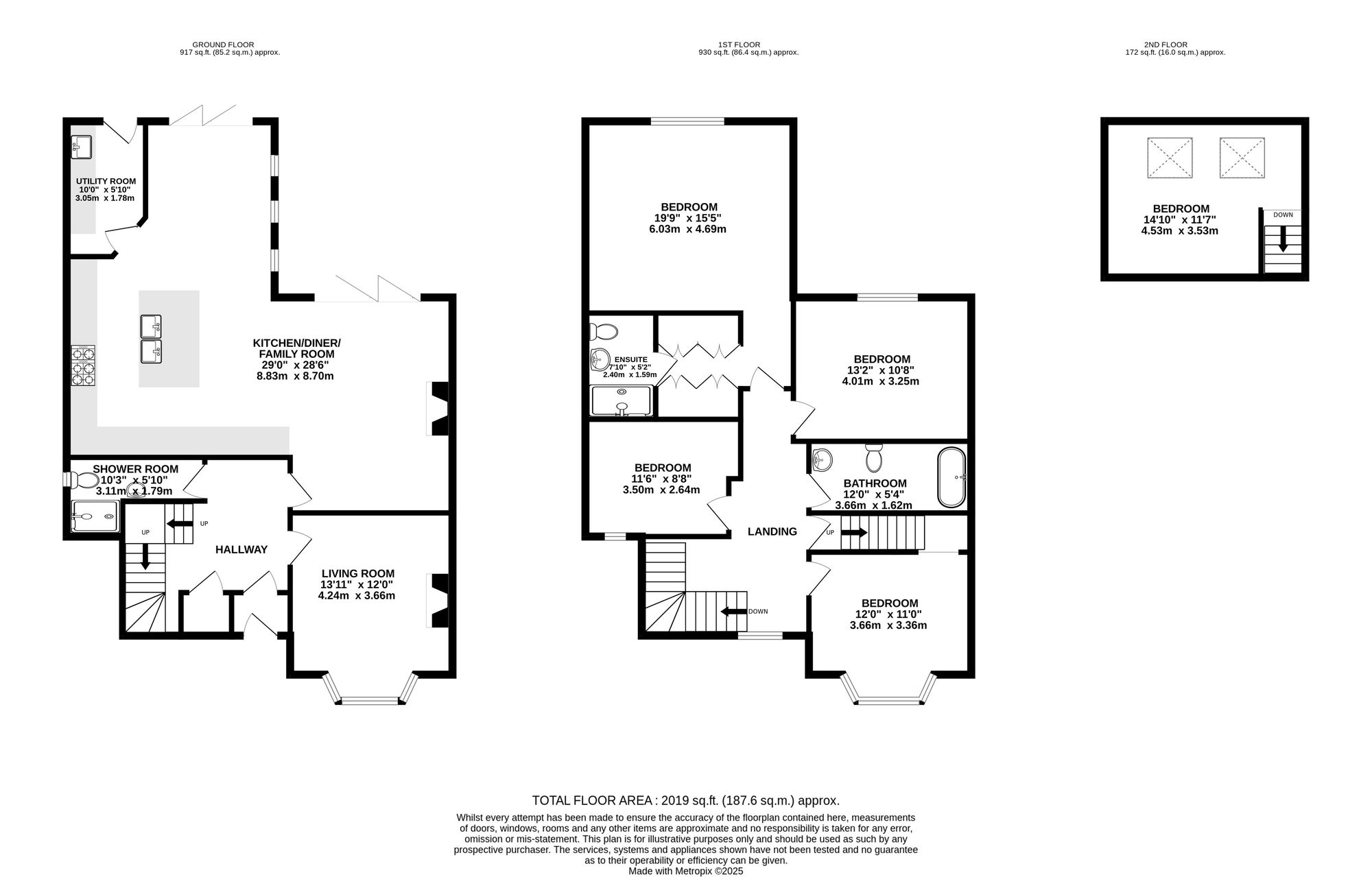
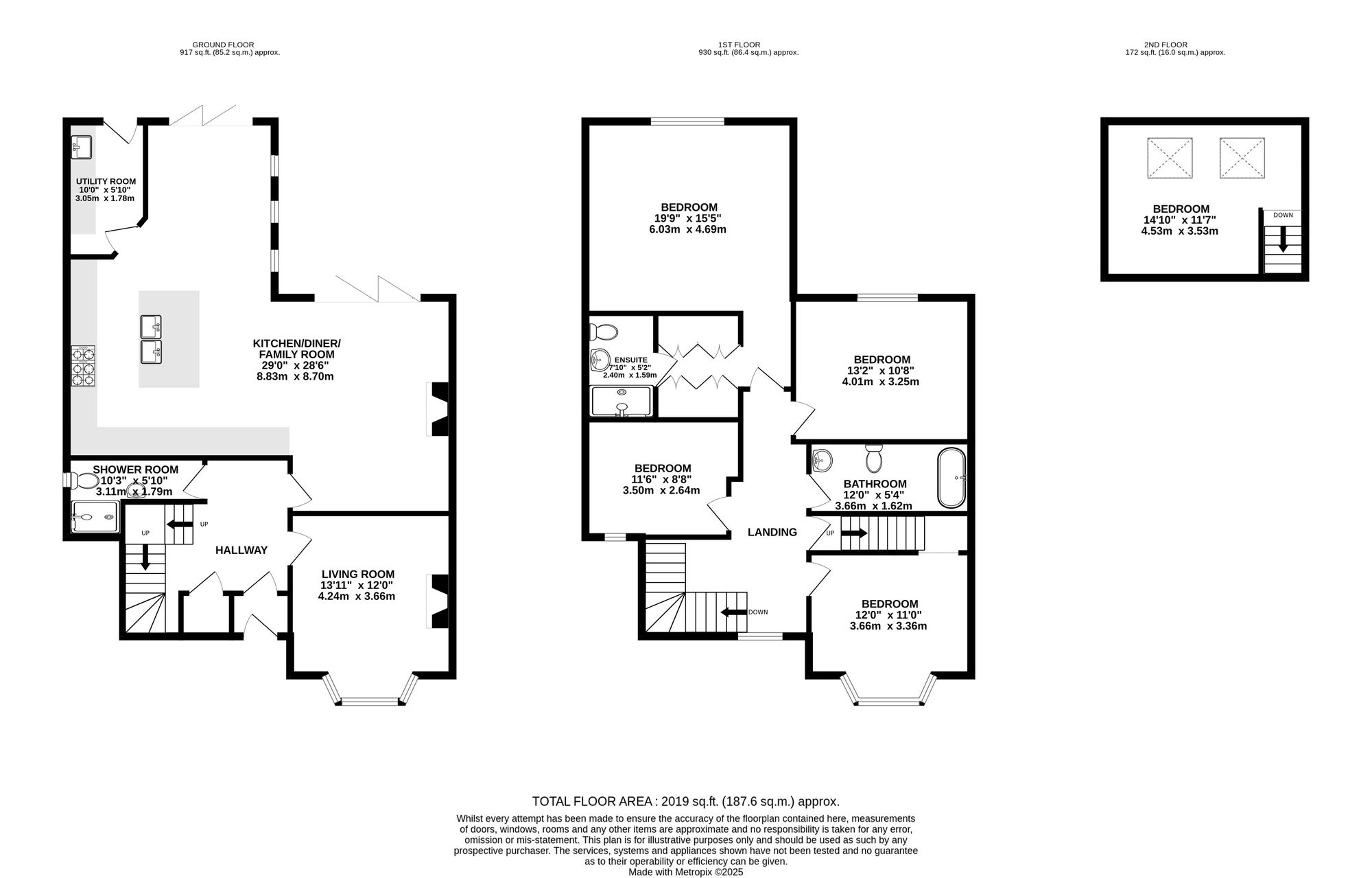
Upon entering the property, you are welcomed into a spacious hallway featuring attractive flooring and providing access to the main living areas, a contemporary ground-floor shower room and the staircase to the first floor. Overlooking the front of the home is a private sitting room with a charming bay window, offering an inviting and peaceful retreat. To the rear, the property opens into an impressive open-plan kitchen and family room. This expansive space features a large, modern fitted kitchen complete with a central island and breakfast bar, alongside ample room for seating and dining. Two sets of bi-fold doors flood the room with natural light and create a seamless connection to the rear garden, while a feature log burner adds warmth and character.

The first-floor landing leads to four generously sized double bedrooms, each beautifully presented. The primary bedroom benefits from built-in wardrobes and its own en-suite shower room. A modern family bathroom serves the remaining bedrooms. Completing the accommodation is the converted loft space, which provides a spacious fifth bedroom - ideal for guests, older children or use as a home office.

Externally, the property boasts excellent outdoor space and parking. To the front, a large gated driveway offers ample off-road parking and enhances privacy. The rear garden has been designed for low-maintenance modern living, featuring a stylish composite decking area perfect for outdoor dining and entertaining, as well as an artificial lawn that provides year-round greenery with minimal upkeep.

Council Tax Band E

All services and mains water (metered) are connected to the property.

The broadband internet is provided to the property by cable, the sellers are subscribed to Virgin Media. Please visit the Ofcom website to check broadband availability and speeds.

The owner has advised that the level of the mobile signal/coverage at the property is good. Please visit the Ofcom website to check mobile coverage.

Please contact Number One Real Estate for more information or to arrange a viewing.

Important Information

  • This is a Freehold property.
  • This Council Tax band for this property is: E
  • EPC Rating is D

Property Ref: 47ce5f44-d39e-42b3-8746-cff2576e2cfe

Share:

Similar Properties

Oakfield Road, Newport, NP20

6 Bedroom Semi-Detached House | Guide Price £475,000

*GUIDE PRICE £475,000 - £500,000*SPACIOUS SEMI-DETACHED PROPERTY*ORIGINAL FEATURES THROUGHOUT*SIX BEDROOMS*TWO RECEPTION...

Bala Drive, Rogerstone, NP10

4 Bedroom Detached House | Guide Price £475,000

* GUIDE PRICE £475,000 - £500,000* DETACHED FAMILY HOME* FOUR BEDROOMS* ENSUITE* SLEEK FAMILY BATHROOM* BEAUTIFULLY PRES...

Broadleaf Way, Newport, NP20

5 Bedroom Detached House | Guide Price £475,000

*GUIDE PRICE £475,000 - £500,000*EXECUTIVE DETACHED FAMILY HOME*FIVE DOUBLE BEDROOMS*PRIMARY EN-SUITE*TWO BATHROOMS AND...

Tresillian Place, Rogerstone, NP10

5 Bedroom Detached House | Guide Price £485,000

* GUIDE PRICE £485,000 - £500,000* FIVE DOUBLE BEDROOMS* TWO ENSUITE BATHROOMS* LARGE LIVING ROOM* BRIGHT DINING ROOM* L...

Fields Road, Newport, NP20

4 Bedroom Semi-Detached House | Offers in excess of £500,000

**BEAUTIFULLY PRESENTED**SEMI-DETACHED**FOUR BEDROOMS**ORIGINAL FEATURES**OPEN PLAN KITCHEN/DINER**LOUNGE/DINER**SITTING...

The Hawthorns, Caerleon, NP18

4 Bedroom Detached House | Guide Price £500,000

GUIDE PRICE £500,000 - £525,000**DETACHED**FOUR BEDROOMS**TWO JACK AND JILL BATHROOMS**DOWNSTAIRS WC**UTILITY**STUDY**GA...

Number One Real Estate (Newport)

Newport, Monmouthshire, NP20 4AQ

01633 492777

How much is your home worth?

Use our short form to request a valuation of your property.

Request a Valuation

Mortgage Calculator

Amount Borrowed: £
Total Amount Repayable: £
Total Monthly Payment: £
©2026 The Guild of Property Professionals. All rights reserved. Terms and Conditions | Privacy Policy | Cookie Policy | Complaints Policy | Members Login
The Guild of Property Professionals Trading Address: 121 Park Lane, London W1K 7AG. GPEA Limited. Registered in England & Wales.  Company No: 02819824.  Registered Office Address: 2 St. Stephen's Court, St. Stephen's Road, Bournemouth, Dorset, England, BH2 6LA.  VAT Registration No: 576 8795 61
Book a Property Valuation Update Cookies Preferences