Allt-Yr-Yn Close, Newport, NP20

£450,000

3 Bedroom Detached House for sale in Newport

1 3 2

This deceptively spacious three-bedroom detached property is located on Allt-Yr-Yn Close in Newport, a highly sought-after and elevated residential area known for its peaceful surroundings and attractive views. The property is conveniently positioned for Newport city centre, which offers a wide range of shops, supermarkets, cafés, restaurants and leisure facilities, including Friars Walk shopping centre. The area is also well served by well-regarded primary and secondary schools, making it ideal for families. For commuters, there is excellent access to the M4 motorway, providing direct links to Cardiff, Bristol and beyond, while Newport railway station offers regular rail services. Nearby parks, woodland walks and scenic viewpoints, along with the historic village of Caerleon, further enhance the appeal of this desirable location.

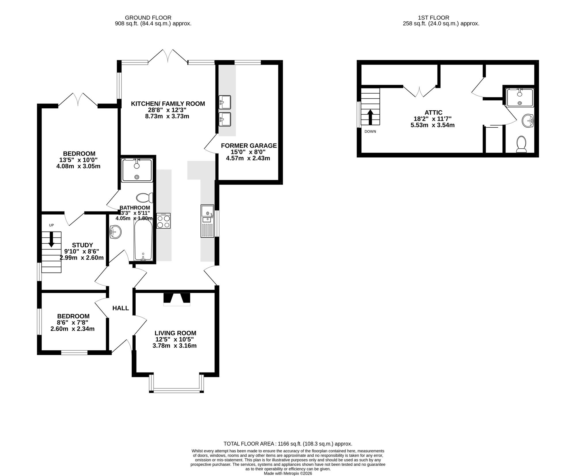
You enter the property through the hallway, which provides access to several of the ground floor rooms. To the right is the lounge, a charming space featuring a bay-fronted window, feature fireplace and exposed beam ceilings, creating a warm and characterful setting. Across the hall is one of the bedrooms, currently utilised as a home office, offering flexibility for a variety of uses. To the rear is the spacious fitted kitchen, which opens out into a living area with ample room for both seating and dining, forming a sociable and practical hub of the home. From here there is access to the former garage, adding further convenience. Also accessed from the hallway is a large bathroom, fitted with both a bath and separate shower, along with a hall space that leads to a double bedroom with patio doors opening out to the rear garden. As you ascend to the upper level of the property, you will discover a spacious additional bedroom situated in the attic. This inviting room is complemented by a private en-suite bathroom, providing both privacy and convenience.

To the front of the property is a large driveway, providing ample off-road parking along with a decorative front garden enhancing the kerb appeal. To the rear is a beautifully maintained garden, featuring a combination of seating areas, lawn space and an array of decorative flowers, plants and trees, creating a peaceful and attractive outdoor space ideal for relaxing and entertaining.

Agents notes:

The property has been altered (rear extension that houses the kitchen/family room and bathroom and garage conversion) and the owner does not hold building regulation/approval documents for any works carried out.

The current owner has advised that the attic room and en-suite are part of the original build and therefore we have not been able to ascertain the status of the bedroom in the attic. Whilst we have mentioned 3 bedrooms and 2 bathrooms, this includes the accommodation in the attic.

Interested parties should make their own enquiries and discuss this with their solicitor and lender before committing to any transactional decision.

Council Tax Band E

All services and mains water (metered) are connected to the property.

The broadband internet is provided to the property by Cable, the sellers are subscribed to Virgin Media. Please visit the Ofcom website to check broadband availability and speeds.

The owner has advised that the level of the mobile signal/coverage at the property is good, they are subscribed to Three. Please visit the Ofcom website to check mobile coverage.

Please contact us for more information or to arrange a viewing.

Important Information

  • This is a Freehold property.
  • This Council Tax band for this property is: E
  • EPC Rating is E

Property Ref: f465c0c1-769d-414d-963d-5273ca9d0a18

Share:

Similar Properties

The Maltings, Llantarnam, NP44

4 Bedroom Detached House | Guide Price £450,000

GUIDE PRICE: £450,000 - £475,000**BEAUTIFULLY PRESENTED**DETACHED FAMILY HOME**FOUR BEDROOMS**PRIMARY EN-SUITE**LIVING R...

Woodlands Drive, Malpas, NP20

4 Bedroom Detached House | £450,000

GUIDE PRICE: £450,000 - £475,000**NO ONWARD CHAIN**SPACIOUS DETACHED PROPERTY**FOUR LARGE DOUBLE BEDROOMS**THREE RECEPTI...

Gardens View Close, Cross Keys, NP11

4 Bedroom Detached House | Guide Price £450,000

**GUIDE PRICE £450,000 - £475,000**SPACIOUS DETACHED FAMILY HOME**FOUR BEDROOMS**PRIMARY EN-SUITE**LIVING ROOM**OPEN PLA...

Foil Close, Rogerstone, NP10

4 Bedroom Detached House | £465,000

* GUIDE PRICE £465,000 - £485,000* 4 DOUBLE BEDROOMS* 2 EN-SUITES + FAMILY BATHROOM* LARGE KITCHEN / DINER* LOW MAINTENA...

Sunnybank Road, Griffithstown, NP4

4 Bedroom Detached House | Guide Price £475,000

GUIDE PRICE: £450,000 - £475,000**EXTENDED DETACHED PROPERTY**FOUR BEDROOMS**FOUR BATHROOMS**LIVING ROOM**OPEN PLAN KITC...

Bala Drive, Rogerstone, NP10

4 Bedroom Detached House | Guide Price £475,000

* GUIDE PRICE £475,000 - £500,000* DETACHED FAMILY HOME* FOUR BEDROOMS* ENSUITE* SLEEK FAMILY BATHROOM* BEAUTIFULLY PRES...

Number One Real Estate (Newport)

Newport, Monmouthshire, NP20 4AQ

01633 492777

How much is your home worth?

Use our short form to request a valuation of your property.

Request a Valuation

Mortgage Calculator

Amount Borrowed: £
Total Amount Repayable: £
Total Monthly Payment: £
©2026 The Guild of Property Professionals. All rights reserved. Terms and Conditions | Privacy Policy | Cookie Policy | Complaints Policy | Members Login
The Guild of Property Professionals Trading Address: 121 Park Lane, London W1K 7AG. GPEA Limited. Registered in England & Wales.  Company No: 02819824.  Registered Office Address: 2 St. Stephen's Court, St. Stephen's Road, Bournemouth, Dorset, England, BH2 6LA.  VAT Registration No: 576 8795 61
Book a Property Valuation Update Cookies Preferences