Curie Close, Newport, NP20

Guide Price
£160,000
SSTC
This property listing is now SSTC

3 Bedroom Semi-Detached House for sale in Newport

1 3 1

GUIDE PRICE: £160,000 - £170,000

Number One Agent, Scott Gwyer is delighted to offer this three bedroom, semi-detached property for sale in Newport.

Presenting this three-bedroom semi-detached property located on the quiet and popular Curie Close in Newport, offered to the market with no onward chain. Set in a convenient residential area, the property enjoys close proximity to a range of local amenities including supermarkets, retail parks, and leisure facilities. Well-regarded primary and secondary schools are nearby, making this an ideal choice for families. Excellent road links provide easy access to the M4 motorway, facilitating quick travel to Cardiff, Bristol and beyond, while public transport options are readily available with bus routes and Newport railway station a short distance away. The location also benefits from nearby green spaces and local attractions such as Tredegar House and Belle Vue Park.

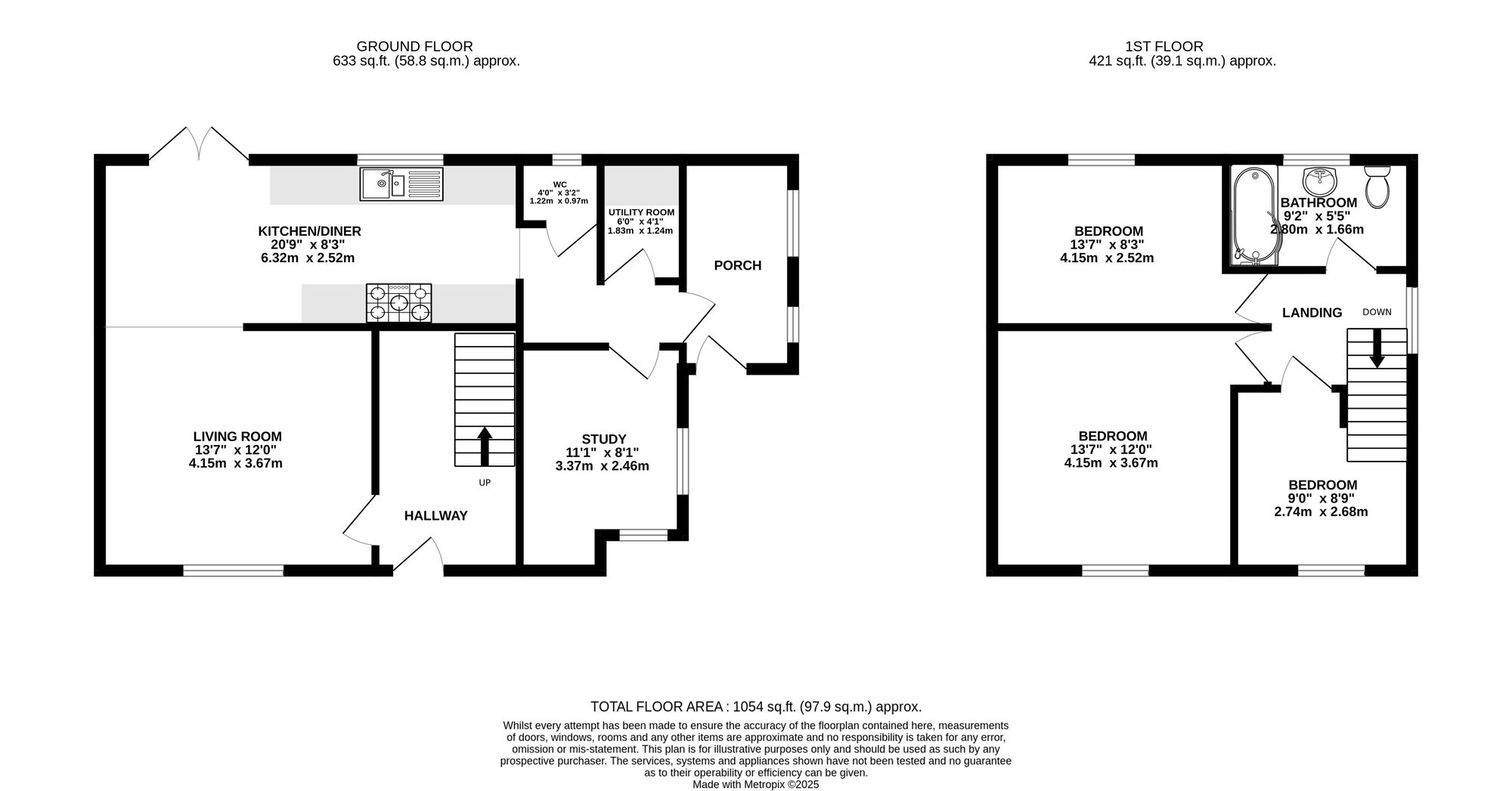
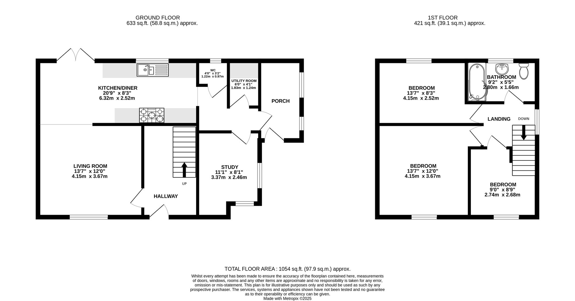
On the ground floor, the property welcomes you into a hallway leading through to a spacious main living area. The generous lounge features a large window to the front, creating a bright and airy space, and is laid out in an open plan style with the kitchen/diner at the rear. The kitchen offers ample worktop and cupboard space, along with patio doors opening out to the garden, further enhancing the flow of natural light. Off the kitchen is access to several additional and highly practical spaces, including a cloakroom, a utility area, and a side porch/storage area providing further flexibility for everyday use. There is also an additional reception room to the front of the property, ideal for use as a home office, study, or playroom.

The first floor comprises three well-proportioned bedrooms and the family bathroom. There are two spacious double bedrooms, both offering ample space for wardrobes and bedroom furniture, along with a single bedroom that could also function as a nursery or office space. The family bathroom is fitted with a three-piece suite including bath with overhead shower, wash basin, and WC.

To the rear of the property is a generously sized enclosed garden, perfect for families and those who enjoy outdoor living. The space is ideal for entertaining, featuring plenty of room for outdoor seating and dining areas. The garden offers great potential to be landscaped to individual taste. To the front, there is potential for driveway parking (subject to relevant permissions) and a low-maintenance garden area.

Agents note: Please note the property is Non-standard construction (Steel Frame) and may be subject to limited mortgage lenders.

Agents note: The property has been altered for which building regulation or approval documents have not been made available (extension).

Council Tax Band: C

How the broadband internet is provided to the property is unknow. Please visit the Ofcom website to check broadband availability and speeds.

The owner has advised that the level of the mobile signal/coverage at the property is good. Please visit the Ofcom website to check mobile coverage.

All services and mains water are connected to the property.

Please contact Number One Real Estate for more information or to arrange a viewing.

Energy Efficiency Current: 70.0
Energy Efficiency Potential: 80.0

Important Information

  • This is a Freehold property.
  • This Council Tax band for this property is: C

Property Ref: 9283922d-7811-4d63-a181-998c78a9b6d0

Share:

Similar Properties

Clevedon Road, Clevedon House, NP19

2 Bedroom Flat | Guide Price £160,000

* GUIDE PRICE £160,000 - £170,000 * FIRST FLOOR FLAT * WELL PRESENTED * TWO DOUBLE BEDROOMS * COMMUNAL GARDENS * ALLOCAT...

Woodland Road, Newport, NP19

3 Bedroom Terraced House | Guide Price £160,000

* GUIDE PRICE £160,000 - £170,000 * 3 BEDROOMS * BRIGHT RECEPTION ROOMS * PRACTICAL KITCHEN * GREAT STORAGE * ENCLOSED R...

Copper Dome Mews, The Da Vinci, NP19

2 Bedroom Flat | Guide Price £160,000

**GUIDE PRICE £160,000 - £180,000**NO CHAIN**IMMACULATELY PRESENTED AND TURN KEY**UPPER FLOOR APARTMENT**TWO DOUBLE BEDR...

Waun Bant Road, Kenfig Hill, CF33

3 Bedroom Semi-Detached House | Guide Price £165,000

* GUIDE PRICE: £165,000 - £175,000 * THREE BEDROOMS * SPACIOUS LIVING ROOM & DINER * BRIGHT KITCHEN * LOW MAINTENANCE PA...

Mount Street, Abergavenny, NP7

2 Bedroom Terraced House | Guide Price £165,000

*GUIDE PRICE £210,000 - £220,000*SPACIOUS END TERRACE**TWO DOUBLE BEDROOMS**LOUNGE/DINER**KITCHEN/BREAKFAST ROOM**UTILIT...

Prince Street, Newport, NP19

3 Bedroom Terraced House | Guide Price £165,000

**GUIDE PRICE £165,000 - £175,000**BEAUTIFULLY PRESENTED**MID TERRACE**THREE BEDROOMS**OPEN PLAN LOUNGE/DINER**LARGE MOD...

Number One Real Estate (Newport)

Newport, Monmouthshire, NP20 4AQ

01633 492777

How much is your home worth?

Use our short form to request a valuation of your property.

Request a Valuation

Mortgage Calculator

Amount Borrowed: £
Total Amount Repayable: £
Total Monthly Payment: £
©2025 The Guild of Property Professionals. All rights reserved. Terms and Conditions | Privacy Policy | Cookie Policy | Complaints Policy | Members Login
The Guild of Property Professionals Trading Address: 121 Park Lane, London W1K 7AG. GPEA Limited. Registered in England & Wales.  Company No: 02819824.  Registered Office Address: 2 St. Stephen's Court, St. Stephen's Road, Bournemouth, Dorset, England, BH2 6LA.  VAT Registration No: 576 8795 61
Book a Property Valuation Update Cookies Preferences