Churchtown, St. Newlyn East

Guide Price
£275,000
SSTC
This property listing is now SSTC

2 Bedroom End of Terrace House for sale in Newquay

2 2 1
  • END TERRACE
  • CHARACTER PROPERTY
  • TWO DOUBLE BEDROOMS
  • OFF ROAD PARKING
  • KITCHEN/DINING ROOM
  • CLOSE TO NORTH COAST
  • SITTING ROOM
  • VILLAGE LOCATION
  • BATHROOM
  • VIEWING ESSENTIAL

END TERRACE CHARACTER HOUSE IN POPULAR VILLAGE

This end-terraced property is situated in the highly desirable village of St. Newlyn East. Immaculately presented and boasting period features including feature fireplace with wood burning stove and exposed ceiling beams.

In all, the accommodation includes; sitting room, kitchen/dining room, two double bedrooms and a bathroom. There is a front garden and off road parking.

Viewing highly recommended.

EPC - F. Freehold. Council Tax - B.

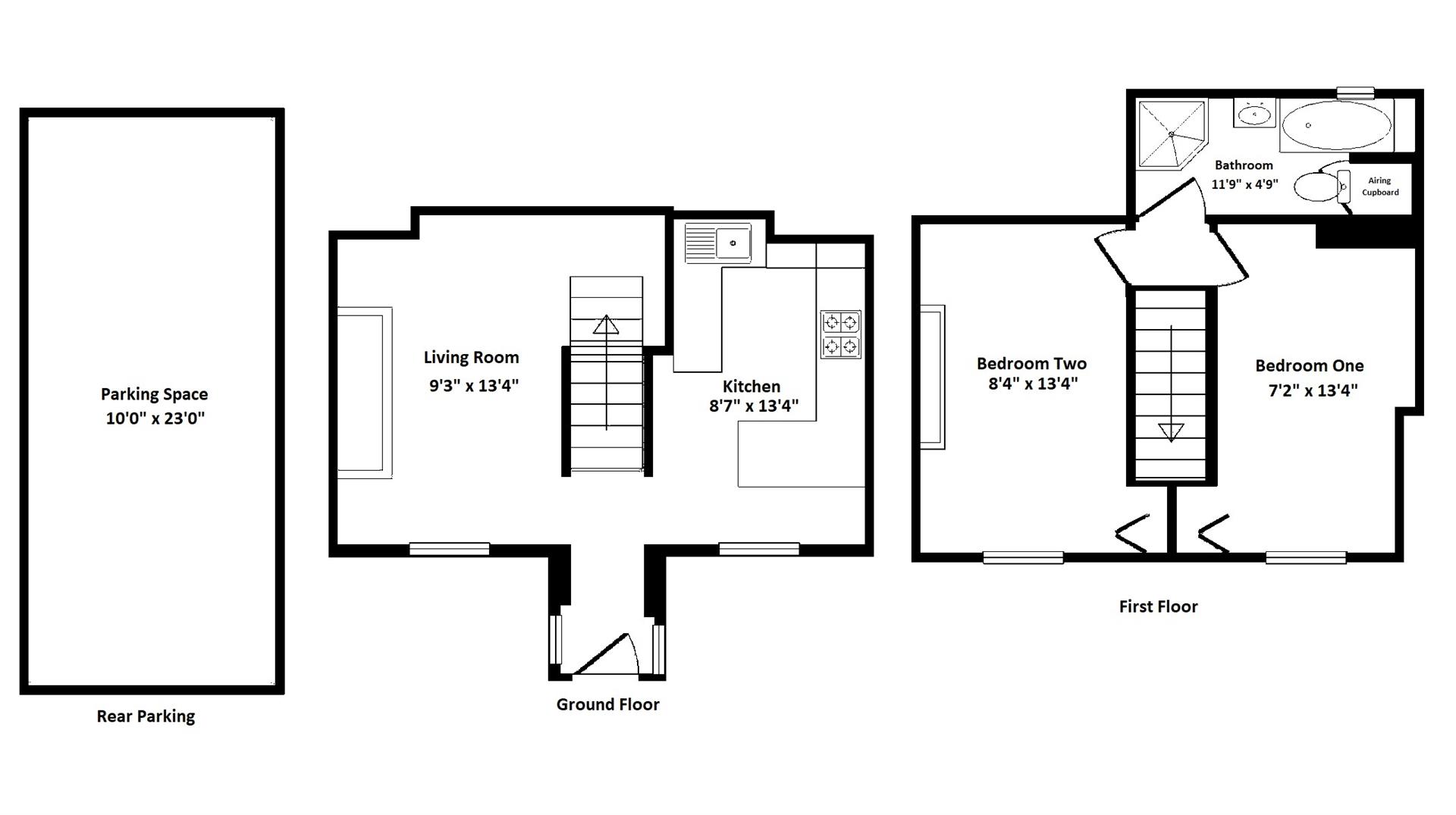
The Property - 11 Churchtown is a newly renovated two bedroom character cottage situated in the popular village of St Newlyn East. The dwelling has many charming features including vaulted ceiling beams and a wood burning stove, whilst being situated in the heart of the village, close to amenities on offer. The accommodation includes; front porch, kitchen/dining room and sitting room to the ground floor with two double bedrooms and a bathroom with bath and a separate shower to the first floor. There is a front garden laid to gravel for low maintenance, which provides an outdoor seating area with off road parking for one vehicle to the rear.

Location - St. Newlyn East village has an excellent range of facilities including village shop, post office, primary school, public house, butcher/delicatessen, and cricket club. Newquay and the north Cornish coast is approximately six miles and the A30 is slightly closer for quick commuting throughout the county. The beaches on the North Coast including Holywell Bay and Crantock are within a ten minute drive, whilst the surfing hub of Newquay and cathedral city of Truro are within five and nine miles.

In greater detail the accommodation comprises (all measurements are approximate):

Ground Floor -

Entrance Porch -

Sitting Room - 4.06m x 2.82m (13'3" x 9'3") - Window to front. Feature fireplace with wood burning stove. WiFi enabled heating.

Kitchen/Dining Room - 4.06m x 2.62m (13'3" x 8'7") - Comprising a range of base and eye level units with worktops over and tiled walls. Inset sink and drainer, integrated oven with hob and extractor fan over. Space for fridge/freezer with plumbing for dishwasher and washing machine. Breakfast bar. Window to front.

First Floor -

Landing -

Bedroom - 4.06m x 2.18m (13'3" x 7'1") - Vaulted ceiling beams and window to front. WiFi enabled heating. Storage cupboards.

Bedroom - 4.06m x 2.54m (13'3" x 8'3") - Vaulted ceiling beams and window to front. WiFi enabled heating. Storage cupboards.

Bathroom - 3.58m x 1.45m (11'8" x 4'9") - Comprising bath, shower cubicle, hand wash basin and low level w.c. Obscured window to rear, heated towel rail and extractor fan.

Outside - There is a cottage style garden to the front of the property that provides space for outdoor dining and seating; as well as a wood store.

There is also an off road parking space just a short distance from the property. Shed space for bikes and surfboards etc available by separate agreement with neighbour.

Please Note - There is a flying freehold within the property whereby a small section of the bathroom is situated over the neighbouring dwelling at the rear.

Services - Mains water, electric and drainage. Heating via efficient WiFi enabling electric heating.

N.B - The electrical circuit, appliances and heating system have not been tested by the agents.

Tenure - Freehold.

Council Tax - B.

Directions - Proceed out of Truro in a northerly direction on the A39 and at Carland Cross roundabout take the left hand turning onto the A30 signposted to Redruth. After approximately two miles take the right hand turning signposted to Goonhavern and after a short distance turn right signposted to St. Newlyn East. Proceed into the village and pass the primary school until you reach the crossroads and turn right and then immediately left and the property can be found on the left hand side.

Viewing - Strictly by Appointment through the Agents Philip Martin, 9 Cathedral Lane, Truro, TR1 2QS. Telephone: 01872 242244 or 3 Quayside Arcade, St. Mawes, Truro TR2 5DT. Telephone 01326 270008.

Data Protection - We treat all data confidentially and with the utmost care and respect. If you do not wish your personal details to be used by us for any specific purpose, then you can unsubscribe or change your communication preferences and contact methods at any time by informing us either by email or in writing at our offices in Truro or St Mawes.

Property Ref: 858996_34196896

Share:

Similar Properties

Hillcrest Avenue, Truro

3 Bedroom Semi-Detached House | Guide Price £275,000

THREE BEDROOM SEMI DETACHED HOUSE IN QUIET CUL-DE-SACThis well proportioned three bedroom semi-detached property is loca...

Parcandowr Gardens, Grampound Road

3 Bedroom Semi-Detached House | Guide Price £275,000

MODERN THREE BEDROOM SEMI DETACHED HOUSESituated in a popular residential development in an excellent village midway bet...

Cullen View, Probus

3 Bedroom Terraced House | Guide Price £275,000

MODERN TERRACED HOUSE WITH GARAGE AND GARDENSLocated in the heart of Probus and within a short walk of the excellent vil...

PENVENTINNIE, TRURO

Farm House | Guide Price £285,000

A RARE OPPORTUNITY FOR A CONVERSION PROJECT ON THE EDGE OF THE CITYA former Tractor Shed having Class Q consent for conv...

Higher Polsue Way, Tresilian

3 Bedroom Semi-Detached House | Guide Price £285,000

SEMI DETACHED HOUSE ENJOYING WONDERFUL RURAL AND WATER VIEWSThis three bedroom semi detached property is situated in an...

Fore Street, Probus

3 Bedroom End of Terrace House | Guide Price £285,000

MODERN END TERRACE HOUSE SITUATED IN POPULAR VILLAGEThis three bedroom end of terrace house is situated in the heart of...

Philip Martin (Truro)

Truro, Cornwall, TR1 2QS

01872 242244

How much is your home worth?

Use our short form to request a valuation of your property.

Request a Valuation

Mortgage Calculator

Amount Borrowed: £
Total Amount Repayable: £
Total Monthly Payment: £
©2025 The Guild of Property Professionals. All rights reserved. Terms and Conditions | Privacy Policy | Cookie Policy | Complaints Policy | Members Login
The Guild of Property Professionals Trading Address: 121 Park Lane, London W1K 7AG. GPEA Limited. Registered in England & Wales.  Company No: 02819824.  Registered Office Address: 2 St. Stephen's Court, St. Stephen's Road, Bournemouth, Dorset, England, BH2 6LA.  VAT Registration No: 576 8795 61
Book a Property Valuation Update Cookies Preferences