St. Andrews Drive, Ballyhalbert, Newtownards

Offers in region of
£269,950
SSTC
This property listing is now SSTC

4 Bedroom Detached House for sale in Newtownards

2 4 2

Located in a cul-de-sac within this popular coastal development here is an ideal opportunity to purchase an attractive red brick detached family home built late 2017 which is extremely well presented throughout leaving little left to do but move in and enjoy. The accommodation is bright, spacious and flexible comprising good sized living room with cast iron wood burning stove and superb open plan kitchen with range of integrated appliances and island unit to casual dining/family area with French doors leading out to the rear garden. Upstairs this fine home is further enhanced by having four well proportioned bedrooms, including main bedroom with en suite shower room, and a family bathroom with four piece suite to include bath and separate shower with a spacious landing/reading area Outside there is a front garden in lawns, driveway in attractive brick paviour with parking and fantastic fully enclosed easily maintained rear garden with extensive paved patio terrace barbecue area, artificial lawns and good sized shed with light and power, potential to be used as games room or bar. Other benefits include oil fired central heating, uPVC double glazed windows, guttering and soffits, downstairs WC, utility room and pressurised water system. Demand is anticipated to be high and to a wide range of prospective purchasers. A viewing is thoroughly recommended at your earliest opportunity so as to appreciate it in its entirety.

.Outstanding Detached Red Brick Family Home
.Cul-de-Sac Position Within Popular Coastal Development
.Well Presented Throughout Leaving Little Left to Do but Move in and Enjoy
.Good Sized Living Room with Cast Iron Wood Burning Stove
.Superb Modern Fitted Kitchen Open Plan to Casual Dining and Family Area with uPVC Double Glazed French Doors onto the Rear Garden
.Kitchen Also Has Range of Integrated Appliances and an Island Unit
.Separate Utility Room
.Four Well Proportioned Bedrooms Including Main Bedroom with En Suite Shower Room
.Family Bathroom with Four Piece Suite to Include Bath and Separate Shower
.Additional Downstairs WC
.Oil Fired Central Heating
.uPVC Double Glazed Windows, Guttering and Soffits
.Front Garden in Lawns
.Driveway in Attractive Brick Paviour with Parking
.Fantastic Fully Enclosed Easily Maintained Rear Garden with Extensive Paved Patio Barbecue Terrace, Artificial Grass and Shed
.Shed with Light and Power and Could Be Used as a Games Room or Bar
.Demand Anticipated to be High and to a Wide Range of Prospective Purchasers
.Easy Access to Ballywalter, Portaferry, Kircubbin, Greyabbey and Donaghadee
.Demand Anticipated to be High and to a Wide Range of Prospective Purchasers
.Early Viewing Essential

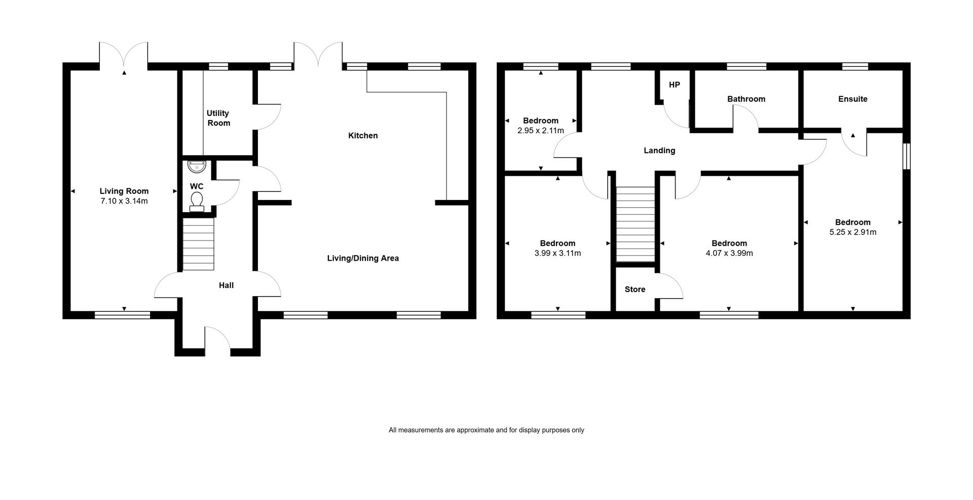
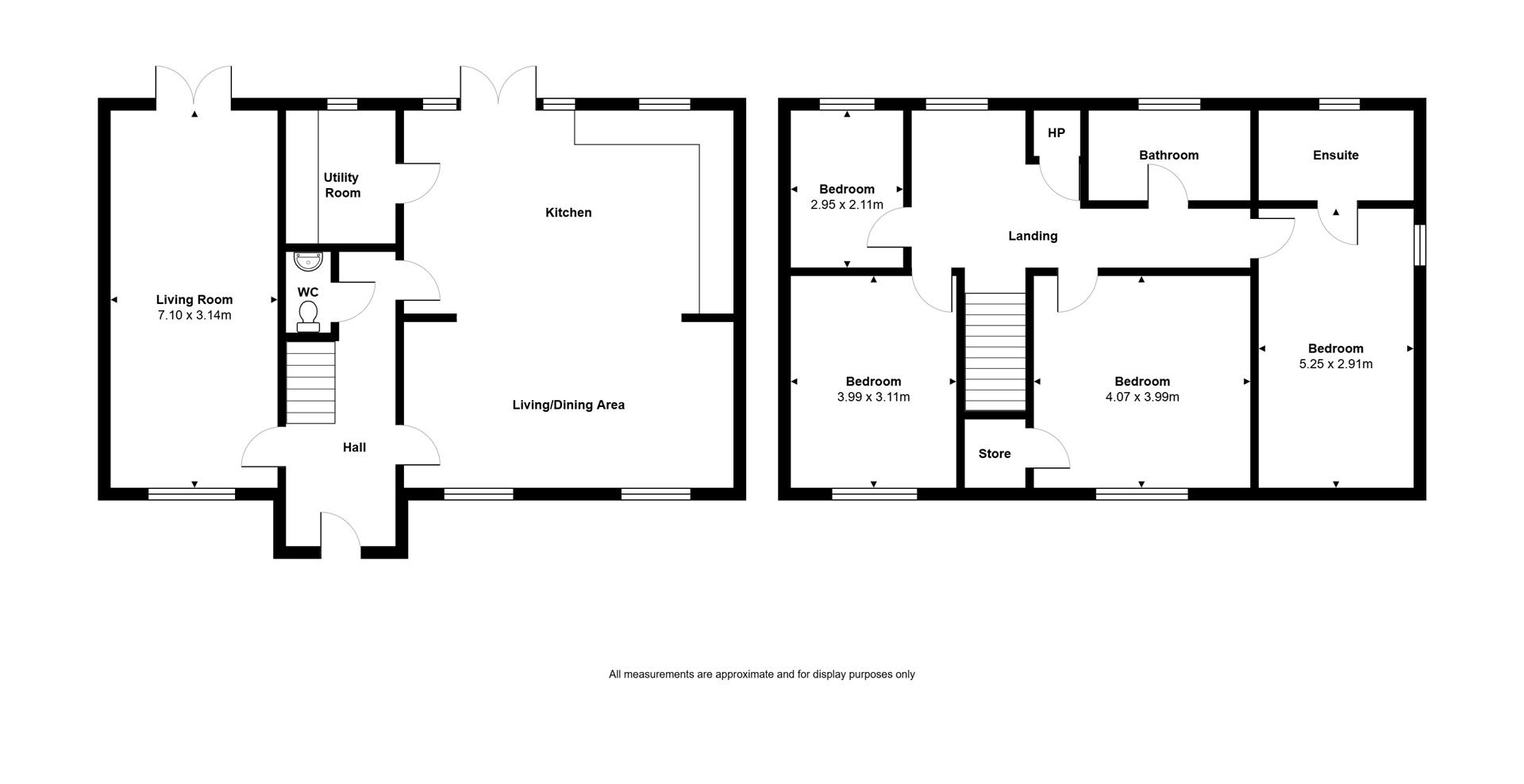
Ground Floor -

Entrance - uPVC double glazed front door with uPVC double glazed side panel and over panel to reception hall.

Reception Hall - Fully tiled floor.

Downstairs Wc - Two piece white suite comprising low flush WC, pedestal wash hand basin, mixer tap, fully tiled floor, part tiled walls, extractor fan.

Living Room - 23'8" x 10'8" - at widest points Fireplace with cast iron wood burning stove, granite hearth, laminate wood effect floor, uPVC double glazed French doors to rear garden.

Superb Kitchen Open To Casual Dining/Family Area - 23'8" x 20'8" - at widest points Range of high and low level Shaker style units, granite effect work surfaces, single bowl single drainer stainless steel sink unit with mixer tap, integrated four ring induction hob, splashback, extractor fan above, integrated oven, integrated microwave, integrated fridge freezer, plumbed for dishwasher, island unit with additional storage, breakfast bar, fully tiled floor throughout

Utility Room - Storage cupboard, granite effect work surfaces, plumbed for washing machine, space for tumble dryer and/or freezer , built-in shelving, fully tiled floor, extractor fan

Stairs To First Floor -

First Floor -

Landing - Large spacious landing to accommodate a reading /potential office area with shelved airing cupboard with pressurised water system.

Bedroom One - 13'8" x 13'6" - Access to roofspace, storage cupboard.

Bedroom Three - 13'4" x 10'8" - at widest points

Bedroom Four - 10' x 7'1" - at widest points Currently used as dressing room, with built-in shelving and dressing table.

Bathroom - Four piece suite comprising panelled bath with mixer tap and hand shower, separate shower cubicle, floating wash hand basin, mixer tap, low flush WC, chrome heated towel rail, fully tiled floor, part tiled walls, extractor fan.

Outside - Front garden in lawns, driveway in attractive brick paviour with double parking, easily maintained fully enclosed rear garden, artificial grass, large storage shed with light and power, oil fired boiler in boiler house, uPVC oil tank, outside tap

Ballyhalbert, a quaint village nestled on the Ards Peninsula. It offers stunning views of the Irish Sea, a picturesque harbour and serene beaches. Its tranquil setting and rich heritage make Ballyhalbert a hidden gem.

Property Ref: 44457_34312105

Share:

Similar Properties

Main Street, Carrowdore, NEWTOWNARDS, BT22 2HW

4 Bedroom Detached House | Offers in region of £269,950

Located in the popular town of Carrowdore here is an ideal opportunity to purchase an outstanding detached family home w...

133 Main Street

4 Bedroom Detached House | Offers in region of £269,950

Located in the popular town of Carrowdore here is an ideal opportunity to purchase an outstanding detached family home w...

39 Millisle Road

4 Bedroom End of Terrace House | Offers in region of £269,950

Located in the extremely popular and picturesque coastal town of Donaghadee here is an ideal opportunity to purchase a f...

Regent Park, North Road, Newtwonards, BT23

3 Bedroom Detached House | Asking Price £270,000

Sitting proudly on the northernmost tip of the rolling Strangford Lough landscape, Regent Park is another prestigious me...

Sandhurst Park, Ballyholme, Bangor, BT20 5NU

2 Bedroom Apartment | Offers in region of £278,000

Accessed via its own front door this fantastic ground floor apartment is conveniently positioned right in the heart of t...

Galloway Point, DONAGHADEE, BT21 0ES

3 Bedroom Detached House | Offers in region of £279,950

Located in a cul-de-sac within this popular residential area here is an ideal opportunity to purchase an attractive deta...

John Minnis Estate Agents (Donaghadee)

Donaghadee, County Down, BT21 0AG

028 9188 8881

How much is your home worth?

Use our short form to request a valuation of your property.

Request a Valuation

Mortgage Calculator

Amount Borrowed: £
Total Amount Repayable: £
Total Monthly Payment: £
©2026 The Guild of Property Professionals. All rights reserved. Terms and Conditions | Privacy Policy | Cookie Policy | Complaints Policy | Members Login
The Guild of Property Professionals Trading Address: 121 Park Lane, London W1K 7AG. GPEA Limited. Registered in England & Wales.  Company No: 02819824.  Registered Office Address: 2 St. Stephen's Court, St. Stephen's Road, Bournemouth, Dorset, England, BH2 6LA.  VAT Registration No: 576 8795 61
Book a Property Valuation Update Cookies Preferences