3 Ballygelagh Road

Offers in region of
£379,950
SSTC
This property listing is now SSTC

4 Bedroom Detached House for sale in Newtownards

3 4
  • Outstanding Detached Family Home Constructed Circa 2007 With No Onward Chain
  • Well Presented Throughout Leaving Little Left to Do but Move Your Furniture in and Enjoy
  • Versatile and Flexible Accommodation
  • Spacious Reception Hall with Feature Vaulted Ceiling
  • Living Room with Solid Oak Floor, Range of Built-in Cabinetry and Cast Iron Wood Burning Stove with Attractive Brick Surround in Recess
  • Superb Modern Fitted Kitchen with Casual Dining/Family Area and Quartz Work Surfaces
  • Separate Utility Room
  • Five Well Proportioned Bedrooms, Three of Which are on the Ground Floor
  • One of the Ground Floor Bedrooms Could be Another Reception Room if Required
  • Main Bedroom with En Suite Shower Room and Built-in Wardrobe

Tucked away down a long private driveway here is an ideal opportunity to purchase an attractive recently constructed detached modern home. Constructed in 2007 this fabulous property is finished to an exceptional standard throughout leaving little left to do but move your furniture in and enjoy. It has been cleverly designed and thought out resulting in a tremendous flow of natural light and versatile and flexible accommodation which results in a range of different layouts to suit the needs of the home owners.
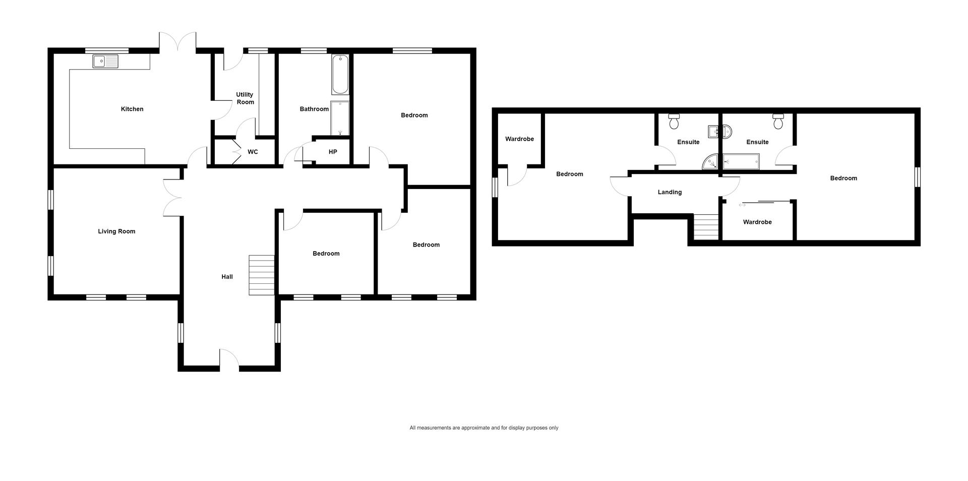
As viewers enter the property they will notice the spacious reception hall with feature vaulted ceiling. A living room which is accessed off the reception hall via French doors has a solid oak floor, range of built-in cabinetry and cast iron wood burning stove with attractive brick surround and recess. A superb modern fitted kitchen with casual dining/family area provides an excellent space for modern family day living and is complimented by quartz work surfaces. There are also three bedrooms, one of which could be another reception room if required, and a bathroom with four piece suite to include bath and separate shower, on the ground floor. Upstairs this fine home is further enhanced by having two well proportioned bedrooms, both with en suite shower rooms. The main bedroom also has a built-in wardrobe and bedroom two has a walk-in wardrobe.
Outside does not disappoint either. There is a front garden in lawns with plants, trees and shrubs, extensive driveway and forecourt and parking area, with hard standing with space for cars, caravans, boats, horse boxes and numerous other vehicles, which leads to a large garage and workshop. There is also a stable and rear garden in lawns with an excellent degree of privacy. Other benefits include oil fired central heating, double glazed windows, solar panels for the water, utility room, Beam vacuum system and additional downstairs WC.
This property is conveniently positioned with easy access to Portaferry, Cloughey

Ground Floor - () - Double glazed front door with double glazed side panels to spacious reception hall.

Spacious Reception Hall: - () - Fully tiled floor, feature vaulted ceiling.

Living Room: - (4.75m x 4.95m) - at widest points
French doors with glazed and bevelled insets from reception hall, cast iron wood burning stove, brick surround and recess, wooden sleeper mantel, solid oak floor, range of built-in cabinetry to include cupboards and shelving.

Superb Modern Fitted Kitchen With Casual Dining/Fa - (6.07m x 4.24m) - at widest points
Range of high and low level units, quartz work surface, large sink unit with mixer tap, matching quartz drainer, space for cooker range, splashback, extractor fan above, plumbed for ice dispensing fridge freezer, integrated dishwasher, fully tiled floor, double glazed French doors to outside.

Utility Room: - () - Storage cupboards, granite effect work surfaces, one and a half bowl single drainer stainless steel sink unit with mixer tap, plumbed for washing machine, space for tumble dryer, integrated fridge freezer, fully tiled floor, double glazed door to outside.

Downstairs Wc: - () - With low flush WC, fully tiled floor.

Bedroom (3): - (4.98m x 4.52m) - at widest points
Laminate wood effect floor.

Bedroom (4): - (3.61m x 3.23m) - plus wardrobe space
Laminate wood effect floor, range of built-in wardrobes with mirror fronted sliding doors.

Bedroom (5): - (3.63m x 3.23m) - Laminate wood effect floor.

Bathroom: - () - Four piece suite comprising tiled panelled bath with mixer tap and hand shower, separate walk-in shower cubicle, floating wash hand basin, mixer tap, low flush WC, fully tiled floor, fully tiled walls, extractor fan, shelved airing cupboard.

Landing: - () -

Bedroom (1): - (4.9m x 4.5m) - Built-in wardrobe with mirror fronted sliding doors, storage in eaves.

Ensuite Shower Room: - () - Three piece suite comprising built-in shower cubicle, pedestal wash hand basin, low flush WC, shelving, laminate wood effect floor, extractor fan.

Bedroom (2): - (5m x 4.9m) - at widest points
Walk-in wardrobe, storage in eaves.

Ensuite Shower Room:. - () - Three piece comprising built-in shower cubicle, low flush WC, wash hand basin with mixer tap, storage beneath, laminate wood effect floor, extractor fan.

Outside - () - Front garden in lawns with plants, trees and shrubs, extensive driveway, forecourt and parking area in hard standing with space for cars, caravans, boats, horse boxes and numerous other vehicles leading to garage and workshop.

Garage And Workshop: - (10.11m x 7.24m) - at widest points
Two doors, one large roller door, power, light.

Outside. - () - One stable, rear garden in lawns, oil fired boiler in boiler house, uPVC oil tank to the side, outside tap, excellent degree of privacy.

Property Ref: 44457_34011576

Share:

Similar Properties

Ballygelagh Road, Kircubbin, Newtownards, BT22 1JQ

4 Bedroom Detached House | Offers in region of £379,950

Tucked away down a long private driveway here is an ideal opportunity to purchase an attractive recently constructed det...

Hadmore Heights, Old Belfast Road, Newtownards, BT23 4YU

5 Bedroom Detached House | Offers in region of £379,950

Located just off the highly prestigious and regarded Old Belfast Road, Newtownards, here is an ideal opportunity to purc...

Coniston Road, BANGOR, BT20 4QQ

4 Bedroom Detached House | Offers in region of £379,950

Nestled in a peaceful cul-de-sac within one of Bangor’s most prestigious and sought-after residential areas, 4 Coniston...

3 Regency Park

4 Bedroom Detached House | Offers in region of £389,950

Occupying a cul-de-sac position within this extremely popular and highly sought after small residential development here...

Beverley Hills, BANGOR, BT20 4NA

4 Bedroom Detached House | Offers in region of £389,950

Located in this extremely popular residential area here is an ideal opportunity to purchase a detached property with cha...

Regency Park, BANGOR, BT19 6WX

4 Bedroom Detached House | Offers in region of £389,950

Occupying a cul-de-sac position within this extremely popular and highly sought after small residential development here...

John Minnis Estate Agents (Donaghadee)

Donaghadee, County Down, BT21 0AG

028 9188 8881

How much is your home worth?

Use our short form to request a valuation of your property.

Request a Valuation

Mortgage Calculator

Amount Borrowed: £
Total Amount Repayable: £
Total Monthly Payment: £
©2025 The Guild of Property Professionals. All rights reserved. Terms and Conditions | Privacy Policy | Cookie Policy | Complaints Policy | Members Login
The Guild of Property Professionals Trading Address: 121 Park Lane, London W1K 7AG. GPEA Limited. Registered in England & Wales.  Company No: 02819824.  Registered Office Address: 2 St. Stephen's Court, St. Stephen's Road, Bournemouth, Dorset, England, BH2 6LA.  VAT Registration No: 576 8795 61
Book a Property Valuation Update Cookies Preferences