13 Beech Drive

Offers Over
£149,950
SSTC
This property listing is now SSTC

3 Bedroom Terraced House for sale in NEWTOWNARDS

1 3 1
  • Immaculately presented mid-terrace home, nestled in one of the most highly sought-after and established residential areas
  • Stunning Views of Scrabo Tower, Strangford Lough and Beyond
  • Ideally located, just a stone's throw from Newtownards town centre, with easy access to top-rated schools, shops, restaurants, and local amenities
  • Fully modernised throughout to an exceptional standard, blending contemporary style with everyday functionality
  • Three generously sized bedrooms, each featuring integrated storage, providing plenty of space for family living, home offices, or guests
  • Bright and spacious lounge with a fabulous stone archway
  • Open-plan custom-fitted kitchen that has been crafted to a high specification, with a stylish dining area perfect for hosting gatherings and creating cherished family memories
  • Large utility room, providing an abundance of storage and organisational space
  • Beautifully maintained front and rear gardens, including a paved outdoor area with a built-in BBQ, ideal for alfresco dining and entertaining during warm evenings
  • Phoenix Gas Heating

John Minnis Estate Agents is delighted to present 13 Beech Drive, this charming home, perfectly combines comfort, space, and an enviable location in one of the most highly sought-after and established residential areas in Newtownards. The property boasts a spacious and well-proportioned living room, providing a cosy and inviting space to relax and unwind after a long day. The room is complemented by a fabulous painted stone archway, adding character and charm to the space. The separate bespoke kitchen and dining area has been thoughtfully designed with a functional layout, offering plenty of room for meal preparation and family dining. The open-plan custom-fitted kitchen has been crafted to the highest specifications, making it the ideal space for both cooking and entertaining.
Upstairs, the home features three generously sized bedrooms, each with integrated storage, offering plenty of room for family living, home offices, or guest accommodation. The family bathroom is bright, modern, and well-appointed, perfectly blending style and practicality for everyday use.
Both the front and rear of the property are fully paved, providing low-maintenance outdoor areas. The rear space includes a built-in BBQ, ideal for alfresco dining and entertaining.
Situated in a prime elevated position, the home offers woodland views at the front as well as stunning panoramic vistas of Scrabo Tower. Located just a stone's throw from Newtownards town centre, the property is surrounded by local amenities, including leading schools, shops, restaurants, and excellent transport links.
With gas heating, uPVC double glazing, and excellent on-street parking, this home blends modern comfort and practicality. Whether you're a first-time buyer, a growing family, or an investor, this property offers an ideal opportunity for modern living in a desirable location. Early viewing is highly recommended, as homes like this rarely stay on the market for long.

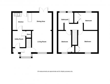
Entrance Hall: - () - Bright welcoming entrance porch with wood laminate flooring

Living Room: - (3.6m x 3.2m) - Wood laminate flooring with a feature painted stone archway.

Kitchen With Breakfast Area : - (6.4m x 2.7m) - Modern range of high and low level units, laminate work surface, double stainless steel sink with built in drainer and mixer tap, space for cooker, integrated extractor fan, space for dining, part tiled walls, space for dining table.

Utility Room: - (2.0m x 2.6m) - Large utility room with space for fridge, washing machine and tumble drier. Tiled flooring.

Landing: - () - Access to roof space

Bedroom (1): - (3.2m x 3.5m) - Double room with laminate oak flooring, views of Scrabo Tower and Strangfor Lough and built-in storage.

Bedroom (2): - (3.7m x 2.1m) - Double room with laminate oak flooring, views of Scrabo Tower and Strangfor Lough and built-in storage.

Bedroom (3): - (3.8m x 2.8m) - Double room with laminate oak flooring and built-in storage.

Bathroom: - (2.5m x 1.8m) - White suite comprising of a bath, pedestal wash hand basin, low flush wall hung wc and tiled effect walls. With the addition of a fully enclosed tiled shower cubicle.

Outside - () - Front: paved area.

Rear: paved entertaining area, fully enclosed with bespoke BBQ area and raised floorbeds.

Property Ref: 34011513

Share:

Similar Properties

23 Birch Park

4 Bedroom Semi-Detached House | Offers in region of £149,950

Conveniently located off the Rathgael Road this extended four bedroom semi detached home occupies a prime site within a...

Site North of 27a Newtownards Road

Plot | Offers in region of £149,950

Located on the outskirts of the popular and picturesque coastal town of Donaghadee here is an ideal opportunity to purch...

Ballymacruise Park, Millisle, Newtownards

2 Bedroom Semi-Detached Bungalow | Offers in region of £144,950

This is a rare and unique opportunity to purchase an exceptional end terrace bungalow property with fantastic aspect to...

26 Ballyvester Grove

3 Bedroom Terraced House | Offers in region of £150,000

This extended mid-terrace property offers beautifully presented accommodation finished to a high standard throughout, cr...

20 Birch Crescent

3 Bedroom Semi-Detached House | Offers in region of £159,950

Tucked away in this popular small residential development here is an ideal opportunity to purchase an attractive extende...

16 Birch Crescent

3 Bedroom Semi-Detached House | Offers in region of £159,950

Located within a small popular development within the picturesque coastal town of Ballyhalbert this is an ideal opportun...

John Minnis Estate Agents (Donaghadee)

Donaghadee, County Down, BT21 0AG

028 9188 8881

How much is your home worth?

Use our short form to request a valuation of your property.

Request a Valuation

Mortgage Calculator

Amount Borrowed: £
Total Amount Repayable: £
Total Monthly Payment: £
©2026 The Guild of Property Professionals. All rights reserved. Terms and Conditions | Privacy Policy | Cookie Policy | Complaints Policy | Members Login
The Guild of Property Professionals Trading Address: 121 Park Lane, London W1K 7AG. GPEA Limited. Registered in England & Wales.  Company No: 02819824.  Registered Office Address: 2 St. Stephen's Court, St. Stephen's Road, Bournemouth, Dorset, England, BH2 6LA.  VAT Registration No: 576 8795 61
Book a Property Valuation Update Cookies Preferences