Sand Pit Lane, Alkborough, North Lincolnshire, DN15

£220,000

4 Bedroom Plot for sale in North Lincolnshire

2 4 3
  • A SUPERB RESIDENTIAL BUILDING PLOT
  • EXCELLENT OPPORTUNITY TO BUILD YOUR DREAM HOME
  • HIGHLY DESIRABLE PRIVATE VILLAGE SETTING
  • PA/2023/144
  • PLANNING PERMISSION FOR A STYLISH DETACHED HOUSE
  • RIVER HUMBER VIEWS
  • VIEWING IS ESSENTIAL

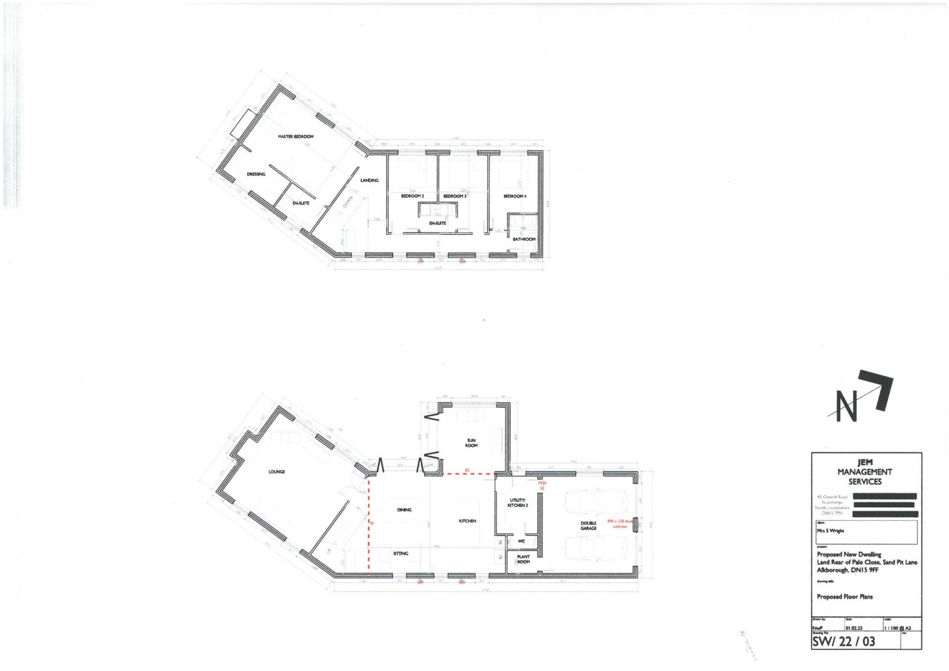
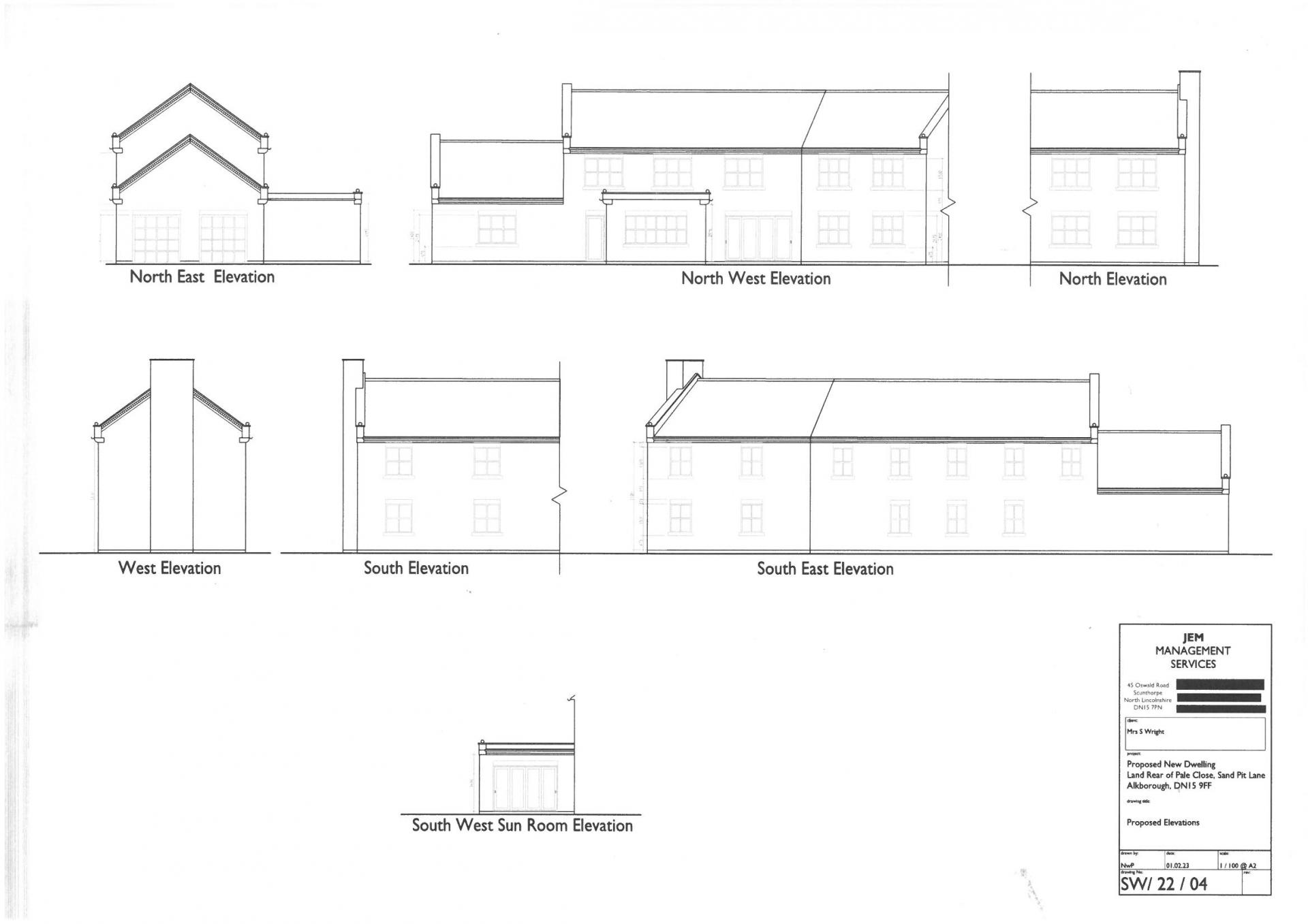
** PA/2023/144 ** FANTASTIC RESIDENTIAL BUILDING PLOT ** A rare opportunity to purchase a substantial private residential building plot situated within the highly desirable semi-rural village of Alkborough enjoying excellent River Humber views. Benefitting from planning permission to erect a new detached dwelling, including demolition of the existing barn, on land to the rear of Pale Close, Sandpit Lane. The contemporary house design is ideal for a modern family or professional couple with accommodation to comprise, a large central open plan living/dining kitchen leading to a sun room and fine main living room, spacious utility room and cloakroom. The first floor provides 4 double bedrooms with a feature master bedroom suite benefitting from a large dressing room and en-suite bathroom, a 'jack & jill' ensuite to bedrooms 2 and 3 and a main family bathroom. The property sits within surrounding private gardens with a substantial driveway allowing excellent parking with direct access to an integral double garage. Viewing of the site comes with the agents highest of recommendations. View via our Brigg office.

** PA/2023/144 ** FANTASTIC RESIDENTIAL BUILDING PLOT ** A rare opportunity to purchase a substantial private residential building plot situated within the highly desirable semi-rural village of Alkborough enjoying excellent River Humber views. Benefitting from planning permission to erect a new detached dwelling, including demolition of the existing barn, on land to the rear of Pale Close, Sandpit Lane. The contemporary house design is ideal for a modern family or professional couple with accommodation to comprise, a large central open plan living/dining kitchen leading to a sun room and fine main living room, spacious utility room and cloakroom. The first floor provides 4 double bedrooms with a feature master bedroom suite benefitting from a large dressing room and en-suite bathroom, a 'jack & jill' ensuite to bedrooms 2 and 3 and a main family bathroom. The property sits within surrounding private gardens with a substantial driveway allowing excellent parking with direct access to an integral double garage. Viewing of the site comes with the agents highest of recommendations. View via our Brigg office.

Important Information

  • This is a Freehold property.

Property Ref: 567685_PFA230808

Share:

Similar Properties

Horstead Avenue Brigg

2 Bedroom Detached House | Asking Price £220,000

** ONLY 4 PLOTS REMAINING** EXCLUSIVE NEW DEVELOPMENT ** PLOT 15 ** A fantastic opportunity to purchase a stylish brand-...

Cormac Close, Brigg, Lincolnshire, DN20

2 Bedroom Apartment | £220,000

** NEWLY BUILT DETACHED BUNGALOW ** IDEAL DOWNSIZE ** A fantastic opportunity to purchase a stylish newly built detached...

Cormac Close Brigg

2 Bedroom Detached Bungalow | Asking Price £220,000

** NEWLY BUILT DETACHED BUNGALOW ** IDEAL DOWNSIZE ** A fantastic opportunity to purchase a stylish newly built detached...

High Street, Broughton, Brigg, Lincolnshire, DN20

3 Bedroom Apartment | £225,000

** DECEPTIVELY SPACIOUS & VERSATILE ACCOMMODATION ** GENEROUS PRIVATE GARDENS ** A fine traditional detached bungalow si...

High Street Broughton

3 Bedroom Detached Bungalow | £225,000

** DECEPTIVELY SPACIOUS & VERSATILE ACCOMMODATION ** GENEROUS PRIVATE GARDENS ** A fine traditional detached bungalow si...

Town Hill, Broughton, Brigg, Lincolnshire, DN20

2 Bedroom Apartment | £225,000

** NO UPWARD CHAIN ** IDEAL DOWNSIZE ** POPULAR RESIDENTIAL AREA ** An attractive modern detached bungalow, situated in...

Paul Fox (Brigg)

Brigg, Brigg, Lincolnshire, DN20 8ES

01652 651777

How much is your home worth?

Use our short form to request a valuation of your property.

Request a Valuation

Mortgage Calculator

Amount Borrowed: £
Total Amount Repayable: £
Total Monthly Payment: £
©2025 The Guild of Property Professionals. All rights reserved. Terms and Conditions | Privacy Policy | Cookie Policy | Complaints Policy | Members Login
The Guild of Property Professionals Trading Address: 121 Park Lane, London W1K 7AG. GPEA Limited. Registered in England & Wales.  Company No: 02819824.  Registered Office Address: 2 St. Stephen's Court, St. Stephen's Road, Bournemouth, Dorset, England, BH2 6LA.  VAT Registration No: 576 8795 61
Book a Property Valuation Update Cookies Preferences