Weston-super-Mare, North Somerset, BS23, 1DD

Asking Price
£350,000

3 Bedroom Semi-Detached House for sale in North Somerset

1 3 2
  • A lovely three/four-bedroom, semi-detached, freehold dwelling
  • Multiple reception rooms allowing flexible living spaces
  • A period property retaining characterful features and charm
  • Private and enclosed rear garden
  • Well situated in Weston-super-Mare, within reach of the sea front, local amenities & key travel routes
  • Ideal for family buyers seeking a wonderful home
  • EPC Rating: C74 | Council Tax Band: C

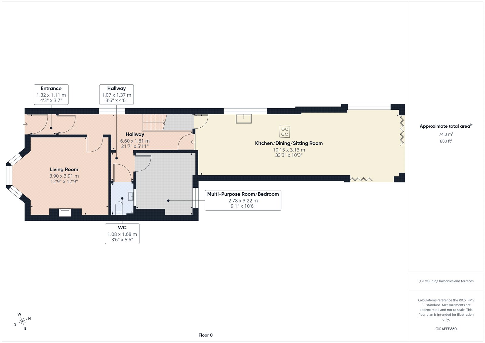
This delightful three/four-bedroom semi-detached freehold home offers versatile accommodation ideally suited to modern family living, with charming characterful features throughout.

Inside, a welcoming hallway with period-style features leads to a cosy living room with exposed hardwood flooring, brick fireplace, and a bright bay window. A flexible additional room offers use as a home office, playroom, or fourth bedroom, alongside a ground floor cloakroom.

To the rear, the impressive open-plan kitchen, dining, and sitting area is perfect for entertaining, featuring underfloor heating, integrated appliances, a breakfast bar, skylights, and bi-fold doors opening onto the garden. A useful cellar provides additional storage and houses utilities.

Externally, the property benefits from private front and rear gardens, with the rear offering artificial lawn, patio and decking areas, ideal for outdoor living, along with mature planting and useful power access.

Ideally positioned in Weston-super-Mare, it is within easy reach of the seafront, local amenities, and key transport links, making it a highly convenient and desirable location for families.

EPC Rating: C74 | Council Tax Band: C

Important Information

  • This is a Freehold property.
  • This Council Tax band for this property is: C

Property Ref: DPO240691

Share:

Similar Properties

Seymour Close, Weston-super-Mare, North Somerset

2 Bedroom Detached Bungalow | Asking Price £350,000

This two-bedroom detached freehold bungalow is situated at the end of a cul-de-sac in the popular area of Worle, Weston-...

Burnham Drive, Weston-super-Mare, North Somerset

3 Bedroom Semi-Detached Bungalow | Asking Price £350,000

A well-presented three-bedroom, semi-detached, freehold home, ideally situated in the sought-after area of Bleadon Hill...

Shiplate Road, Bleadon, North Somerset

5 Bedroom Detached House | Guide Price £350,000

For sale by Public Auction on Tuesday 31st March 2026 at Leigh Court, Pill Road, Abbots Leigh, BS8 3RA and online at 7.0...

Jubilee Way, St. Georges, Weston-super-Mare

4 Bedroom Terraced House | Asking Price £365,000

A superb four-bedroom mid-terraced freehold family home, beautifully presented and perfectly suited to modern family liv...

Whitecross Lane, Banwell, North Somerset

3 Bedroom Semi-Detached House | Asking Price £375,000

This excellent three-bedroom semi-detached freehold residence presents a fantastic opportunity for buyers seeking a fami...

Braithwaite Place, Burnham-on-Sea, Somerset

3 Bedroom Semi-Detached House | Asking Price £375,000

This beautiful, three-bedroom, semi-detached, freehold home presents an exceptional opportunity for family buyers seekin...

David Plaister Ltd (Weston-super-Mare)

Weston-super-Mare, North Somerset, BS23 1JN

01934 815 053

How much is your home worth?

Use our short form to request a valuation of your property.

Request a Valuation

Mortgage Calculator

Amount Borrowed: £
Total Amount Repayable: £
Total Monthly Payment: £
©2026 The Guild of Property Professionals. All rights reserved. Terms and Conditions | Privacy Policy | Cookie Policy | Complaints Policy | Members Login
The Guild of Property Professionals Trading Address: 121 Park Lane, London W1K 7AG. GPEA Limited. Registered in England & Wales.  Company No: 02819824.  Registered Office Address: 2 St. Stephen's Court, St. Stephen's Road, Bournemouth, Dorset, England, BH2 6LA.  VAT Registration No: 576 8795 61
Book a Property Valuation Update Cookies Preferences