Meadow Street, Weston-super-Mare

Asking Price
£240,000
Under Offer
This property listing is now Under Offer

Mixed Use for sale in North Somerset

  • A brilliant mixed use commercial and residential freehold property
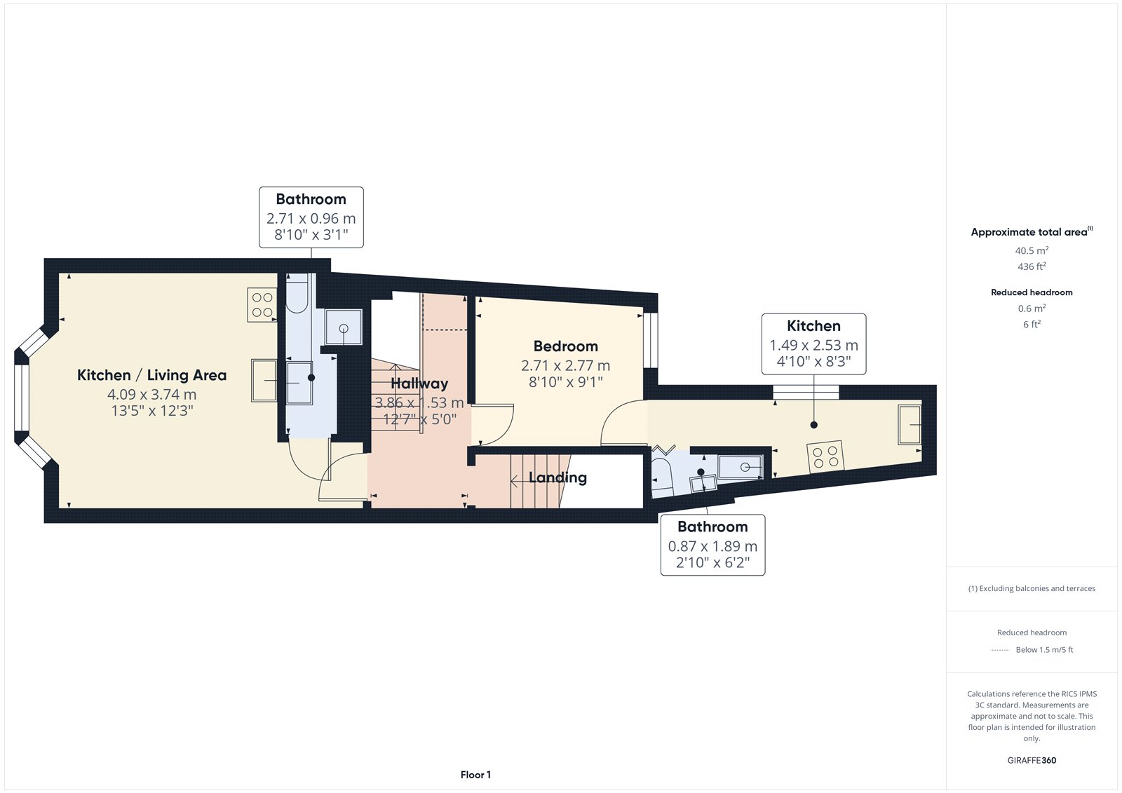
  • Hosting two studio apartments and one bedroom apartment fully let and income producing
  • Sold with the benefit of tenants in situ
  • Gross rental income of Circa £2725 PCM / £32,700 per annum
  • Excellent location in Weston’s town centre, close to rail links and amenities
  • An excellent investment opportunity
  • Approximately 1,271 sq. ft.
  • EPC Rating: C56 | Business Rates May Apply

Exceptional Mixed-Use Investment Opportunity – Weston-super-Mare Town Centre.

This is a mixed-use freehold property in a Weston-super-Mare town centre location. The property comprises a ground floor commercial unit, two studio apartments and one one-bedroom apartment, all of which are fully let and producing a steady rental income.

Sold with the benefit of tenants in situ, the property provides an immediate income stream with a gross rental income of approximately £2,725 per month, equating to £32,700 per annum. This makes it a great investment for those seeking a ready-made portfolio addition.

The property benefits from a central location, with close proximity to local amenities, shops, and rail links, enhancing both its tenant appeal and long-term rental potential.

Overall, this represents an exciting investment opportunity for landlords or property investors looking to expand in Weston-super-Mare with a tenanted, income-producing asset.

EPC Rating: C56 | Business Rates May Apply | Council Tax Bands: A

Important Information

  • This is a Freehold property.
  • This Council Tax band for this property is: A

Property Ref: DPO180733

Share:

Similar Properties

St Pierre Country Park, Caldicot

2 Bedroom Not Specified | Asking Price £240,000

A brand-new two-bedroom lodge set within the sought-after and peaceful St. Pierre Country Park. Plot 2 The Green offers...

Hill Road, Weston-super-Mare, North Somerset

2 Bedroom Flat | Asking Price £240,000

This well-presented two-bedroom ground floor leasehold apartment offers comfortable and convenient living in a desirable...

Whitting Road, Weston-super-Mare, North Somerset

3 Bedroom Terraced House | Asking Price £240,000

A three-bedroom mid-terrace freehold property situated in Weston-super-Mare, offering well-proportioned accommodation an...

Meadow Place, St. Georges, Weston-super-Mare, North Somerset

2 Bedroom End of Terrace House | Asking Price £245,000

This newly redecorated, two-bedroom end-of-terrace freehold property presents an excellent opportunity for first-time bu...

Walnut Close, Weston-super-Mare, North Somerset

2 Bedroom Semi-Detached Bungalow | Offers in excess of £250,000

This two-bedroom semi-detached freehold home is neatly positioned on a quiet cul-de-sac within the Oldmixon area of West...

Hamwood Close, Hutton, Weston-super-Mare, North Somerset

2 Bedroom End of Terrace House | Asking Price £250,000

This lovely, newly renovated, two bedroom, end of terrace, freehold property offers comfortable and well-balanced accomm...

David Plaister Ltd (Weston-super-Mare)

Weston-super-Mare, North Somerset, BS23 1JN

01934 815 053

How much is your home worth?

Use our short form to request a valuation of your property.

Request a Valuation

Mortgage Calculator

Amount Borrowed: £
Total Amount Repayable: £
Total Monthly Payment: £
©2026 The Guild of Property Professionals. All rights reserved. Terms and Conditions | Privacy Policy | Cookie Policy | Complaints Policy | Members Login
The Guild of Property Professionals Trading Address: 121 Park Lane, London W1K 7AG. GPEA Limited. Registered in England & Wales.  Company No: 02819824.  Registered Office Address: 2 St. Stephen's Court, St. Stephen's Road, Bournemouth, Dorset, England, BH2 6LA.  VAT Registration No: 576 8795 61
Book a Property Valuation Update Cookies Preferences