South Terrace, Weston-super-Mare, North Somerset

Guide Price
£275,000

5 Bedroom Not Specified for sale in North Somerset

5
  • For sale by Public Auction on Tuesday 9th December 2025 at Leigh Court, Pill Road, Abbots Leigh, BS8 3RA and online at 7.00pm.
  • An incredible five dwelling end of terrace leasehold apartment block
  • Three apartments and two bedsit dwellings
  • Recently refurbished areas to a commendable standard
  • An allocated private parking space providing reliable off street parking
  • Sold with the benefit of tenants in situ
  • Strategically located in Weston's town centre within
  • EPC Rating: C69 | Council Tax Band:

For sale by Public Auction on Tuesday 9th December 2025 at Leigh Court, Pill Road, Abbots Leigh, BS8 3RA and online at 7.00pm.



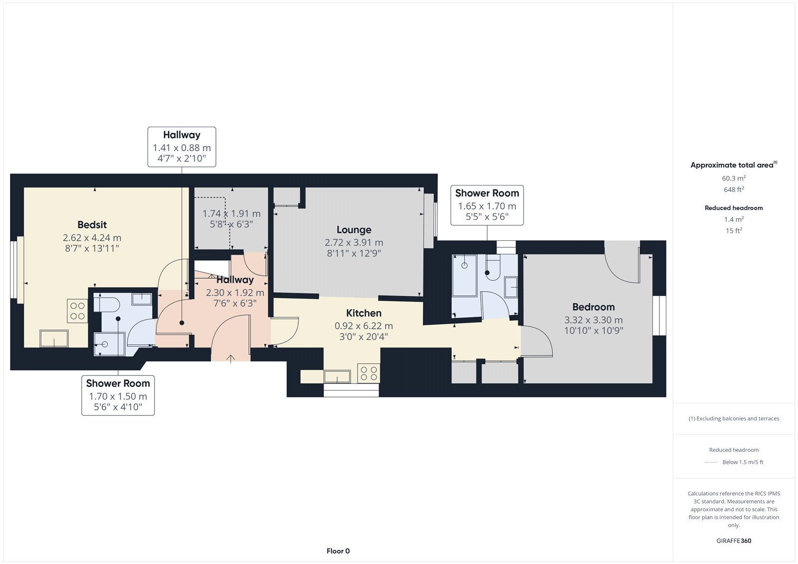
A fantastic opportunity to acquire a substantial Grade II listed end-of-terrace apartment block, selling for the first time in 40 years. Superbly positioned in Weston-super-Mare town centre and just a short distance from the seafront and a wide range of local amenities.



The property is arranged as five self-contained units, comprising three apartments and two bedsits. Each unit has its own internal front door, council tax account and facilities. Flats 1, 4 and 5 are currently let on Assured Shorthold Tenancies, producing a combined rental income of approximately £1,620.00 per calendar month. Flats 2 and 3 are offered with vacant possession. Flat 2 also benefits from a rear courtyard and an allocated private parking space.



With existing rental income in place and further potential from the vacant units, the property offers an appealing investment opportunity in a central location.



EPC Ratings: D56, C69, D63, C69, D58 | Council Tax Band: A



Auction Details:

• Venue: Leigh Court, Pill Road, Abbots Leigh, Bristol, BS8 3RA

• Date: Thursday 9th December 2025

• Start Time: 7:00pm

• Bidding Options: In room, online, proxy, telephone



*Guides are provided as an indication of each seller's minimum expectation; they are not necessarily figures which a property will sell for and may change at any time prior to the auction. Each property will be offered subject to a Reserve (a figure below which the Auctioneer cannot sell the property during the auction) which we expect will be set within the Guide Range or no more than 10% above a single figure guide.

Important Information

  • This is a Leasehold property.
  • This Council Tax band for this property is: A
  • EPC Rating is C

Property Ref: DPA_DPO250525

Share:

Similar Properties

Apartment 1, 2 Paragon Road, Weston-super-Mare

2 Bedroom Flat | Asking Price £275,000

This exquisite, two bedroom, ground floor apartment is set within the beautifully converted Birnbeck Lodge Apartments si...

Kenn Road, Clevedon, Somerset

1 Bedroom Flat | Asking Price £275,000

An excellent one-bedroom leasehold retirement apartment, positioned on the first floor and sold with the benefit of no o...

Blackburn Way, West Wick, Weston-super-Mare

3 Bedroom End of Terrace House | Asking Price £270,000

A three-bedroom freehold end of terrace property located in the West Wick area of Weston-super-Mare. The ground floor c...

The Street, Draycott, Cheddar, Somerset

2 Bedroom Detached House | Asking Price £280,000

Nestled in the heart of the tranquil village of Draycott, near Cheddar, this charming two-bedroom detached freehold cott...

Riverside Close, St. Georges, Weston-super-Mare, North Somerset

3 Bedroom End of Terrace House | Asking Price £280,000

A stunning three-bedroom end of terrace freehold property, newly refurbished throughout to an exceptional standard and t...

The Lawns Weston-super-Mare, North Somerset

3 Bedroom Semi-Detached House | Asking Price £285,000

Situated in Weston-super-Mare, this three-bedroom semi-detached freehold property is located within a residential cul-de...

David Plaister Ltd (Weston-super-Mare)

Weston-super-Mare, North Somerset, BS23 1JN

01934 815 053

How much is your home worth?

Use our short form to request a valuation of your property.

Request a Valuation

Mortgage Calculator

Amount Borrowed: £
Total Amount Repayable: £
Total Monthly Payment: £
©2025 The Guild of Property Professionals. All rights reserved. Terms and Conditions | Privacy Policy | Cookie Policy | Complaints Policy | Members Login
The Guild of Property Professionals Trading Address: 121 Park Lane, London W1K 7AG. GPEA Limited. Registered in England & Wales.  Company No: 02819824.  Registered Office Address: 2 St. Stephen's Court, St. Stephen's Road, Bournemouth, Dorset, England, BH2 6LA.  VAT Registration No: 576 8795 61
Book a Property Valuation Update Cookies Preferences