Amberey Road, Weston-super-Mare

Asking Price
£259,995
Under Offer
This property listing is now Under Offer

3 Bedroom Terraced House for sale in North Somerset

2 3 2
  • A three bedroom freehold mid-terraced property
  • Flexible living spaces
  • A private and enclosed front and rear garden
  • A private garage offering reliable off-street parking and access to rear garden
  • Well positioned and good access to local amenities and travel links
  • Ideal for first time buyers, families or investors
  • Approximately 1,091 square feet
  • EPC Rating: C69 | Council Tax Band: B

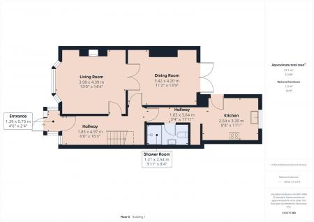
This freehold three-bedroom mid-terraced home offers well-proportioned accommodation arranged over two floors. The layout provides versatile living space that can be adapted to suit a range of household needs. On the ground floor, there are clearly defined living and dining areas, while the first floor comprises three bedrooms and a family bathroom.

The property enjoys private, enclosed gardens to both the front and rear. The rear garden can be accessed directly from the living area or via a private garage, which also offers secure off-street parking and valuable storage. The outdoor areas provide excellent potential for gardening, leisure, or further landscaping.

Located in a residential setting with convenient access to local schools, amenities, and services, the property is within easy reach of shops, healthcare facilities, and open green spaces. Strong public transport links and nearby road connections also provide straightforward access to Weston-super-Mare town centre and surrounding areas.

This property will appeal to a wide range of buyers, making it an excellent opportunity for first-time purchasers seeking a practical home with outdoor space and useful features.

EPC Rating: C69 | Council Tax Band: B

Important Information

  • This is a Freehold property.
  • This Council Tax band for this property is: B
  • EPC Rating is C

Property Ref: DPO250285

Share:

Similar Properties

Plot 5 Atlantic Heights, Atlantic Road South, Weston-super-Mare

2 Bedroom Flat | Asking Price £255,000

Welcome to Atlantic Heights - a stunning development of 18 new one, two, and three bedroom apartments, perfectly positio...

Stafford Place, Weston-super-Mare, North Somerset

2 Bedroom Flat | Asking Price £250,000

This well-presented, two-bedroom, ground-floor, leasehold apartment offers a fantastic opportunity for first-time buyers...

Whitting Road, Weston-super-Mare, North Somerset

3 Bedroom Terraced House | Asking Price £250,000

A three-bedroom mid-terrace freehold property situated in Weston-super-Mare, offering well-proportioned accommodation an...

Walnut Close, Weston-super-Mare, North Somerset

2 Bedroom Semi-Detached Bungalow | Asking Price £260,000

This two-bedroom semi-detached freehold home is neatly positioned on a quiet cul-de-sac within the Oldmixon area of West...

Ankatel Close, Weston-super-Mare

3 Bedroom Semi-Detached House | Asking Price £260,000

This three-bedroom, recently re-decorated, terraced, freehold home in Weston-super-Mare presents a solid opportunity for...

Mill on the Mole, South Molton, Devon

2 Bedroom Not Specified | Asking Price £262,500

ONLY 2 PLOTS REMAINING! A rare and exciting opportunity to your own stunning brand-new park home with prices starting at...

David Plaister Ltd (Weston-super-Mare)

Weston-super-Mare, North Somerset, BS23 1JN

01934 815 053

How much is your home worth?

Use our short form to request a valuation of your property.

Request a Valuation

Mortgage Calculator

Amount Borrowed: £
Total Amount Repayable: £
Total Monthly Payment: £
©2026 The Guild of Property Professionals. All rights reserved. Terms and Conditions | Privacy Policy | Cookie Policy | Complaints Policy | Members Login
The Guild of Property Professionals Trading Address: 121 Park Lane, London W1K 7AG. GPEA Limited. Registered in England & Wales.  Company No: 02819824.  Registered Office Address: 2 St. Stephen's Court, St. Stephen's Road, Bournemouth, Dorset, England, BH2 6LA.  VAT Registration No: 576 8795 61
Book a Property Valuation Update Cookies Preferences