Southend Road, Weston-super-Mare, North Somerset

Asking Price
£290,000

4 Bedroom Terraced House for sale in North Somerset

2 4 1
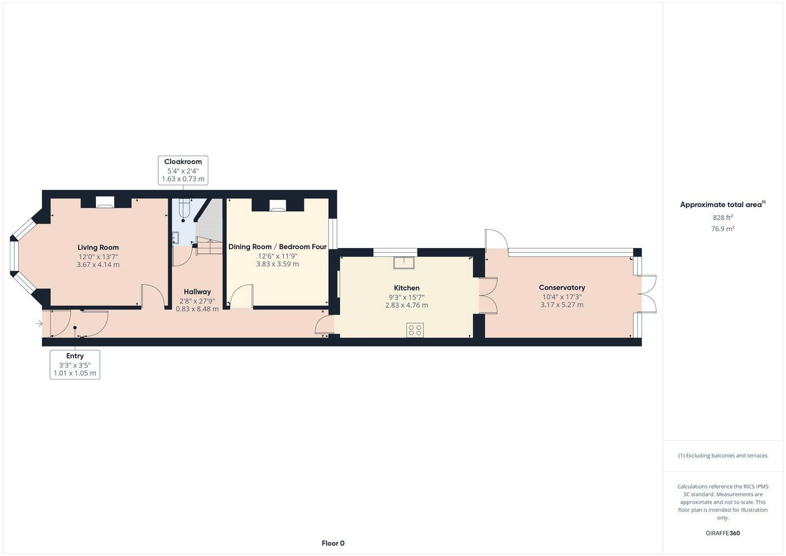
  • A four bedroom freehold mid terrace three storey property
  • Super front and rear gardens
  • Flexible living area areas with two reception rooms and an additional conservatory
  • Retaining some character features
  • A converted loft space formerly being used as bedroom four and five
  • Sold with the benefit of no onward chain
  • EPC Rating: D57 | Council Tax Band: B

A four-bedroom freehold mid-terrace property arranged over three storeys, located on Southend Road in Weston-super-Mare.



The property includes two reception rooms, a conservatory, and flexible internal space that may suit a range of living arrangements. Some original character features remain throughout.



The converted loft space has previously been used as two additional bedrooms, offering potential for further development or reconfiguration, subject to any necessary consents.



Outside, the property includes both front and rear gardens, providing outdoor space at both elevations.



Southend Road is situated within reach of Weston-super-Mare town centre, the seafront, and local transport links including the train station. A range of shops, schools, and other amenities are accessible nearby, with Clarence Park and Grove Park also located within the wider area.



The property is offered with no onward chain.



EPC Rating: D57 | Council Tax Band: B

Important Information

  • This is a Freehold property.
  • EPC Rating is D

Property Ref: DPO_DPO250171

Share:

Similar Properties

Parkhurst Road, Weston-super-Mare, North Somerset

3 Bedroom Semi-Detached House | Asking Price £290,000

Located just off Locking Road in Weston-super-Mare, this three-bedroom, freehold, semi-detached house offers a practical...

The Brambles, St Georges, Weston-super-Mare, North Somerset

3 Bedroom Semi-Detached House | Asking Price £290,000

David Plaister Ltd are pleased to present this well-appointed three-bedroom semi-detached freehold property, ideally loc...

Apartment 1 Birnbeck Lodge, 38 Birnbeck Road, Weston-super-Mare

2 Bedroom Flat | Asking Price £285,000

This outstanding two bedroom, lower ground floor apartment is set within the beautifully converted Birnbeck Lodge Apartm...

South Road, Lympsham, Weston-super-Mare, North Somerset, BS24 0DX

3 Bedroom Cottage | Asking Price £295,000

Nestled in the peaceful and picturesque village of Lympsham, this delightful three-bedroom mid-terraced cottage offers t...

Station Road, Axbridge, Somerset, BS26 2BP

3 Bedroom Semi-Detached House | Asking Price £299,950

This wonderful three-bedroom semi-detached freehold home is set in an elevated position within the charming town of Axbr...

Elmvale Drive, Hutton, Weston-super-Mare

3 Bedroom Semi-Detached House | Asking Price £300,000

This delightful, three bedroom, semi detached house is the perfect home for the growing family. The freehold property is...

David Plaister Ltd (Weston-super-Mare)

Weston-super-Mare, North Somerset, BS23 1JN

01934 815 053

How much is your home worth?

Use our short form to request a valuation of your property.

Request a Valuation

Mortgage Calculator

Amount Borrowed: £
Total Amount Repayable: £
Total Monthly Payment: £
©2025 The Guild of Property Professionals. All rights reserved. Terms and Conditions | Privacy Policy | Cookie Policy | Complaints Policy | Members Login
The Guild of Property Professionals Trading Address: 121 Park Lane, London W1K 7AG. GPEA Limited. Registered in England & Wales.  Company No: 02819824.  Registered Office Address: 2 St. Stephen's Court, St. Stephen's Road, Bournemouth, Dorset, England, BH2 6LA.  VAT Registration No: 576 8795 61
Book a Property Valuation Update Cookies Preferences